查看完整案例

收藏

下载
LLLab.李宁上海概念总店竞赛
获得优胜方案
李宁中心球场-属于你的中央舞台
李宁先生体操比赛时刻 Mr. Li Ning Olympic Game Archive
© 互联网视频内容截图 Internet Archive Screenshot
李宁先生体操比赛时刻 Mr. Li Ning Olympic Game Archive
© 互联网视频内容截图 Internet Archive Screenshot
极限的追求 极致的表现
心跳与激情的冲刺
概念草图 Conceptual Sketch
© LLLab.
概念草图 Conceptual Sketch
© LLLab.
运动的极限追求
|
The Pursuit of Extremity
李宁不希望成为一个时尚品牌
,作为
世界冠军
,李宁依然希望能够再次尝试
追求运动的极限
。
运动员的使命
是去寻找
人类的极限,冲刺的极限,那一个练习了整个运动生涯去追求的那一瞬间,那个冠军的时刻,破纪录的时刻。
那一瞬间的宁静,紧张,压力和期待,
那一瞬间的心跳和血液的流淌带来的极限的瞬间!
是这次李宁的空间想要传递的情绪,
贯穿职业生涯,贯穿每一次的苦练,去感受的那种瞬间的追求!
Li-Ning does not want to become a fashion brand.
As a
world champion
, Li-Ning still hopes to try again to pur
sue t
he limits of sport. The mission of an athlete is to find the limits of human beings, the limits of the sprint, that one moment practiced throughout the entire athletic career to pursue, the moment of championship, the moment of record-breaking.
The tranquility, tension, pressure, and anticipation of that instant,
the instant brought by the heartbeat and the flow of blood, the ultimate instant!
This is the emotion that Li-Ning's space wants to convey,
running through the career, running through every hard training, to feel that instant pursuit!
概念草图 Conceptual Sketch
© LLLab.
概念草图 Conceptual Sketch
© LLLab.
无数次的重复
无数次面对那个梦想
|
Countless Repetitions
Countless Pursuit of
That Dream
运动员从更衣室走向体育场通道镜头 Athelete Walking to the Match Court
© 互联网视频内容截图 Internet Archive Screenshot
运动员入场通道空间效果(韦德镜头来自于互联网)
Athelete Walking to the Game (WADE image from Internet)
© LLLab.
运动员入场通道空间效果(韦德镜头来自于互联网)
Athelete Walking to the Game (WADE image from Internet)
© LLLab.
运动员入场通道空间效果(韦德镜头来自于互联网)
Athelete Walking to the Game (WADE image from Internet)
© LLLab.
每一次走在入场的通道
,听着欢呼的喊叫声,听着所有人的鼓舞,
紧张,无措,害怕,期望,梦想,心跳让我继续努力的训练
,
让我每一次走向支持自己的人们,都能够变得更加强大!
Every time I walk through the entrance tunnel,
hearing the cheers, hearing the encouragement from everyone,
the nervousness, the helplessness, the fear, the expectation, the dream,
my heartbeat pushes me to continue training diligently,
to become even stronger each time I walk towards the people who support me!
概念草图 Conceptual Sketch
© LLLab.
概念方案视频
PRESENTATION
概念设计方案视频 Concept Video
© LLLab.
概念空间外立面效果图 Conceptual Space Facade Visualization
© LLLab.
概念空间外立面效果图 Conceptual Space Facade Visualization
© LLLab.
概念空间外立面效果图 Conceptual Space Facade Visualization
© LLLab.
中心球场效果图 Center Court Visualization
© LLLab.
中心球场效果图 Center Court Visualization
© LLLab.
中心球场专业竞技地板效果图 Center Court Professional Flooring Visualization
© LLLab.
专业球场地板更换效果图 Court Flooring Change Visualization
© LLLab.
专业的开放球场 多变的活动场所
|
Professional Open Courts
A Versatile Event Space.
中心球场空间变化 效果图 Center Court Space Variation Visualization
© LLLab.
中心球场空间变化 效果图 Center Court Space Variation Visualization
© LLLab.
中心球场空间变化 效果图 Center Court Space Variation Visualization
© LLLab.
中心球场空间变化 效果图 Center Court Space Variation Visualization
© LLLab.
中心球场空间变化 效果图 Center Court Space Variation Visualization
© LLLab.
中心球场空间变化 效果图 Center Court Space Variation Visualization
© LLLab.
一层 - 中央场地
|
Ground Floor
Center Stage
中央场地
是一个运动体验的中心,一个让顾客感受到
运动员精神的舞台
。
作为一个开放的空间,
中央场地拥有随功能需要变换空间形式的可能性
。
透明的入口立面将中央场地完全向街道打开, 结合多媒体展示,使路上的人群也能感受到室内的气氛。
The Center Court
is a hub for sports experiences, a stage where customers can feel
the spirit of athletes.
As an open space,
the Center Court
has the potential to transform its layout according to functional needs.
The transparent entrance facade fully opens the central field to the street, combined with multimedia displays, allowing pedestrians to sense the atmosphere inside.
一层空间中央场地空间解析 Ground Floor Center Court Space Analysis
© LLLab.
一层空间中央场地空间解析 Ground Floor Center Court Space Analysis
© LLLab.
一层中央场地效果 Ground Floor Center Court Visualization
© LLLab.
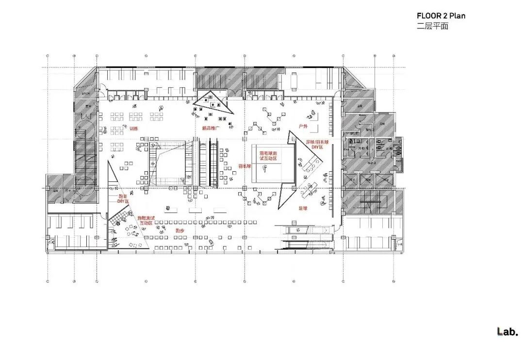
二层 - 动力与技术单元
|
2nd Floor
Power and Tech Hub
三个动力/科技单元在引导楼层动线
的同时,
分别针对不同的运动类别
,结合多媒体展示及测试技术,可以提供体能/产品测试数字化的互动。 同时整合DIY区,将定制产品的展示、操作等与产品陈列融合。
在动力/科技单元的驱动下,产品陈列以“粒子”的形式涡旋散布整个楼层,营造出统一的视觉印象。
粒子的排列形式反映了各项运动的特点,在划分区域的同时,增强了运动的感官体验。
Three power/technology units guide the flow of visitors on the floor,
each targeting different sports categories.
Combined with multimedia displays and testing technologies, they can provide digital interactions for physical/product testing. At the same time, they integrate a DIY area, blending the display and operation of customized products with the product showcase.
Driven by the power/technology units, the product display swirls throughout the entire floor in the form of “particles,” creating a unified visual impression.
The arrangement of particles reflects the characteristics of various sports, dividing the areas while enhancing the sensory experience of sports.
二层空间解析 Second Floor Space Analysis
© LLLab.
二层空间解析 Second Floor Space Analysis
© LLLab.
二层奔跑空间效果 Second Floor Running-Speed Space Visualization
© LLLab.
二层奔跑空间效果 Second Floor Running-Speed Space Visualization
© LLLab.
二层羽毛球空间效果 Second Floor Badminton Space Visualization
© LLLab.
二层奔跑空间效果 Second Floor Running-Speed Space Visualization
© LLLab.
三层 - 3rd Floor RUNWAY
现有的结构柱体成为陈列元素的一部分,将楼层转换为一个视觉上连续延伸无阻隔的空间。
白与黑的对比,灯光及投影的交互,营造出伸展台一般的氛围。
红色的盒子作为明与暗的通道,打破规则的网格。
在划分空间引导动线的同时,
作为视觉的中心
,成为展示新品的平台。
The existing structural columns become a part of the display elements, transforming the floor into a visually continuous and unobstructed space.
The contrast of black and white, along with the interaction of lighting and projections, creates an atmosphere akin to a fashion runway.
Red boxes serve as passages between light and darkness, breaking the regular grid.
While dividing the space and guiding the flow of movement, they
act as visual focal points and platforms for showcasing new products.
三层空间解析 Third Floor Space Analysis
© LLLab.
三层空间解析 Third Floor Space Analysis
© LLLab.
三层时尚RUNWAY空间外立面视角效果 Third Floor RUNWAY Space Facade Visualization
© LLLab.
三层时尚RUNWAY空间效果 Third Floor RUNWAY Space Visualization
© LLLab.
三层时尚RUNWAY空间效果 Third Floor RUNWAY Space Visualization
© LLLab.
三层时尚RUNWAY中国李宁空间效果 Third Floor RUNWAY
CHINA LINING Space Visualization
© LLLab.
四层 - 重新出发
|
4th Floor
BACK TO STAGE
康复训练是专业运动过程中不可避免的一个环节
,更是表现运动员不断挑战自我极限的阶段。
康复训练区域与下层运动、训练区域保持一致的视觉语言 ,下层空间的活力通过中庭的玻璃地面,直接感染到四层的空间。
站在这里的时候,可以直接感受到与一层中央场地的连接,好像重新回到了出发的地方。
Rehabilitation training is an inevitable part of professional sports,
and it is a stage that shows athletes continuously challenging their own limits. The rehabilitation training area maintains a consistent visual language with the sports and training area on the lower level. The vitality of the lower space is directly transmitted to the fourth floor through the glass floor of the atrium.
Standing here, one can directly feel the connection with the central field on the first floor, as if returning to the starting point.
四层空间解析 Fourth Floor Space Analysis
© LLLab.
四层空间解析 Fourth Floor Space Analysis
© LLLab.
顶层俯视效果 Top Aerial View Visual
© LLLab.
概念草图 Conceptual Sketch
© LLLab.
概念草图 Conceptual Sketch
© LLLab.
项目图纸 Project Drawings
一层功能布局 Ground Floor Program Arrangement
© LLLab.
一层功能布局 Ground Floor Program Arrangement
© LLLab.
一层功能布局 Ground Floor Program Arrangement
© LLLab.
一层分区 Ground Floor Zoning
© LLLab.
二层功能布局 2nd Floor Program Arrangement
© LLLab.
二层功能布局 2nd Floor Program Arrangement
© LLLab.
二层功能布局 2nd Floor Program Arrangement
© LLLab.
二层分区 2nd Floor Zoning
© LLLab.
三层功能布局 3rd Floor Program Arrangement
© LLLab.
三层功能布局 3rd Floor Program Arrangement
© LLLab.
三层功能布局 3rd Floor Program Arrangement
© LLLab.
三层分区 3rd Floor Zoning
© LLLab.
四层功能布局 4th Floor Program Arrangement
© LLLab.
四层功能布局 4th Floor Program Arrangement
© LLLab.
四层功能布局 4th Floor Program Arrangement
© LLLab.
四层分区 4th Floor Zoning
© LLLab.
商品陈列示意 Product Display
© LLLab.
商品陈列示意 Product Display
© LLLab.
商品陈列示意 Product Display
© LLLab.
商品陈列示意 Product Display
© LLLab.
商品陈列示意 Product Display
© LLLab.
商品陈列示意 Product Display
© LLLab.
道具模块示意图 Fixture Module Illustration
© LLLab.
道具模块示意图 Fixture Module Illustration
© LLLab.
道具模块示意图 Fixture Module Illustration
© LLLab.
道具模块示意图 Fixture Module Illustration
© LLLab.
项目信息
项目位置: 中国上海南京东路
项目建筑总面积:
4000㎡
项目楼层 4层
项目时间: 2019年4月 至 2021年
项目功能
: 比赛,活动,发布,零售,展示,实验,订制
项目建筑设计: llLab. 叙向建筑设计
项目合伙人: Luis Ricardo, 刘涵晓
项目团队成员: 陈霏
,赵懿慧,
Henry D'Ath, Alyssa Tang, 胡乐贤
项目工程实施团队:GCPS
General Information
Project Location: Nanjing East Road, Shanghai, China
Total Project
Construction Area: 4000㎡
Project Year: April 2019 - 2021
Project Programs: Games, Events, Press, Retail, Exhibition, Laboratory, DIY
Architectural Design: llLab.
Project Partners: Luis Ricardo, Hanxiao Liu
Project Team: Fei Chen, Yihui Zhao,
Henry D'Ath, Alyssa Tang, Lexian Hu
Project Fixture Manufacturing: GCPS
MAIL: hello@lllab.net
TEL
:
86.134.8250.8605
ADDRESS: 上海市徐汇区高安路101号B1栋
China: Unit B1, 101 Gaoan Road, Xuhui District, Shanghai
Portugal: Rua Calouste Gulbenkian, nº107,
Loja 21 na Galeria Comercial
4050-145 Porto
客服
消息
收藏
下载
最近









































































