查看完整案例

收藏

下载
“回到起点”的建筑和场地叙事
“建筑。。。。。作为人类的远祖为了躲避恶劣天气、野兽以及敌人而建立的一个庇护所,一定有一个简单的起点。。。。。。” Banister Flecther<A History of Architecture>
弗莱彻建筑史
营地作为建筑的某种简单的起点,来自于人们对未知自然领地的探索,是文明回到旷野的一个最小单元。
去到一处陌生的自然野地,草原、湖泊、森林、山野等等,搭建一处遮风避雨
的临时场所。
较大一些的营地,会依靠一处水源,搭建一个小木屋作为房间居住,同时用帐篷搭出一个半室外场所作为客厅餐厅等日间活动区。
先行者们白天深入自然腹地去探索寻找,晚上回到这样一个有篝火的栖息地休息。
▼
群山之中的营地 The camp among the mountains
©王正
▼
守望者小屋The Watch
©王正
▼
山野营地The camp in the forest
©王正
▼
傍晚的前厅 The lobby in the sunset
©王正
这次的设计任务是和国际知名户外品牌合作,在莫干山杨家田的山坡上打造一个山野营地酒店,利用
原有
两处废弃建筑新建酒店配套用房,同时规划营区,梳理场地,做整体景观提升。
完全体的大白熊营地将成为区域相关主题体验的标杆。
初见The first view
我们第一次来到场地的时候,面对着这样一个场景:
山上一处采茶人的破败小平房,三面环山,
竹林和茶田把它环绕着。
一旁有着不大的蓄水池塘和几棵小树。
这里处于山顶的北坡,有着极佳的视野远眺莫干山群山,近处纵横两排大水杉像是这块场地的卫兵,守护着业已荒废的村落好多年。
较低一些的山坡下,一段夯土和毛石砌筑的残墙是这个场所仅有的村落记忆。据山下的村长描述,这里曾是他们祖上为躲避洪水一路从安徽迁移过来最后的落脚点,因为这里足够高,再也不用担心水患。村长小时候也出生于此,幼年便随大人一起下山,于是山村逐渐荒废,几十年的时间便只剩下残墙一段。
场地内有几段梯田状的茶田,就地取材的毛石墙护坡,有隐隐的小溪,时而露出地面,时而又经过地下形成暗溪,几处开阔的草地,环绕的竹林等等,具有一种立体的原生态美感。
莫干山地区一个多世纪以来风风雨雨各色人等出入,近年文旅大热游客更是络绎不绝,这里就像是莫干山最被遗忘的一个角落,人迹罕至。
▼
场地分析Site analysis
©咫间
▼
场地环境 site scene
©咫间
设计构思 Design concept
我们要做的,就是感知这块土地自然吐露出来的气息,然后加以雕琢整理。设计就以几个自然而然的议题展开。山上采茶小屋的探索者营地再塑造;山下残墙废宅的记忆重生;水杉林的保留再利用;场地内大环境梳理,包括竹林、草坡、茶田的新增和修补;各个帐篷区域的场景感和舒适度设计。
▼
总平面图 Master Plan
©咫间
▼
功能布局图 Functions
©咫间
▼
构思草图 Sketches
©咫间
作为项目内的永久构筑物,“前厅”(the lobby)与“守望”(the watch)被运营定位为酒店基础功能支持的角色。前者在入口处负责接待与餐饮功能。后者在高处服务泳池与观景,包含了淋浴更衣及休憩空间。
为了与营区共同塑造山野露营的氛围感,建筑风格上采用了“回到起点”的方式:以直观的坡屋顶、竖向支撑及自然材料的建构逻辑呈现“原始棚屋”,这一代表回归人居空间与自然相处最初状态的名词。建筑因此无缝融入露营区所塑造的整体氛围。
▼
效果示意 The rendering of the lobby and the watch
©咫间
‘’前厅”(the lobby)
这里的功能定位是大堂及餐厅。蜿蜒的爬山山路驾乘过后,新生的老石墙引导着游客或进入建筑内的通道,或沿着并排的树林进入酒店的核心区。通道内石墙,木饰板,窗洞的组合延伸进入大堂;树林的光影则时刻重塑外部的石墙立面。两种通行方式都由线性的空间开始,结束于水杉林、山体、营区的豁然开朗。一种初见、探索、一瞥、开阔的到达情绪体验。二层的餐厅被树梢环绕,四季四色。我们通过建筑的开窗、檐口、屋面坡度等处理,尽可能多的邀请光线和绿色进入到室内,和我们设置的室内环境共舞,形成丰富立体的体验感。
▼
沿着山路初见“前厅” The initial view of the lobby
©王正
▼
隐逸的前厅入口 The hidden entrance
©王正
▼
限定光线和外景的过厅 Framed scenes with light and shadow in the interior pathway
©王正
▼
过厅 The interior pathway
©王正
▼
大堂看向营地 The camp scene viewed from the lobby
©王正
▼
大堂内景 The interior of the lobby
©王正
▼
大堂和窗外的树林 The lobby and the trees outside the windows
©王正
▼
吧台区域 Bar area
©王正
▼
山下仰望 Look up to the watch
©王正
▼
前厅东南角全貌 Southeast view of the lobby building
©王正
▼
入夜后的前厅 Night view of the lobby building
©王正
▼
半室外楼梯间 Staircase
©王正
▼
竹影天窗Light and shadow of the staircase
©王正
▼
与光线和绿色共舞的餐厅室内 Greening and light in the restaurant
©王正
▼
树梢环绕的餐厅 View of the treetop and camp area in the restaurant
©王正
▼
餐厅外小景 View from a corner of the restaurant
©杨威
这里不仅仅是迎宾的场所,亦是场所转换的传送门。我们将场地原有的毛石残墙经过标记重组,重新砌筑到新建筑的主要外墙当中。老石墙曾今守护着这里的先民,如今又温润的进入新建筑继续守护来到这片土地的人们,我们会觉得这是空间和时间的双重延续。
▼
沿着树林和老石墙步入营地 Walking to the camp area along the stone wall and trees
©杨威
▼
石墙和场地的融合 Visual composition of the stone wall and the environment
©杨威
▼
树影斑驳下的石墙 Shadow filtered by trees on the stone wall
©王正
“守望”(the watch)
在高处犹如守望者看护引领着整个露营区,是一座探索者小木屋,一个庇护所。功能上结合策划运营的考虑,我们改造原有池塘,增设tentipi大帐,使这一组建筑场地变成了温泉泳池的山顶club。小木屋一楼提供温泉配套的洗浴及卫生间功能,二楼则是绝佳视野的聚所,白天这里是泡着咖啡的山顶书店,夜晚是好友小酌的山顶酒廊。
造型上回应露营主题的同时兼顾了各角度的视觉需求。由低处望向高处时,建筑在二层高度的屋面造型与台阶水渠流水形成的构图;拾级而上时逐渐明晰的一层立面;侧面与温泉池及tentipi大帐组成的主题形象;入口与二层景窗提示了探索与观望的流线。建筑在此处不仅提供了功能与氛围,也作为面向风景的视口,与各类活动及山间气候积极交互,条窗是留给群山的,天窗是留给星空的。
▼
守望者小屋与大帐 The watch and the tentipi tent
©王正
▼
守望者小屋与草坡 The watch and grassy slope
©王正
▼
守望者小屋正面 Fa
ç
ade of the watch
©王正
▼
小屋近景The close view of the watch
©王正
▼
一层观景休息区 1
st
floor interiotr
©王正
▼
二层观景窗 2
nd
floor’s view of the secne
©王正
▼
守望者小屋夜景 Night view of the watch
©王正
“山野花园”(the wild garden)
场地设计中充分尊重和理解这块土地原来的地形和植被情况,划分出三个主要营区,“梯田”“草原”“高山”。设计之初,运营、设计、施工几方合作,多次在酷暑烈日下满山坡的踏勘,为了让每一处营位都有独特的欣赏山野的视角,同时兼顾私密性,还要尽量避开原有的一些树木。最终各个营区都很好的融入了这片山林之中,看景的同时本身也成为了一道新风景。
▼
营地总览 aerial view of the camping area
©王正
▼
隐藏在山林中的营地 camping area hiding in the woods
©王正
▼
每一个营位都有独特的观景视角 each tent with its unique view
©王正
▼
日出下的高山营位 Sunrise scene of the camping area
©王正
▼
草地营位 Lawn area tents
©王正
▼
高山营位远观晨雾和群山 Mountain area tents facing the scene
©王正
▼
帐篷内景 Interior of the tents
©咫间
景观处理方式以梳理和重塑为主,把原来的这些自然元素如水石木绿等,以更纯净同时也更具参与感的方式展现出来。宽阔的草地被清理成大帐区和活动草坪;较缓的坡地改造成草坡,较陡的坡地通过干垒石挡土墙处理成茶田梯田;汇水沟加以拓宽并放入河滩石,变成一条潺潺的溪流,夏天可以戏水,枯水期也是不错的旱溪景观;台阶用枕木和石块作为踏步;边界用山下村民就地取材制作的竹篱笆作为护栏围挡;水杉林清理林下空间,加入吊床和攀爬等户外体验设施。在保护这片山野的前提下为各种户外活动方式提供了多样的载体。
▼
清晨的山野花园 The wild garden before the sunrise
©王正
▼
舒缓的草坪与挺拔的水杉林 The quiet lawn area and elegant fir tress
©王正
▼
汇水渠和草坡台阶 The streams and the steps of the grass slope
©王正
▼
立体的山林 Lively composition of the tents and vegetations
©咫间
▼
草地、林地、坡地、守望者小屋 Lawn, fir trees, streams, steps and the watch
©咫间
▼
山间小路 The path
©杨威
▼
山坡下的天幕和山坡上的营位 Marquee under and the tent above
©杨威
▼
营地近景航拍 Aerial view of the tent area
©王正
▼
远景鸟瞰 Bird view of the greater area of the site
©王正
结语 Conclusion
设计的意义是为了让人通过空间更好的融于自然。山林的曼妙、大树的斑驳、空气的味道、水流的声音,弥漫的光线以及亘古的山和变幻的云,这些是主角,我们设置的墙体,屋檐,窗户等等都是为了让参与者更好的感知和阅读他们。建筑应该是安静的存在,温和克制的自我表达才能使参与者更好的链接自然,链接他人,链接内心。
相关设计图 Design drawings
▼
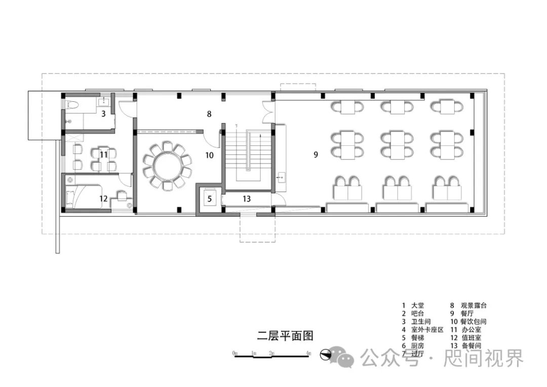
前厅平面图 Plan of the lobby
©咫间
▼
前厅立面The elevation of the lobby
©咫间
▼
守望者小屋平面图 The plan of the watch
©咫间
▼
守望者小屋立面 The elevation of the watch
©咫间
▼
剖面The sections
©咫间
▼
模型照片The models
©咫间
项目信息
项目全称:莫干山大白熊国际营地
项目类型:建筑、景观、室内设计
建筑事务所:咫间设计
主创设计师:马嘉伟 董江
设计团队:李博 冯筱绮 崔懿丹 周佳霓
模型制作:王成洋 张睿博 唐国言 张亦劼 郑涵冰
合作设计院:天尚设计集团有限公司
景观方案合作:大亘设计
地点:浙江德清 莫干山镇杨家田
设计:2022.06-2022.10
竣工:2023.05
业主:德清县莫干山仙之潭旅游开发有限公司
运营方:江苏熊猫国际旅游发展有限公司
用地面积:34700㎡
建筑面积:380㎡
摄影:王正;咫间设计;杨威
视频:王正
客服
消息
收藏
下载
最近












































































