知末
知末
创作上传
VIP
收藏下载
登录 | 注册有礼

邦舍深化设计|西藏通辽月子中心

2025/11/13 19:20:42
查看完整案例
微信扫一扫
收藏
下载
邦舍深化设计|西藏通辽月子中心-0
项目信息
项目名称:西藏通辽月子中心
深化设计:重庆邦舍深化设计公司
完成时间:2023年
项目面积:800
项目地址:重庆市
深化周期:15天
客户评分:⭐️ ⭐️ ⭐️ ⭐️ ⭐️ 
服务内容:
方案深化设计
工图深化绘制
设计变更
水电统筹
现场交底
竣工验收
#部分效果图展示
邦舍深化设计|西藏通辽月子中心-19
邦舍深化设计|西藏通辽月子中心-20
邦舍深化设计|西藏通辽月子中心-21
邦舍深化设计|西藏通辽月子中心-22
邦舍深化设计|西藏通辽月子中心-23
邦舍深化设计|西藏通辽月子中心-24
#部分施工图展示
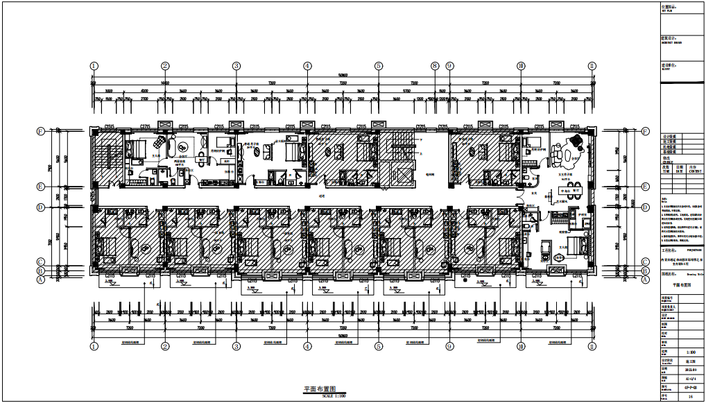
平面图
邦舍深化设计|西藏通辽月子中心-27
邦舍深化设计|西藏通辽月子中心-28
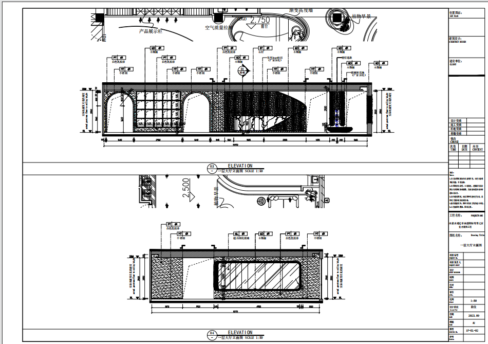
立面图
邦舍深化设计|西藏通辽月子中心-30
邦舍深化设计|西藏通辽月子中心-31
邦舍深化设计|西藏通辽月子中心-32
邦舍深化设计|西藏通辽月子中心-33
邦舍深化设计|西藏通辽月子中心-34
邦舍深化设计|西藏通辽月子中心-35
邦舍深化设计|西藏通辽月子中心-36
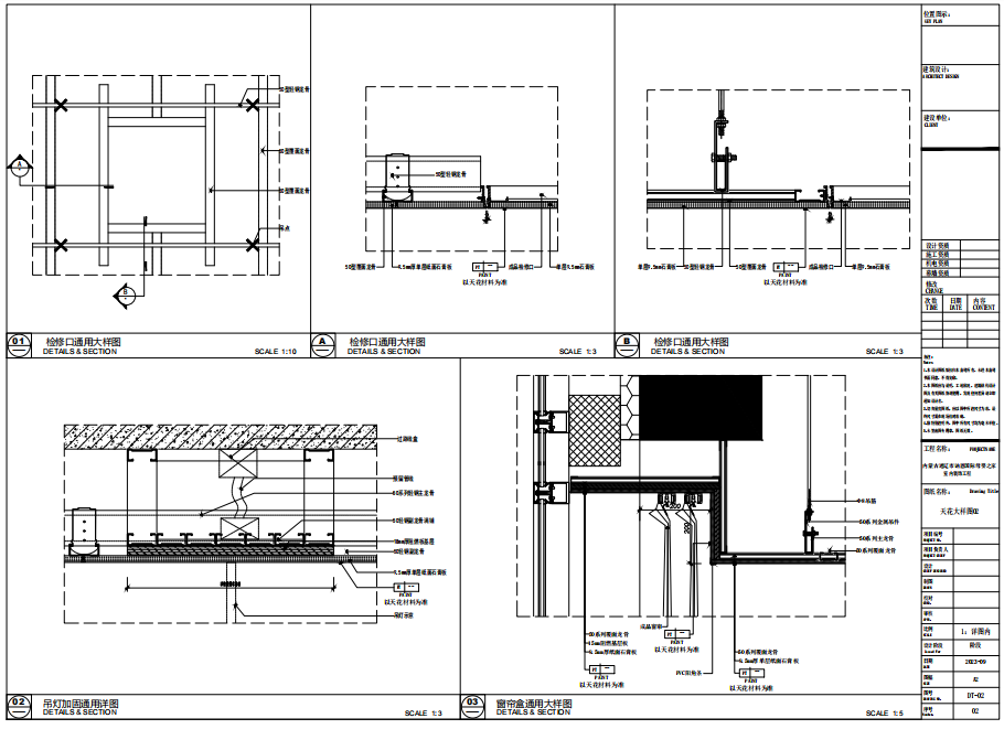
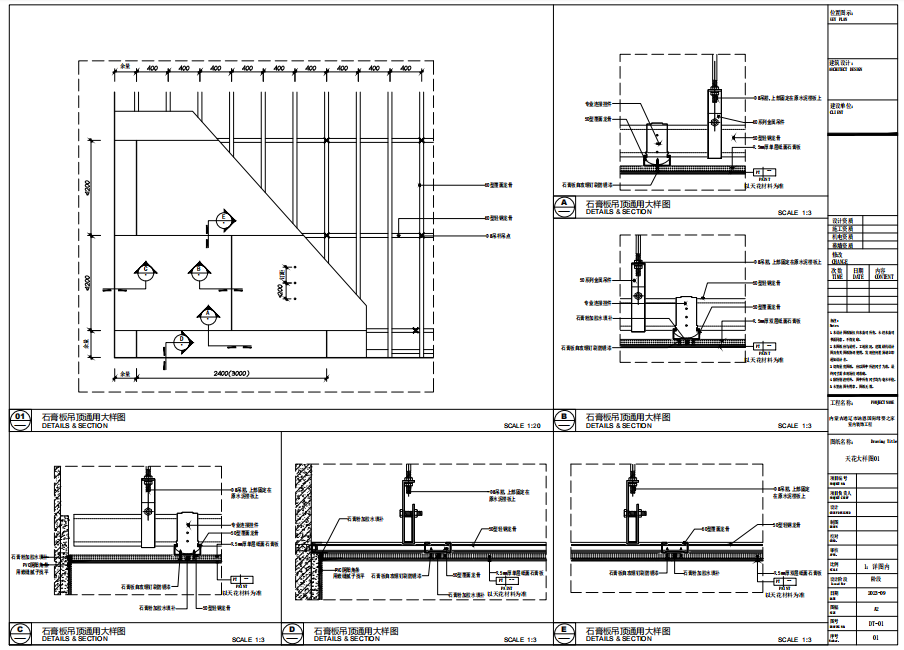
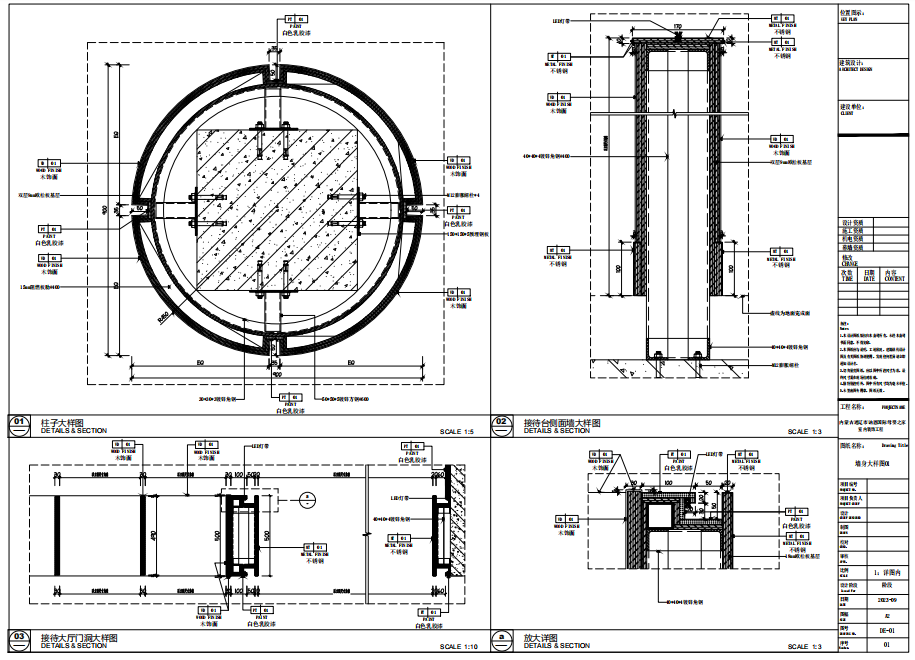
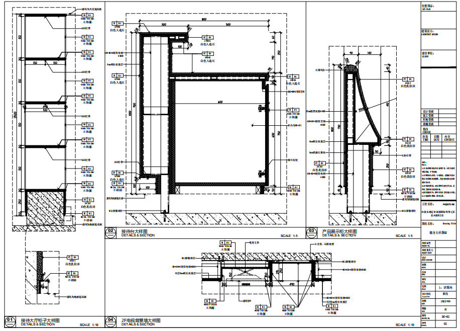
大样图
邦舍深化设计|西藏通辽月子中心-38
邦舍深化设计|西藏通辽月子中心-39
邦舍深化设计|西藏通辽月子中心-40
邦舍深化设计|西藏通辽月子中心-41
邦舍深化设计|西藏通辽月子中心-42
邦舍深化设计|西藏通辽月子中心-43
南京喵熊网络科技有限公司 苏ICP备18050492号-4知末 © 2018—2020 . All photos and trademark graphics are copyrighted by their owners.增值电信业务经营许可证(ICP)苏B2-20201444苏公网安备 32011302321234号
客服
消息
收藏
下载
最近