查看完整案例

收藏

下载
X I N G H E D E S I G N
设计的目的是为了实现价值-星禾
涵虚
取意于道家“涵虚混太清”之境,喻空间纳天地之气,融虚实相生之哲思。
本设计以“天地入怀,动静如一”为核心理念,将太极哲学中的阴阳流转、虚实相生转化为空间语言。通过光影交织、路径迂回、景致渗透,构筑一处身心归寂、意气相融的修习之境。空间不囿于形制,而重于气韵流动,使习拳者于行止俯仰间,体悟天人合一的东方智慧
。
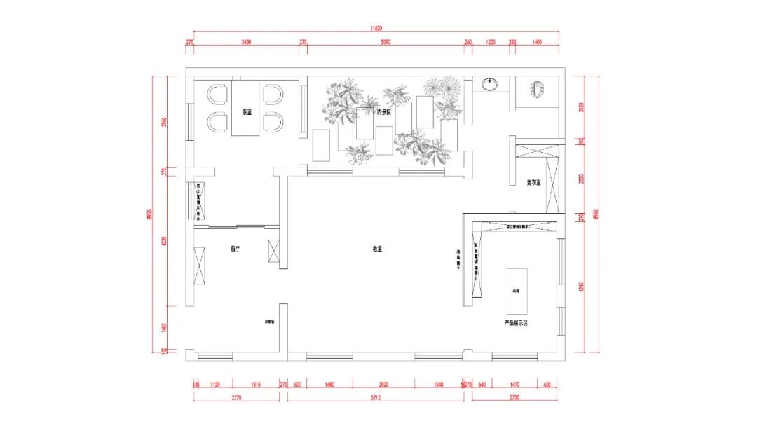
平面方案展示
Display of floor plan
局部方案展示
Local scheme demonstration
“庭院深深深几许,杨柳堆烟,帘幕无重数。”
此间以“引境”为契,通过框景、落景的叠合,形成空间的层次与隐逸。
“山光悦鸟性,潭影空人心。”
茶室与休憩区以“息心”为念,空间如一方静潭,倒影天光树影。不求器物之华,而求心境之澄,于此品茗论道,恰似与古人对话,神交天地。
“舟行碧波上,人在画中游。”
过渡空间以“流眄”为趣,借景手法将自然意象引入室内。步履所至,景随步移,仿若李清照“误入藕花深处”的偶然与惊喜,唤醒身心对自然韵律的感应。
“此中有真意,欲辨已忘言。”
习拳区以“守拙”为旨,墙面如宣纸素卷,窗外景致似无心之画。空而不寂,简而不贫,在此习静观之道,体悟“致虚极,守静笃”的修为本源。
整体方案展示
Overall scheme presentation
此设计非为塑造空间,而为编织一场“由形入神,由物及心”的修行体验。让太极拳馆不止于习拳之所,更成为当代人回归东方精神栖居的“心域”。
特别鸣谢
感谢马总对我们设计的支持和认可。
好的设计往往也离不开客户的信任。
ABOUT THE PROJECT
项目信息
项目名称丨太极拳馆
项目地点丨淄博张店
项目面积丨120㎡
设计总监丨张亚星
室内设计丨星禾创意空间设计
软装设计丨星禾创意空间设计
参与设计丨张亚星团队
张亚星
设计总监、星禾创意空间设计创始人
星禾创意空间设计,成立于2014年,专注酒店,餐饮,办公,店铺,洋房别墅等中高端空间设计。先后参与设计了北京海淀区法院院史馆,锦天设计大酒店,张裕集团专卖店,临安汽锅宴中餐厅,景德东,WEPLAY超级剧场,金佰特集团,中公教育,帛袖集团,春源白酒,昂旭建材集团,罗森博格木地板,蓝卡门窗,富思特集团,苏尚儿,花蝴蝶,牛打山,三夏光瑾,阿明哥左耳朵教育集团,南宫市社区,远见集团多个知名项目
。
星禾
致力于
在
有限的空间里发挥无限创意
,通过
力求
精湛的设计,
完善的施工
跟进服务,
软装搭配,实现项目的
完美落地。
商务洽谈
欢迎咨询 13695313258(张先生)
长按二维
码,
客服
消息
收藏
下载
最近































