知末
知末
创作上传
VIP
收藏下载
登录 | 注册有礼

邦舍深化设计|Wimeat餐厅

2025/04/17 11:56:20
查看完整案例
微信扫一扫
收藏
下载
邦舍深化设计|Wimeat餐厅-0
项目名称:Wimeat 餐厅
完成时间:2024年
项目面积:300
m
²
深化周期:3天
深化设计单位:
重庆邦舍深化设计有限公司
客户评价:⭐⭐⭐⭐⭐
#
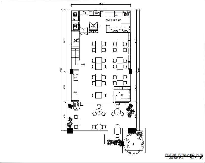
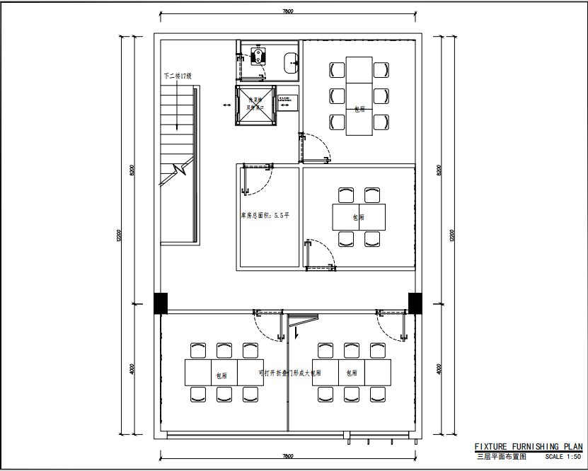
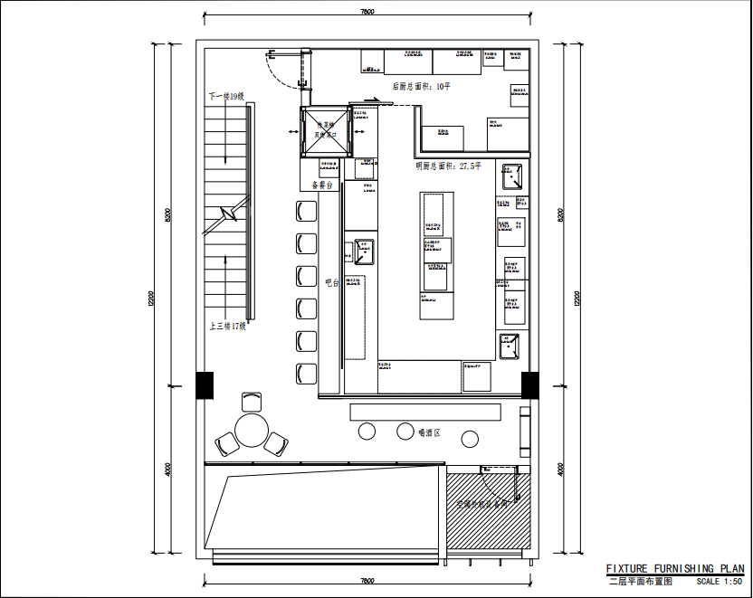
部分平面
邦舍深化设计|Wimeat餐厅-53
邦舍深化设计|Wimeat餐厅-54
邦舍深化设计|Wimeat餐厅-55
部分立面
邦舍深化设计|Wimeat餐厅-57
邦舍深化设计|Wimeat餐厅-58
邦舍深化设计|Wimeat餐厅-59
部分大样
邦舍深化设计|Wimeat餐厅-61
邦舍深化设计|Wimeat餐厅-62
邦舍深化设计|Wimeat餐厅-63
邦舍深化设计|Wimeat餐厅-64
#部分效果图展示
邦舍深化设计|Wimeat餐厅-66
邦舍深化设计|Wimeat餐厅-67
邦舍深化设计|Wimeat餐厅-68
邦舍深化设计|Wimeat餐厅-69
邦舍深化设计|Wimeat餐厅-70
南京喵熊网络科技有限公司 苏ICP备18050492号-4知末 © 2018—2020 . All photos and trademark graphics are copyrighted by their owners.增值电信业务经营许可证(ICP)苏B2-20201444苏公网安备 32011302321234号
客服
消息
收藏
下载
最近