知末
知末
创作上传
VIP
收藏下载
登录 | 注册有礼

邦舍深化设计|销售中心

2025/05/15 16:03:30
查看完整案例
微信扫一扫
收藏
下载
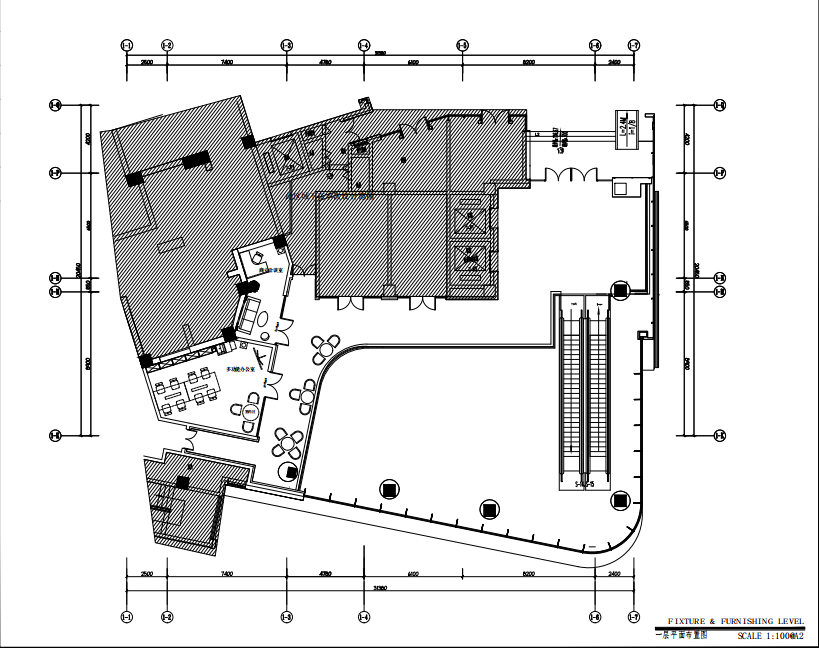
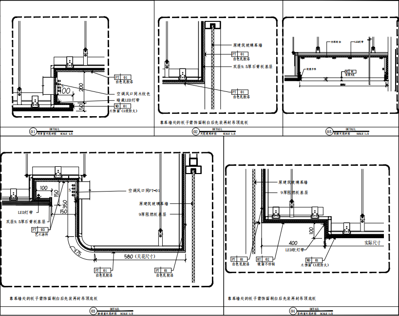
邦舍深化设计|销售中心-0
项目名称:销售中心
完成时间:2024年
项目面积:300
m
²
深化周期:3天
深化设计单位:
重庆邦舍深化设计有限公司
客户评价:⭐⭐⭐⭐⭐
#
邦舍深化设计|销售中心-52
邦舍深化设计|销售中心-53
邦舍深化设计|销售中心-54
邦舍深化设计|销售中心-55
邦舍深化设计|销售中心-56
邦舍深化设计|销售中心-57
邦舍深化设计|销售中心-58
邦舍深化设计|销售中心-59
邦舍深化设计|销售中心-60
邦舍深化设计|销售中心-61
#部分效果图展示
邦舍深化设计|销售中心-63
邦舍深化设计|销售中心-64
邦舍深化设计|销售中心-65
邦舍深化设计|销售中心-66
邦舍深化设计|销售中心-67
南京喵熊网络科技有限公司 苏ICP备18050492号-4知末 © 2018—2020 . All photos and trademark graphics are copyrighted by their owners.增值电信业务经营许可证(ICP)苏B2-20201444苏公网安备 32011302321234号
客服
消息
收藏
下载
最近