查看完整案例


收藏

下载

附件

翻译
In 2013, the Albanian Ministry of Culture envisioned a plan to improve the national cultural infrastructure, paying special attention to the renovation of existing historical buildings, reusing them with a new cultural program. One of the first projects included in this program is the Marubi National Photomuseum, which is specially important due to its pioneer character. The plan to create the museum has enjoyed an enormous national repercussion because of the historical importance of exhibiting the photographic legacy created during more than one century by three generations of photographers from the Marubi family. But also, because preserving and disseminating Marubi's work in a historical city as Shkodër acquires a strong symbolic significance that will help to promote the Albanian national identity, specially among new generations.
Dialogue between tradition and modernity
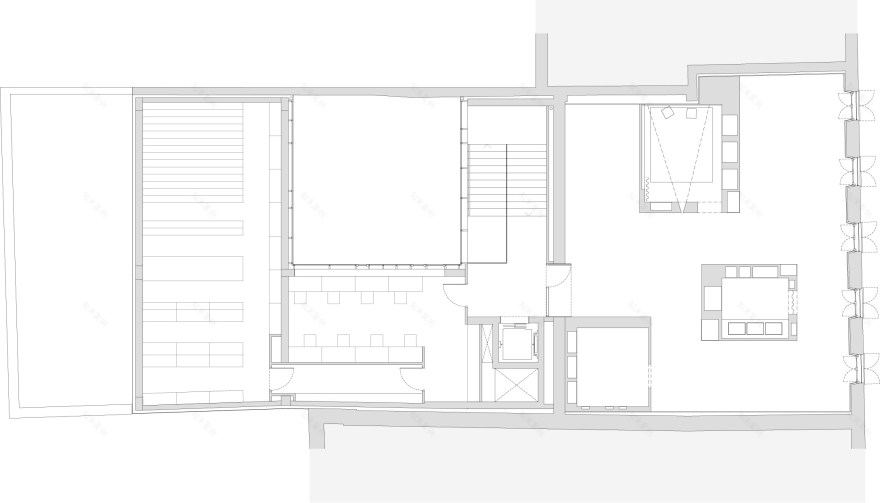
The selected design for the Marubi Museum developed by Casanova+Hernandez architects aims to promote a rich dialogue between tradition and modernity, between the past and the present. The legacy of the tradition is underlined by restoring the historical building designed by the famous Albanian painter, sculptor, photographer and architect born in Shkodër, Kolë Idromeno, while preserving its spatial and structural qualities without any volume transformation or new interior partitions. Conceptually, Idromeno's building becomes an important “object” of the exhibition to be shown, contemplated and visited. A modern image associated to the new museographic program is achieved by installing five “functional boxes”, which are prefabricated and detached from the original building, working as pieces of furniture or sculptural elements. Tradition and modernity establish a dialogue in every corner of the building. At the exterior of the museum, a showcase element works as a landmark that indicates the museum entrance; in the interior of the building, the original windows and spatial qualities of the building dialogue with the exhibition boxes; and in the courtyard, the old building coexists with a new modern and sculptural back facade.
Open, accessible and alive cultural landmark
On the one hand, the museum program expands into the public space and one of the “functional boxes” becomes a showcase installed in front of the museum, serving as a landmark that invites citizens to visit it. On the other hand, public space enters the museum and the project erases the border between street and institution with a transparent and accessible ground floor that hosts a free-entrance multifunctional space for lectures, workshops and temporary exhibitions. As a result, the project intends to create an open and alive museum capable of becoming a cultural landmark linked to the street life of Shkodër.
Interactive Chrono-Thematic exhibition: information and education combined into a multisensory experience
The exterior side of the functional boxes located on the first floor of the museum presents a chronological exhibition, which is intertwined with the thematic exhibition exhibited inside them. The chronological exhibition shows the life and achievements of the Marubi's dynasty with texts, historical pictures, videos and objects organized around the biography of the three members of the Marubi's dynasty. This information is put into context together with the history and culture of Albania and the city of Shkodër, thus acquiring an important didactic dimension.
The thematic exhibition complements the chronological exhibition by stimulating a multisensory experience that makes the visitor interact with the space and with the devices of the three thematic rooms. These rooms show three phases of the traditional photographic process presented inside the ideal reconstruction of the historical spaces where this process took place: the photo-studio of Pjëter Marubi "Driteshkronja", the darkroom of Kel Marubi and the Gegë Marubi's archive.
Museum Identity
The modern image of the museum is based on an abstract pattern, which is inspired by the geometry of the aperture of the photographic camera that opens and closes to control the light. This abstract pattern is used to design the structural layout of the five exhibition boxes installed in the building, while at the same time integrates a complete and versatile exhibition system that includes frames to exhibit photos and documents, showcases for objects and video screens for slide-shows and short movies.
The abstract pattern, which is always mixed with the photos and objects of the collection, becomes the symbol of the museum. It can be recognized at different scales and in several parts of the building such as in the logo of the museum, in the design of the street showcase, in the layout of the functional boxes inside the building, and even in the structure of the new artistic back facade that frames the views over the surroundings and filters the light within the building. Marubi National Museum of Photography acquires its own specific identity by linking all spatial, structural, functional, graphic and visual aspects, helping visitors to identify building and collection with a complete, rich and unique experience.
Advice photo curator: Kim Knoppers Historian: Zef Paci Local Architect: Atelier 4 Structural Engineer: Diana Lluka Mechanical Engineer: Spiro Drita Electrical Engineer: Dëshire Mena Photography: Christian Richters Blerta Kambo Casanova+Hernandez
客服
消息
收藏
下载
最近










































































