查看完整案例

收藏

下载
《一室之境》
自然材质与极简哲学
在你拥有的一切之下·发现你想要的生活
•
-原建平面图
原户型简述:
1.两房两厅一厨一卫双阳台户型
2.二分离卫生间,空间稍微局促
3.2+1卧室结构,3个卧室空间相对较小
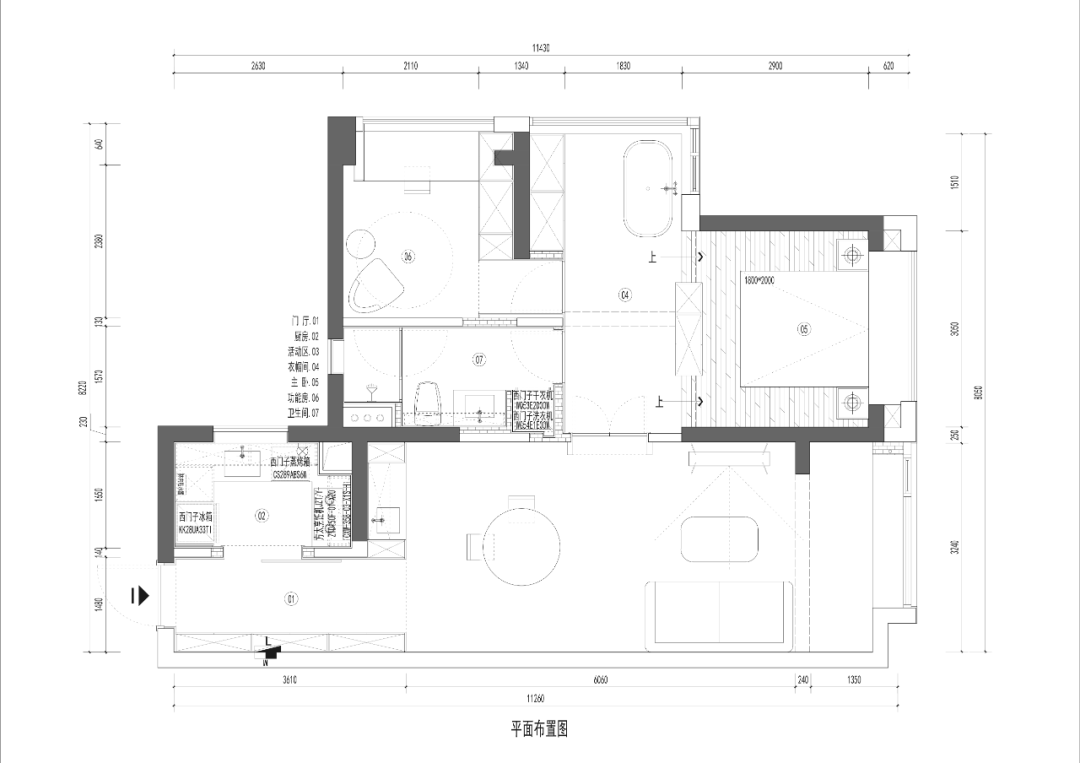
-平面布置图
平面改造:
1.以“大套间”思路改造空间
2.把静区空间重新调整,三房改一房,更好的服务屋主
3.公区以屋主的生活方式重新梳理,把阳台纳入室内
-
•
在这个喧嚣之外,我们打造了一处回归本质的静谧港湾。本案摒弃浮华,以最朴素的材料与最克制的设计语言,将两房户型蜕变为一个开放流动又私密专属的
“
大套间
”
,让居住回归纯粹的生活本真。
入户即见纯粹,通体留白的墙面如宣纸般铺展,迎接归家的目光。
一组顶天立地的深邃黑色定制柜,以利落的块体姿态,将玄关功能与厨房区域完美囊括、合二为一。
自玄关延伸向前,便是开敞的客餐厅一体空间。白墙继续铺陈,最大化引入光线,视野豁然开朗。
全屋纯净白墙,如同巨大的留白画布,最大化引入自然光线,让空间通透明亮,也映衬出材质本身的质感。原始水泥梁柱毫无遮掩地裸露着,其粗砺的质感与时间的痕迹,在纯净白墙的映衬下,显得格外震撼而真实。它提醒着空间的本质,也串联起空间的纵向维度。
一盏温润的纸灯轻盈悬垂于餐厅上方,既为归家点亮第一抹温暖,又中和了黑色柜体与水泥梁的冷峻,为这充满现代感的场域注入一丝东方的静谧禅意。这里,是共享美食、交流情感的所在,在极简的框架下,盛放着最真实的生活烟火。
柜体上方,原始结构的水泥裸梁赫然横贯,粗犷的肌理与下方精致的黑色柜面、侧旁素净的白墙,原始、精致、纯净在此碰撞共生。梁体不仅
是结构的诚实表达,更成为空间独特的叙事线索。
推开精心设计的双开门,仪
式感油然而生,宣告着从公共空间步入专属静谧的领域。
通铺的原木色地板贯穿始终,温润的触感与天然纹理是空间最温暖的底色,每一步都踏在自然的呼吸之上。
黑色定制柜体以清晰的块面
形态介入,形成强烈的视觉对比与收纳秩序,沉稳而富有现代感。
大胆保留并裸露的水泥梁,以其原始的肌理与粗犷质感,成为贯穿空间的独特风景线,凝固了时间的力量,与精致的柜体形成戏剧性的碰撞。
大胆引入的独立大浴缸,与卫浴空间结合,营造奢华
SPA
般的放松体验,让沐浴成为归家后的至高享受。
抬高的地台清晰界定出卧室区域,营造出包裹感与轻盈感,成为休憩的核心
“
岛屿
”
。
卧室空间依然保持着极致的简洁,无多余矫饰。一盏素雅的装饰灯置于床边一隅,营造出宁静、包容且富有温度的空
间
氛围。
预留的多功能房,可随时切换为书房、冥想室等,满足居者不断变化的生活需求。
没有繁复的装饰,没有跳跃的色彩。设计在此做减法,让材质本身的语言、光影的流转、以及精心构建的尺度与功能成为主角。极简
并非空洞,而是剔除冗余后,对生活本质的专注与对空间品质的极致追求。这里的一切都指向宁静、舒适
与回归内心的平和。
这是一个为崇尚自然、追求纯粹与内心宁静的主人量身定制的居所。它用最朴素的材料
——
木、白、黑、水泥
——
构筑起一个远离纷扰、自在呼吸的
“
大套间
”
。在这里,功能隐于形式之后,空间回归其庇护与滋养的本源,每一天都是与自我、与自然的深度对话。极简至境,归于本真。
-
•
项目名称 |一室之境
项目地点 | 广东·广州
项目面积 | 82
㎡
项目类型 | 住宅空间
设计时间
| 2024.08-2025-04
主创设计
|
胡哲
设计团队
|
古
月空间设计工作室
施工单位
|
3+1施工
项目摄影 | 林灿宇
曾获荣誉
2024
第27届CIID中国室内设计大奖赛 经济型住宅工程类
银奖(金奖空缺)
第27届CIID中国室内设计大奖赛 经济型住宅工程类
铜奖
第27届CIID中国室内设计大奖赛 颁奖嘉宾
第27届CIID中国
室内设计大奖赛 广州地区金十佳 评委
第23届CIID“新人杯”全国大学生室内设计竞赛 出题人及评委
2023
第31届APIDA亚太区室内设计大奖 小型居住空间 金奖
第26届CIID中国室内设计大奖赛 最佳设计企业
第26届CIID中国室内设计大奖赛 经济型住宅工程类 金奖
第26届CIID中国室内设计大奖赛
颁奖嘉宾
第26届
CIID中国室内设计大奖赛 广州地区金十佳 评委
第16届 TID 台湾室内设计大奖 居住空间 大奖
广东广播电视台房产频道《设计前沿》特邀嘉宾
2022
第30届APIDA亚太区室内设计大奖 居住空间 金奖
第25届CIID中国室内设计大奖赛 最佳设计企业
第25届CIID中国室内设计大奖赛 经济型住宅工程类 金奖
第25届CIID中国室内设计大奖赛 经济型住宅工程类 优秀奖
第25届CIID中国室内设计大奖赛 颁奖嘉宾
2022营造家奖 年度设计百强
2022营造家奖 年度最佳品质住宅设计奖
2022营造家奖 年度最佳二人住宅设计奖
广东广播电视台房产频道《设计前沿》特邀嘉宾
2021
第24届CIID中国室内设计大奖赛 最佳设计企业
第24届CIID中国室内设计大奖赛 经济型住宅工程类 金奖
2021营造家奖年度最佳中户型设计奖
2021金腾奖年度住宅公寓空间设计大奖 提名奖
2020
第23届CIID中国室内设计大奖赛 最佳设计企业
第23届CIID中国室内设计大奖赛 经济型住宅工程类 银奖(金奖空缺)
第23届CIID中国室内设计大奖赛 休闲娱乐工程类 优秀奖
红棉中国设计奖 2020室内设计奖
40 UNDER 40 中国(广州)设计杰出青年(2020-2021)
广东广播电视台房产频道《设计前沿》特邀嘉宾
2020年度中国(广东)住宅设计精英榜10强
第四届“戛迪奖”空间艺术设计邀请赛职业组空间类 金奖
第四届“戛迪奖”空间艺术设计邀请赛职业组空间类 银奖
第四届“戛迪奖”空间艺术设计邀请赛职业组空间类 铜奖
2019
第22届CIID中国室内设计大奖赛
入围
住宅工程类
中国家装设计百强人物(2019-2020)
广东广播电视台房产频道《设计星语》特邀嘉宾
广东广播电视台房产频道《设计前沿》特邀嘉宾
-
-
13433959393(古月)
13433959393
-
客服
消息
收藏
下载
最近




























