查看完整案例

收藏

下载
项目信息
业主单位:杭州临安中天房地产开发有限公司
项目位置:杭州市临安区青罗线与塘塍街交叉口北350米
设计范围:售楼处&会所、样板房
主创设计:薛峰
示范区设计:王君明、潘镇、陈阳超
样板间设计:卢卓明、郑海兴
软装设计:谈翼鹏、林理忠
完成时间:2024年6月
摄 影 师:图派
视觉
一隅见宋韵,此间即江南
以当代设计笔触,重现千年天目山下的风雅记忆
临安,一座被历史浸润的城市。天目山的雄浑,钱王故里的厚重,天目窑的雅致,都在诉说着这座城市与宋式美学的不解之缘。
在樾青岚这个项目中,DIA丹健国际以基于功能逻辑的理性化设计,借由材质的对比、色彩的搭配、体块的构成、空间的叙事感以及对于细节的刻画,重新诠释了宋式美学,为传统美学注入当代活力。这种融合,不仅是对临安历史文脉的致敬,更展现了丹健国际独特的设计语言——在传承中创新,深耕在地文化的当代转译。
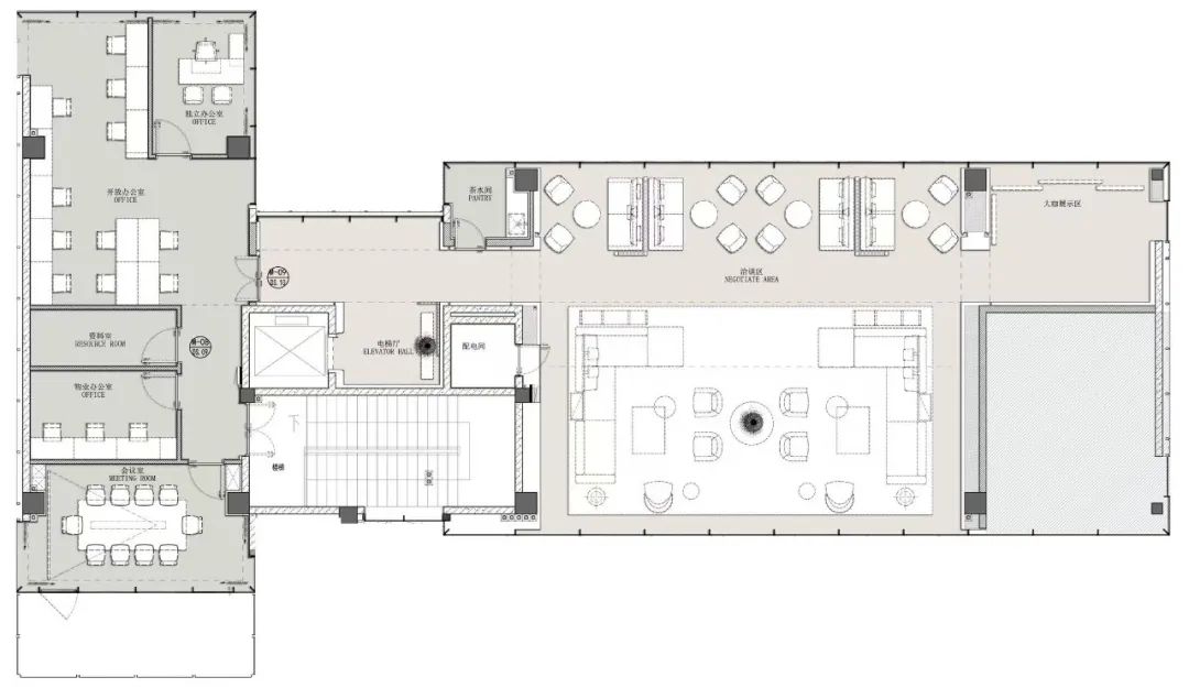
会所空间
分为上下两层。一层规划为接待区、展示区及初步洽谈区,暂作售楼处使用,未来也将作为社区归家门厅;二层则主要设置深度洽谈与休息区域。
通过合理安排的空间动线,在确保各功能区域独立性与私密性的同时,实现空间自然流动与视觉渗透。这种张弛有度的空间节奏,让业主从踏入伊始就能感受到"归家即度假"的惬意体验。
▽示范区一层平面图
▽示范区二层平面图
▽材料示意图
天目窑瓷器的温润釉色,钱王建筑的简约格局,无不体现着宋式美学的精髓。这些深厚的历史积淀,成为本次设计最重要的灵感源泉。
天目山韵:拱顶之下的宋式雅集
从天目山的自然轮廓中汲取灵感,拱形天花上优雅的弧线造型既保持了开阔的尺度感,又营造出亲人的空间氛围。做旧防锈古铜饰面与纯净基底的碰撞,在光影间勾勒出时光的质感。治愈系的整体色彩奠定静谧基调,配合精准的线条比例与体块穿插,让天花造型与空间和谐相融,共同演绎出富有仪式感的品质场域。
当午后的光穿过玻璃,那些游移的光斑在茶几的石纹上跳动,
触摸到的是宋人"不下堂筵,坐穷林泉"的东方栖居理想。
水墨玉大理石的天然纹理,在空间中静静舒展——既有夕阳晕染湖面的朦胧美,又保留了天目釉特有的温润质地,为整体环境增添了一份自然的灵动。
光影叙事:克制的空间诗意
二层洽谈区延续了一层弧形天花设计,巧妙地结合建筑条件进行重新演绎。中央天井引入流动的自然光影,浅色麻质墙布饰面从中心向两侧舒展,以质朴材质勾勒优雅弧线。丹健秉持一贯的克制设计手法,摒弃繁复装饰,用最纯粹的形式诠释宋式美学的含蓄意境,营造静谧诗意的空间氛围。
▽效果图
250户型--宋韵新绎:当东方雅致邂逅都市精致
以宋式美学为基调,巧妙融合都市精致感与酒店品质感。在保留宋代雅致意境的同时,注入现代简约的线条与精工细节,呈现兼具东方韵味与现代舒适的新美学空间。
205户型--张弛有度:材质对话中
的空间诗意
水云纱石材以自然的肌理铺陈视觉张力,而深色木饰面与灰白大理石的理性组合,则赋予空间内敛的底色。这一放一收的材质对话,既形成强烈的美学对比,又暗合东方"虚实相生"的哲思,最终让空间在张扬与克制之间,达成微妙的平衡与艺术化的生活表达。
168户型--宋式"雅致" × 安缦"隐逸"
以宋式美学"雅致天成"为魂,融合安缦酒店"隐逸"精神,打造当代都市微度假空间。奶油色基调如宋瓷釉色般温润贯通,自然光影透过窗棂,在开放布局中绘就"移步易景"的朦胧画卷。
不简单陈设宋代器物,而处处可感宋人风雅,这是我们提取宋代气质,将其融入空间的结果:将天目山脉之形淬炼为空间动线,将层峦叠翠之意提炼为建筑造型,将钱塘潮信之势凝为空间节律。于东方画卷里,呼吸着现代的节奏,让宾客在感受宋式意境的同时,尽享现代酒店式的奢华与舒适。
以作品致敬时代
ABOUT DIA
Dejoy International Architects (DlA) is an international design team focusing on high-end real estate interior design.
We have design teams in Shenzhen and Shanghai in China. DIA mainly focuses on design for public space such as premium hotel, office, residence, club and commercial space. We have a long term partnership with CRland,
Merchants, Greentown,
OCT, Sunac and so on. Our works include a series of master pieces in Top cities like, Shanghai Suhe creek, Beijing Dongzhimen 8,
CRland Ruifu&Yuefu seires, One Sino Park series of Sunac,
Shenzhen The Twin Towers and so on. DIA has already gained remarkable testimonial in the interior design area, due to the great reputation and steady style of work since its establishment. Hope that we will have the opportunity to cooperate in the near future.
上海 ShangHai
TEL_(086)021-61313410
深圳 ShenZhen
TEL_(086)0755-82565580
DIA 近期项目
▽招商 上海康定壹拾玖
KANGDING GARDEN
▽陆家嘴集团 上海前滩公馆会所
▽华润置地 三亚海棠悦府二期
▽南京 金陵序会所
▽西安 源邸滨湖项目 会所
▽陆家嘴集团前滩公馆 海派艺境体验中心
▽南京伟星 长江之歌
▽华润置地 杭州望云璟晨府
▽华润置地 三亚海棠悦府 (2024悉尼设计奖、亚洲设计奖、伦敦杰出地产大奖)
▽深圳光明润宏城 城市展厅(国际房地产大奖商业空间大奖、德国国家设计奖、美国建筑大师奖)
▽上海 苏河之巅 华润华东展厅(2023德国标志性设计大奖)
▽北京 东直门8号 (2022 德国iconic设计大奖)
客服
消息
收藏
下载
最近































































