查看完整案例

收藏

下载
撰文/排版:浔浔妹
图片:华浔广州公司
在
“
减法美学”
趋势下,现代极简风装修精准踩中人们追求
简单、便捷、高效
的心理需求,成为越来越多人的选择。
但
看似简单
的风格,实则落地
越
一点都不
简单
,一不小心就容易装出廉价感。
如何把现代极简风装出高级感?
看完这个
三代同堂之家
的设计思路,原来家的高级感原来都藏在这些细节中......
0
1
为什么装修完没有网感?
“干净的家,是对自己的取悦!”
本案业主是一对
90
后新婚夫妻,计划三年内要孩子,五年内和父母一起居住。
在初步与设计师沟通中,多次表示喜欢网上同款看起来
“干干净净”
的家。
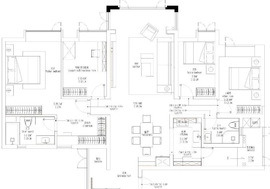
设计方案平面图
要求
也
很明确:
高颜值、超强收纳、
用材环保、
温馨灵动、拒绝样板间!
然而,这套
163
㎡出租多年的老房,
并不具备网红设计的结构硬性基础条件。
如何在满足
“颜控”需求的同时,避开不切实际的“网红坑”
?
本案
设计师给出的
解题思路是
:
以温柔包容的
杏
白
色系为主调
,融入自然质朴的
原木色、奶咖色
等低饱和度颜色
,点缀纯净白色,构成全屋灵魂底色
,
创作出轻盈的肤感裸色效果。
材质倾向选取
肌理感较强的材质
,如棉麻、原木等等,这类哑光、自然系的材质能提高家的质感,以烘托出现代简约风的干净整洁明亮氛围。
0
2
“化繁为简”玩出高级感,越简单越耐看
设计可以简单,但一定要干净!
简单的硬装造型,干净的结构线条,清爽的配色以及浅色调的软装。
从
玄关
开始,
隐藏巨量储物
空间:到顶鞋柜、
墙柜、
橱柜
、餐边柜整合嵌入式冰箱
/烤箱/水吧、各卧室强大衣柜系统...
将收纳化于无形,是保持极简美学的关键。
11
×
4.2m
的大横厅是全屋高级感的核心,
肤感板打造的背景墙
,触感温润细腻;
电视背景墙则选用大气岩板,打造悬浮设计
,高级感与层次感直接拉满,成为视觉焦点。
巧妙融入优雅线条、精选的轻奢家具、独特的艺术灯具,打破格局束缚,空间瞬间
“活”了起来。
定制柜体、家具、局部墙面,恰到好处地运用自然奶杏色,中和浅色调的清冷,注入家的暖意与生机。绿植的点缀,也更添一抹灵动呼吸感。
立即扫码get同款装修
磁吸轨道灯
、嵌入式筒灯、隐藏灯带、精致装饰灯多层次组合,光线柔和富有变化,营造极简空间的高级氛围。
“空间划定”是装修高级感来源的关键。
客餐厨等公共区域,
通铺
肤感
哑光砖
——质感高级、视觉统一显大、便于打理。
厨房
U型橱柜布局
最大化利用空间,
洗
-切-炒动线流畅,结合开放式设计
,与餐厅互动无阻,备餐台也超级能装。
步入私密的卧室
空间
,则换上温馨的
“工字拼”
木地板
,光脚踩上去的幸福感瞬间拉满。
主卧
套房
巧妙开辟出多功能混合区域
,
突破单纯睡眠区
,
独立隔出多功能书房
+步入式衣帽间
。
工作、阅读、更衣收纳互不干扰,极大提升主卧空间效率和居住品质。
两间
次卧
兼客卧,家具选配灵活、电位预留充足、空间尺度适中,未来可无缝切换为儿童房或老人房。
主卫与公卫都做了干湿
分离
,
将洗漱区与方便区(马桶
/淋浴)彻底
分开,
提高了使用效率和私密性,这也是为未来多人同住留白。
这套
163㎡的
浅色调现代
极简之家,完美演绎了何为
“
始于颜值,忠于实用,预见未来”
。
经得起时间考验的家
,
每一寸设计,都写满对生活的热爱与远见。
拒绝
“网红滤镜”的诱惑,将
诗和远方的理想
稳稳
融入
在现实的土壤。
(
欢迎点赞、转发,让更多人看到这篇实用的装修指南~)
设计后记:
婚房作为大部分人人生当中的第一套房,装修不仅要
“
看得见的现在,想得到的未来
”
。
用
前瞻性的空间规划和顶级环保标准
规划
,引导业主看清理想与现实的合理距离
,而规划能完美落地、契合业主生活方式的坚实港湾!
扫码立即咨询同款装修
现在预约 即享受
上门量房、平面方案、报价
等免费服务
欢迎点赞、转发~
让更多人看到这篇实用的装修指南!
【 项目名称 】
项目名称:
广州天健上城
项目地址:
广东广州
设计单位:
华浔品味装饰集团
设计师:
周应钦
时间:
2025.6
面积:
163㎡
【本案设计师档案一】
周应钦
华浔品味装饰集团|设计总监
HA艺墅设计院|设计院院长
米兰国际HOAA设计师
CIDA中国室内装饰协会会员
国家注册高级室内建筑师
国家注册高级室内设计师(中装协)
在十几年的设计职业生涯里,他曾到访香港、新加坡、意大利、德国、奥地利、泰国、马来西亚等国内外多地考察学习,多年沉淀磨砺出成熟的风格,严谨的思维,注重人与空间、形态与色彩的平衡关系,着力传达出设计的意境及本位美。
所获荣誉
2006年 作品入选《现代装饰》杂志
2008年 广州“信息时报”设计大赛 最具创意奖
2009年 广州“南方都市报”年度设计大赛 优秀作品
2009年 第三届广州建筑设计大赛 住宅空间类 铜奖
2011年 第一届金馬克杯大赛 优秀奖
2013年 第五届广州建筑设计大赛 办公空间奖 银奖
2015年 第三届金馬克杯大赛 金奖
2015年 中南地区国际空间环境艺术设计大赛 铜奖
2016年 中国筑巢奖 办公空间类 优秀奖
2017年 第四届金馬克杯大赛
办公空间 银奖
2017年 第四届戛迪杯设计邀请赛 金奖
2018年 第三届中南地区国际空间大赛 金奖
2018年 亚太空间设计年度评选 新锐设计师
2019年 第五届金马克大赛 年度别墅大宅类 银奖
2021年 第五届金马克大赛 年度十佳公共空间奖
2023年 第七届金马克大赛 年度十佳公共空间奖
2023年 第十一届筑巢奖 办公空间 优秀奖
2023年 红棉设计奖年度优秀雅奢空间设计奖
2023年 获筑巢 中国美好人居70年展“美好人居创造者”
【本案设计师档案二】
王晓祥
华浔品味装饰集团广州公司
HA艺墅设计院|资深设计师
米兰国际HOAA设计师
CIDA中国室内装饰协会会员
国家注册高级室内建筑师
国家注册高级室内设计师(中装协)
毕业于湖北工业大学环境艺术设计,在十年+设计的职业生涯里,历练于公共空间设计以及住宅设计,坚持以人性需求及成长空间为设计核心理念,服务并出品了众多优秀设计作品,凭借出色的设计作品,曾多次获得设计奖项。
设计理念
爱生活,爱设计。
选择华浔,选择放心,选择品质
我们始终心怀感恩
用最好的服务回馈每一份信任
往期案例推荐
|DESIGN EXAMPLE
实景案例-130㎡四口之家的极简风装修,拒绝过度装修后,这个家真的太干净了!
实景案例-120㎡华南碧桂园极简奶油风,小户型你就照着抄吧,这次真的惊艳到了!
实景案例-180㎡现代极简风大平层!业主直呼:钱没白花!
客服
消息
收藏
下载
最近
































