查看完整案例

收藏

下载
撰文/排版:浔浔妹
图片:华浔广州公司
70%的家庭装修矛盾源于风格对立,但混搭风接受度年增35%。——《2023家居设计趋势报告》
“结婚
10年没红过脸,装修3个月差点去离婚!”
当
“极简主义”
遇上
“浪漫主义”
,
装修风格发生严重分歧只能二选一?
0
1
“极简”or“美式”?
设计师一招破解,装修风格选择困难症
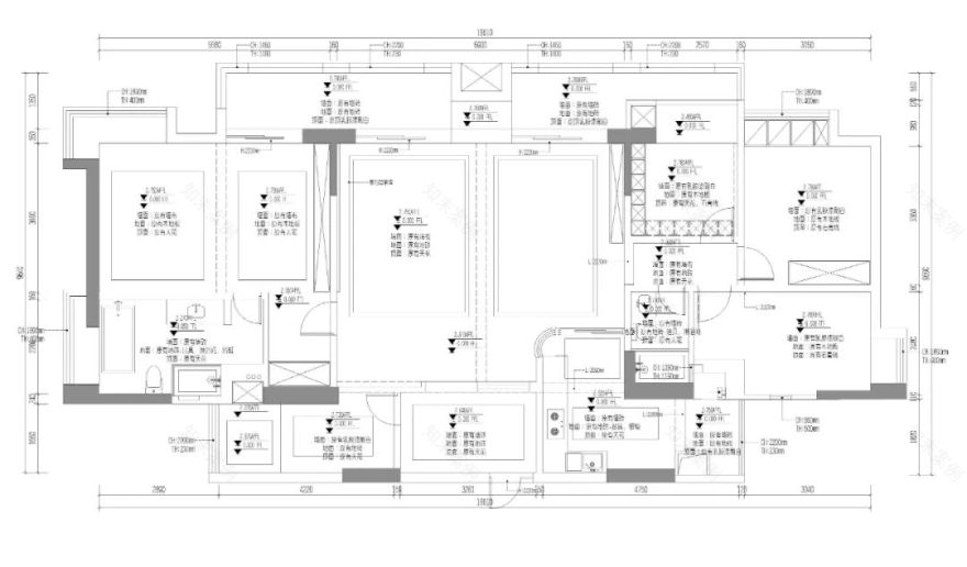
本案位于
广州荔湾区岭南湾畔
,165㎡的三口之家。
男主人喜欢极简风,女主人坚持现代美式风格,两人在
装修
风格
上了发生严重
分歧
。
“极简”or“美式”
?双方都愿意不买账。
负责本案的设计师易工选择了
“or”,给出了的第三种解法
“
混搭
”
。
沿着现代简约美式的松弛温馨的基调,确定整体的个性化装修风格倾向,硬装设计上植入极简主义细腻的内核。
欢迎扫码get同款装修
↑
↑
↑
0
2
房子越住越小?
听劝,改居家动线准没错
随着居住年限越来越长,家中杂物堆积越来越多,是大部分家庭的常态
165㎡的房子,一家三口住,硬是住出65㎡的拥挤感。
此次旧房改造,业主夫妻有着明确且一致的诉求:
在满足收纳的前提下,空间颜值排第一位。
设计师在勘察完原房屋后,发现
原房屋收纳空间严重不足,居家动线设计出了严重的
buff。
原建平面图
设计师首先
将房屋整体动线梳理流畅,把收纳设计重点放在了入户玄关与客餐厅区域的规划上。
设计方案平面图
0
3
收纳多=丑?
抄“小户型”收纳设计,颜值高又显大
收纳多
=丑?
收纳设计思路很关键,建议照搬
“
小户型”收纳设计
是真省空间,巧用
“满墙设计”
储物空间拉满。
本案设计师先从玄关
“偷空间”
,
顶天立地柜中间
预留钥匙、门卡置物格,
下方
预留
悬空
15cm内嵌灯带,存放全家常穿鞋子。
打造
回字形客餐厅
,
靠墙
嵌入式
到顶
餐边柜与沙发形成闭环,
走路不再
“绕桩”
,
动线缩短
60%。
全屋主色调定调银灰色,
750*1500
灰杏色
柔光砖通铺,
让整体视觉效果更统一。
拆掉让业主不爽的老式灯槽天花板吊顶,降低层高显压抑不说,还易藏灰。
改成天花板
2cm极窄石膏线
内嵌柔性的灯带
,
空间视野开阔明亮,
能耗
比射灯
节约
30%
。
设计师特地选用了可调节色温的轻奢造型吊灯和壁灯,轻盈又不失空间质感。
卧室靠墙整面到顶衣柜,长短衣区分类存放,给足收纳空间。
1.8米的大床,床尾配置了经典美式风格床尾凳,复古又浪漫。
床头两盏羽毛壁灯悬置在浅色木质护墙板上,整个空间梦幻而温馨。
装修
不仅要有设计感,好用才是最重要的,不论是家居质感,还是收纳储物都要精心考虑到。
好的混搭像西装内搭蕾丝衬衫,优雅且魅力十足。
(欢迎转发关注,给大家提供实景装修灵感
~)
立即扫码get同款装修!
现在预约 即享受
上门量房、平面方案、报价
等免费服务
欢迎点赞、转发~
让更多人看到这篇实用的装修指南!
【 项目名称 】
项目名称:岭南湾畔
项目地址:广东广州
设计单位:华浔品味装饰集团广州公司
设计师:易俊超、林萍萍
完工时间:2024.12
面积:165㎡
【设计师与业主合影留念】
业主(右一),
设计师(左一林萍萍、中间易俊超)
【本案设计师档案一】
易俊超
广州华浔品味装饰集团广州有限公司|总监设计师
中国室内注册设计师
中国装饰协会会员
高级住宅软配设计师
设计理念
自然、和谐里带有人文的家居氛围乃为上品。
个人介绍
毕业于湖北工业大学工艺美术专业
从事设计行业16年以上
2015年加入广东华浔品味装饰集团广州公司
个人荣誉
2011 年第一届金马克杯手绘大赛 入围奖
2013 年第五届广州建筑装饰设计大赛 办公空间类 优秀奖
2015 年第三届金马克杯大赛 优秀奖
2016 华南地区国际空间环境艺术设计大赛 铜奖
2017 广州设计周“设计中国行” 最佳创意奖
2020最美雅奢空间先锋设计奖
【本案设计师档案二】
林萍萍
广州华浔品味装饰集团广州有限公司|资深设计师
中国室内注册设计师
中国装饰协会会员
高级住宅软配设计师
设计理念
设计是深思熟虑过后的冷静,需要从生活中用心感悟,设计风格多种多样,每种风格都有独有的特色,却都又各不相同,设计永远都在寻求改变与创新。
个人荣誉
2016 荣获亚太室内设计双年赛二等奖
2017 荣获德国IF设计大奖优秀作品
2018 荣获筑巢奖优秀作品
2019 荣获居住空间进化优秀作品
2020 色彩设计大会年度优秀色彩空间设计
2021 荣获国际色彩空间设计大赛年度优秀色彩空间设计奖
2022 荣获华浔优秀设计师
2023 荣获中国室内设计周优秀作品
选择华浔,选择放心,选择品质
我们始终心怀感恩
用最好的服务回馈每一份信任
2025 奋进年
延续创新 奋进发展
华浔品味装饰集团
守正奋进向阳生!
创新进取勇争先!
往期案例推荐
|DESIGN EXAMPLE
实景案例-130㎡四口之家的极简风装修,拒绝过度装修后,这个家真的太干净了!
实景案例-120㎡华南碧桂园极简奶油风,小户型你就照着抄吧,这次真的惊艳到了!
实景案例-180㎡现代极简风大平层!业主直呼:钱没白花!
客服
消息
收藏
下载
最近




























