查看完整案例

收藏

下载
这是一座集竞技、训练与休憩于一体的综合性体育建筑。东靠山体,西临街道,巧妙实现建筑与地形的有机共生。遵循“彻上明造”这一中国传统木构的最高等级形制理念——运用现代胶合木技术,呈现大跨度木构的真实表达,跳出对传统大屋顶的思维方式,展现出中国传统木构建筑智慧在当代公共建筑中的创新生命力。
▴ 概念草图 © 汤桦
1
技术系统
结构性能与生态建构的一体化实现
本项目核心结构采用跨度66米、总长96米的胶合木组合梁系统,以连续发散的整体屋檐形态统合建筑造型与空间覆盖。该系统不仅实现观众席遮阳与临街骑楼空间的功能复合,更通过天窗与屋面一体化设计优化自然通风与采光,体现结构性能与生态策略的协同。所有构件均基于力学逻辑布置,无冗余装饰,节点构造清晰可读,体现出“彻上明造”所倡导的的建构真实性。这一木构系统在实现大跨度覆盖的同时,也建立起一套技术理性与建筑诗意并重的当代木构语法。
▴ 木构分析 © 汤桦建筑设计
2
文化转译
从传统形制到当代空间语汇
设计超越对传统大屋顶的符号化挪用,转而从“彻上明造”的内在理念——即结构等级清晰、构造真实可读——出发进行现代转译。屋檐系统不再仅是形式母题,而是成为组织光影、引导风流、界定空间的核心装置。多标高“廊”的穿插在引入自然的同时,也重构了传统建筑中“廊-院-景”的叙事关系;环院布局与发散式密檩形态共同唤起岭南地域建筑记忆,并以现代的技术语言加以实现。
▴ 横剖轴侧 © 汤桦建筑设计
▴纵剖轴侧 © 汤桦建筑设计
▴ 细部与采光通风设计 © 汤桦建筑设计
3
实践总结
重型木构与气候人文的深圳实践
本项目是重型木结构系统在深圳亚热带气候与地域人文语境下的一次系统化实践。深远出挑的连续屋檐体系,不仅构成了建筑鲜明的形态特征,更是一种深刻的气候应对策略:在遮挡强烈日照与暴雨的同时,组织起建筑周围有效的自然通风。这一基于生物气候学理念的设计,显著降低了场馆运营的能源负荷,体现了低碳建筑的生态价值观。
▴ 室内训练场 © 张超
▴ 室内训练场 © 张超
▴檐下与屋面之间 © 张超
▴檐与廊 © 张超
主体木结构系统呈现出力与美的真实性,而通过“廊”“院”“檐”等空间元素的穿插,建筑重新诠释了岭南传统建筑中关于通风、遮阴的智慧,唤起场所的集体记忆与文化认同。
▴观众席 © 张超
▴观众席 © 张超
▴街角傍晚 © 张超
▴主入口 © 张超
宏伟的木构屋架之下,形成的是供人与马匹共同使用的、舒适且富有仪式感的场所,竞技、观演、休憩等一系列活动在此发生,重塑了当代体育建筑的人文体验。
▴主赛场鸟瞰 © 张超
▴主赛场 © 张超
▴室外训练场 © 张超
▴鸟瞰 © 张超
深圳光明国际马术中心超越了单纯的技术应用,成功地将重型木构的材料性能、气候适应性策略与地域人文关怀融为一体,为亚热带高密度城市地区的低碳-人文型大型公共建筑创作,提供了一个具备前瞻性与示范性的深圳方案。
4
技术图纸
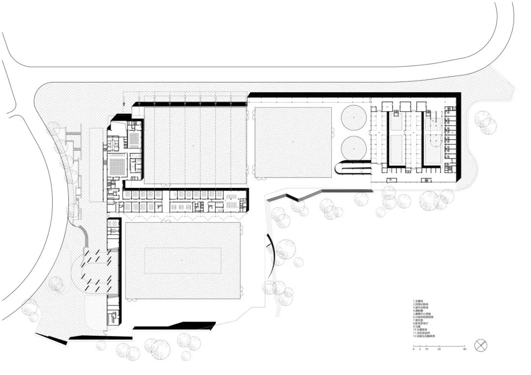
▴总图 © 汤桦建筑设计
▴1F © 汤桦建筑设计
▴2F © 汤桦建筑设计
▴马匹流线 © 汤桦建筑设计
▴3F © 汤桦建筑设计
▴4F © 汤桦建筑设计
项目信息
项目名称:深圳光明国际马术中心
建设单位:深圳市光明区建筑工务署
设计单位:
深圳汤桦建筑设计事务所有限公司
主创建筑师:汤桦
项目负责人:朱闯
方案设计:张秋龙、许森茂、邓芳、彭舰、侯薇、汤孟禅、吴雨芮、黄真吉、张翔、赵宇力
技术负责人:王鲲、汪田浩
深圳机械院建筑设计有限公司
技术负责人:唐增洪
项目负责人:孙锐、刘孟超
总工程师:全松旺(建筑);冯育达(结构);李耀星(电气);丁红(给排水);童岚(空调)
专业负责人: 建筑:赵乃玉; 结构:王茜、丁劲清, 电气:林文超, 给排水:张维、 暖通:蒋丹翎
现代木结构施工单位:
武汉林榔木建筑工程科技有限公司
顾问团队:
特殊消防顾问:彭磊、刘江茜(天津泰达消防科技有限公司)
木结构设计人员:詹晖、庄寅麟 (上海交通大学设计研究总院有限公司)
基坑支护设计人员:张俊、李典(中国京冶工程技术有限公司)
风洞试验团队:石碧青(华南理工大学)
马术体育工艺顾问团队:浙江省建筑设计研究院、香港赛马会
摄影:张超建筑摄影工作室
撰文:邓芳
版权声明
Copyright Statement
本文版权归我司所有
The copyright of this article belongs to Tanghua Architect & Associates
欢迎各类媒体合作,请与我司联系取得授权
You're welcome to share and repost this article.
深圳市福田区天安数码城创新科技广场二期西座 401室
+86-755-8294 7399
客服
消息
收藏
下载
最近
































