查看完整案例

收藏

下载
穿行于喧嚣都市里
你是否也渴望片刻的宁静
于繁华中惬意栖居
在日常里寻回自我
负二楼做开放式布局,按照居住者的生活需求增加了多功能休闲区。棋牌室+台球区+品茶室+客厅,娱乐、办公、阅读、休闲均可以满足,使用功能不设限,为生活提供更多可能。无遮无拦的设计提供更为灵活的动线,强化整个空间的社交属性。
无主灯设计让顶面空间视觉扩大,地面密缝哑光砖让空间形成块面,两者结合增加了空间层次,寥寥装饰点缀,自成家中亮眼风景。
挑空与天井轻松化解自然采光不足的问题,阳光可以自由洒落的地下室,高级与舒适并行。
圆形的吊顶搭配圆桌,用简约的吊灯过渡,构建设计整体性;配色上,餐桌与餐边柜、餐椅相互配合,不落俗不突兀。也让每一次的用餐与举杯,更加松弛与舒适。
一楼设计中,通过使用大量留白,结合浅色调的墙面与地砖,创造了一个宽敞明亮的空间感。少量的大理石元素,
增添了高端质感的同时,也保持了整体的简洁性。
餐厅充分利用墙体打造出餐边柜,平整利落的嵌入式设计让冰箱无缝融入背景,极大提升空间整体感。透明收纳柜既调控着视觉的通透性,又兼顾了开放性与私密性的需求。圆形餐桌安静立于空间中,容纳家人相围而坐,灯火可亲,洄游动线让家庭互动感更强。
舍弃华丽设计的空间,在简约中不断放大居住舒适度,完美还原居住者所憧憬的理想生活场域。
以开放的姿态放大空间自由度,通铺的地砖强化延伸感,简约且开阔。分散的点状光源与线状光源取代传统的面光源,可根据居住者的需求灵活搭配,照明上更显人性化。
设计解锁更加精简的生活方式,打造流畅的洄游动线。以柜为墙围合出一隅衣帽间和休闲区,与主卧构成嵌套关系,提升空间利用率和居住便利性。
主卧自成一方静谧天地,至简浅淡,如云朵般轻盈,循着留白的韵脚酣眠其间。临光的通透感蒙上一层朦胧滤镜,呈现出宁静无压的舒适感。
来到卧室,鲜明的棱角裹挟着规整的布局。模块式的设计一丝不苟,方正组合建立基础框架感的同时,又通过错层与悬浮实现多元化的功能呈现,铺垫自由理想的私密生活。
无主灯设计堪称绝妙之笔。没有了主灯的集中照明,光线以更为柔和、均匀的方式散布在空间各处,让整个卧室看起来格外通透,仿佛没有了边界的束缚。
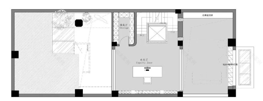
地下室平面布置图
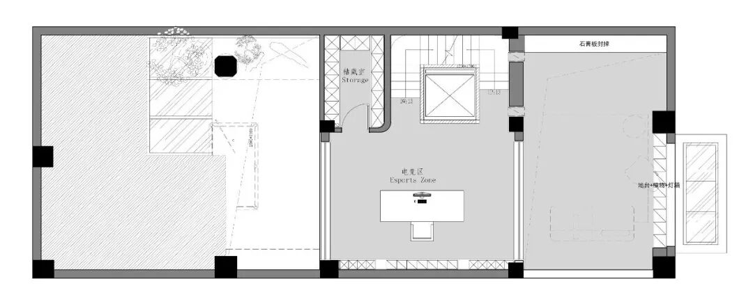
夹层平面布置图
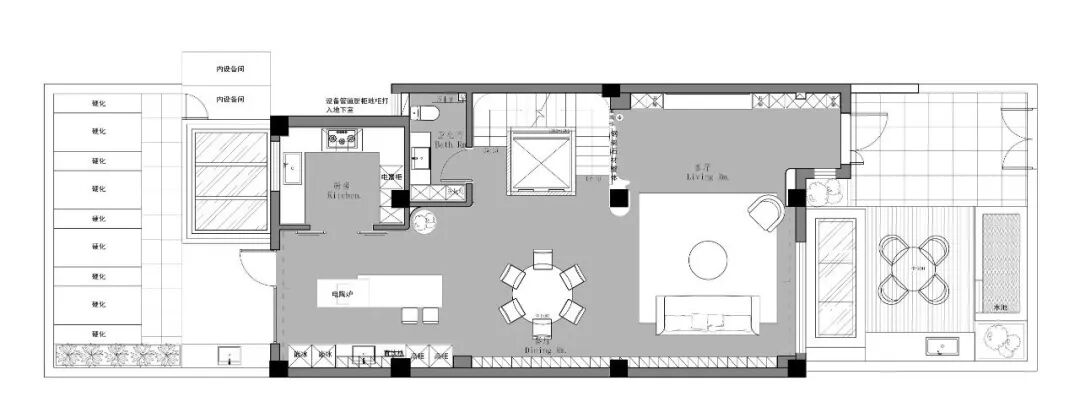
1F平面布置图
2F平面布置图
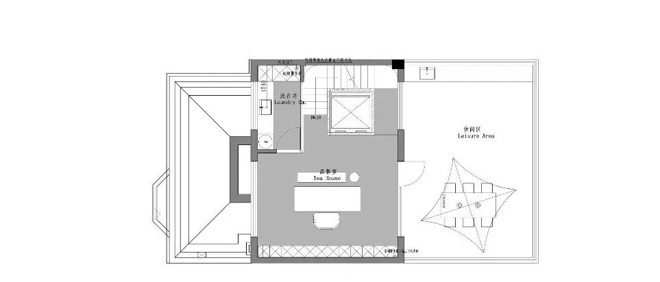
3F平面布置图
4F平面布置图
项目名称:吉
宝
澜岸铭邸
设计面积:500M2
项目地址:中国 无锡
设计主创:朱清林
设计团队:宋永阔 周保奇
室内设计:ZISHUO SPACE DESIGN LABORATORY
子说设计团队
关于ZISHUO SPACE DESIGN LABORATORY
ZISHUO SPACE DESIGN LABORATORY,由设计师朱清林创立,以中国传统文化为土壤、立足当下,致力于生活观念的启迪,以及对未来的洞察与尝试,形成室内、软装于一体的专业体系,专注为空间赋予独一价值。不只是呈现独到设计,更是结合品牌、商业、人群及定位需求,提供全考量、定制化的解决方案。
客服
消息
收藏
下载
最近























