查看完整案例

收藏

下载
美盛教育港湾 | 98m²
2室2厅1厨1卫
查看全房完工效果
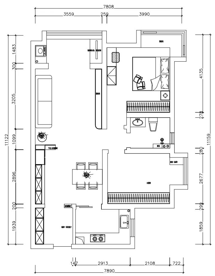
▌户型
户型图、家居布局图
House type modification
▲
原始结构图
案例基本情况:
所在小区:
美盛教育港湾
建筑面积:98m²
户 型:2室2厅1厨1卫
造 价:10万
案例说明:
这是位
于
【金水区
#美盛教育港湾
】小区
的
一套完工案例。全房
#98平
,2室2厅1厨1卫,整体装修风格为
#轻法式
。
1、
多使用
弧形元素,如
入户拱门、客厅弧形窗等,
强化法式浪漫辨识度。
2、以
奶油白、暖木色打底,搭配装饰画点缀,金色五金提精致,整体温润松弛。
3、
去客厅化设计,用储物柜代替电视背景墙,增加储物能力
。
以轻法式风格为核心,柔白、暖木构建温润基底,弧形元素贯穿全空间,定制柜体实现全场景收纳,壁画装饰与金色五金点睛,光影交融,营造浪漫且实用的治愈居所。
▌入户
兼顾实用与美学:定制鞋柜尽显便捷,法式拱门、纯白配色,增添法式浪漫
entrance corridor design
以白色为主色调,搭配
多彩花纹的地毯,装饰画点缀空间,
氛围
柔和且浪漫。
嵌入式鞋柜,最大化利用空间。上层封闭柜,用于收纳;开放格可放置钥匙、包包等小物件。
侧面设置镜子,便于出门整理易容,利用镜子的反射,扩大空间感。
使用拱形门洞,法式风格的经典符号,
弱化空间边界感,增添浪漫层次。
▌客厅
去客厅化,储物柜代替电视墙;采用边吊,美化空间;融入法式元素,营造浪漫氛围
Living Room area design
以低饱和主调为主,色彩纯粹和谐,采用
奶油白 浅木色等,整体
氛围
温润法式。
采用有主灯+边吊的形式,隐藏空调管道,美化顶面的空间。
全屋木地砖通铺,鱼骨拼的造型,延伸空间感,更显精致有品位。
背景墙无复杂造型,简约大方,墙面悬挂小清新壁画,增加艺术气息。
铺设大面积地毯,与房间整体色调协调,保护地面、减少噪音,提升居住舒适。
去除传统电视墙,设计一整面储物柜,增加客厅的收纳。
中间开放格,摆放书籍;侧面玻璃柜,弱化厚重感,便于放置收藏品。
▌
厨房
整体动线流畅,收纳空间充足,采用浅色调主导,与整体风格契合,扩大空间感
Dining room and kitchen space
采用经典 L 型设计,洗- 切- 炒形成三角动线,契合烹饪流程,提高整体效率。
上下柜满墙定制,吊柜到顶杜绝积灰,橱柜无把手美观大方,实现最大化收纳。
浅米色橱柜、吊柜,搭配白色台面,营造柔和整洁感。
▌
餐厅
椭圆餐桌搭配餐椅;
定制
餐边柜,整合收纳;奶油色调与拱形,呼应法式
元素
Dining room an dkitchen space
延续客厅风格,浅木色地面搭配奶油白墙面,
串联起浪漫法式氛围,细腻灵动 。
三头吊灯垂直覆盖,球形灯罩柔化光线,用餐氛围温馨和谐。
筒灯补充空间基础照明,营造出小山丘效果,墙面更显精致。
冰箱内嵌设计,节省整体空间,与餐边柜同色系,视觉观感更美观。
餐边柜为奶白柜体,提供充足储物,让空间更整洁。
餐边柜功能齐全,
上方为拱形玻璃,突出法式风格,中间开放格,做水吧台使用。
▌
主卧
主卧风格统一,自然光线充足,满足化妆、储物的需求,打造松弛治愈的卧室
The bedrooms of different family members
以奶油白为底色,浅木色地板增添温馨,
金色拉升提升精致,勾勒浪漫休憩氛围。
顶面简约有层次感,采用有主灯+石膏板叠级线,造价低且更实用。
床紧邻 L 型飘窗,最大化引入自然光,飘窗下方设收纳柜,榨干空间。
衣柜
一门到顶
设计,弧形元素弱化厚重感,金色拉手提升精致度。
床尾的位置,设置斗柜+书桌,满足储物与化妆需求,实用性更强。
▌
衣帽间
满墙定制柜榨干空间,提供充足的储物,延续法式风格,空间通透且开阔
updating the walk-in closet design
做满墙衣柜,收纳容量最大化,衣柜功能分区,划分挂衣区,叠放区等,拿取更方便。
柜门采用哑光白柜门,搭配金色拉手,呼应法式精致感,也方便开关。
▌
卫生间
整体布局合理,满足洗漱 如厕等需求,采用撞色设计,色彩清新自然
Toilet decoration
浴室柜采用圆弧玻璃门,法式元素拉满,可放置洗浴用品,实现收纳作用。
墙面采用撞色设计,米黄与蓝色碰撞,打破单调,呼应法式浪漫。
蓝白几何花纹砖,与墙面浅蓝形成色调联动,强化视觉统一。
项目信息
项目名
称 |
美盛教育港湾
项目地点 | 管城区
设计面积 | 98平
造设计价 | 10万
设计风格 | 轻法式
设计主创 |
王瑞英
王瑞英
河南超凡装饰首席设计师 从业于室内设计12年。擅长风格:现代、轻奢、简约、奶油原木风、北欧、新中式、美式……
代表作品:融创城珑府、蓝堡湾、卧龙城、阳光城檀悦、碧源月湖、绿都澜湾、璀璨熙湖、中博城尚林苑、万华城、中原宸院、金水府、金水湾、永威五月花城、九鼎公馆……
设计理念:我们深信家中之物都承载着,每个人的归属感与各个时期的回忆,我们需要从物理到生理上,满足情感、情绪审美的各个需求。
客服
消息
收藏
下载
最近








































