查看完整案例

收藏

下载
log style
和雅
——
January
20
25
Design ©
美宅美生设计
Copyright ©MZMS DESIGN
提供全面的设计体验,是我们的终身目标
01.
项目信息 / Introduction
项目地址
| 华发中央首府
项目面积 | 168㎡
设计风格 | 原木风格
设计类型 | 毛坯装修
设计机构 | 美宅·美生设计
咨询入口丨
美宅美生咨询预约入口
——
Project add
res
s:huafazhongyangshoufu
Project area:168㎡
Design s
ty
le:
log style
Design type:
Rough decoration
Design director:MZMS DESIGN
02.
屋主情况 / House owner
极简邂逅原木,空间气韵浑然天成。家非千人一面的复刻,而是匠心独运的精琢。
设计以克制的笔触、精准的分寸,借简约色调与温润材质,铸就清雅不失格调的质感居所。细节处见真章,整体架构起筋骨,踏入其间,便觉清简柔和中自有一番灵魂气度。
03.
功能布局 / Functional layout
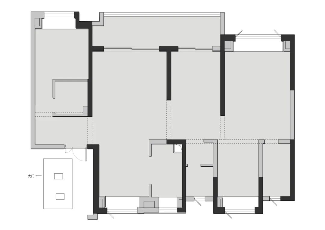
原始平面图△
平面布置图△
设计要点
:
1. 于入户左手边靠墙定制收纳柜,满足出入户储物需求,同时于大门正对面定制收纳及端景一体,兼具仪式感与实际使用功能;
2. 将厨房打开与餐厅合并一体打造开放式餐厨空间,定制餐岛隔断满足用餐及功能台需求,兼顾实用与美观性;
3. 主卧与主卫之间做结构调整,干区置于连廊衔接,打开卧室内部视野,同时方便定制储物,满足收纳需求。
04.
视觉设计
/ Visual design
格栅板以有序之姿排列,似是时光划过的整齐轨迹,线条简洁却蕴含无尽张力,为空间勾勒出独特的节奏感。其木质纹理,带着自然的质朴与温暖,在光影的交织中,营造出静谧而深邃的氛围。
大理石以其天然的纹路与高贵的质感成为焦点,
灯光设计则是此间点睛之笔。暖黄色的光线从格栅间柔和溢出,光影在格栅与大理石之间跳跃、流转,营造出层次丰富而又和谐统一的视觉效果。
原木元素在空间中温润流淌,从天花板横梁到家具的边角,质朴的纹理诉说着自然的故事,带来温暖平和的气息。灯带如隐匿的星光,在天花板与墙面间柔和晕染,光影交织,营造出温馨而富有层次感的氛围,似在无声地诉说着家的柔情。
沙发墙以留白之笔,书写简约哲学。大面积空白并非空洞,而是给予空间呼吸的自由,让思绪在此处得以放空漫游。局部的大理石镶嵌打破单调,以其天然的纹理,为墙面注入自然的韵律与高雅的气质。
客厅丨
实景
vs
效果图:客餐厅一体化布置,视野延长空间开阔大气。
空间没有繁杂的装饰,没有冗余的元素,一切皆以简洁示人。
电视墙
米白色做底,纯净温和,为空间奠定了宁静的基调。抽缝设计以细腻线条打破墙面的平淡,增添了几分灵动与秩序感,仿佛是时光刻下的精致纹路。
原木的元素在周边悄然点缀,与米白相互映衬,一暖一柔,营造出和谐而舒适的氛围。灯光轻洒,在墙面上留下柔和的光影,似在勾勒着生活的轮廓。
客厅丨
实景
vs
效果图:地砖通铺吊顶相连,视野不受阻碍延展空间界限。
客餐厅之间无明显的隔断,空间在流动中达成一种微妙的平衡。中央空调吊顶巧妙地过渡走廊,线条简洁流畅,似无形纽带将各个区域自然衔接,又以隐藏之姿为空间带来舒适温度。
客厅之中,原木的温润与留白的墙面相映成趣,营造出宁静悠远的氛围。沙发慵懒而舒适,似在轻声诉说着家的故事。阳光透过窗户,洒在地面、墙面,光影斑驳,为空间增添了几分灵动与诗意。
米白沙发饱满柔软,似云朵般轻盈地落在空间一隅。其上抱枕花纹与纯色交织,为这份柔和添了几分精致。大理石茶几纹理自然天成,
黑色的伊姆斯躺椅以经典姿态静立一旁,仿佛在等待一场与阳光的邂逅。
窗边的绿植枝叶舒展,带着生命力,在微风中轻轻摇曳,
阳光透过纱帘,温柔地洒进室内,在墙面、地面留下斑驳的光影。原木格栅与天花板横梁以质朴的纹理,诉说着自然的故事,让空间盈满温暖的气息。
留白的墙面区域,以纯净之态给予视觉缓冲的空间,似一幅未完成的作品,留存着无限遐想。灯带隐匿于墙顶交界,洒下柔和光晕,勾勒出墙面的轮廓,营造出温馨而富有层次感的氛围。
以简驭繁,用材质的碰撞、光影的交织,诠释着极简原木风的独特魅力,让每一次凝视,都能感受到设计背后的细腻心思与生活的本真之美。
餐厨
开放式布局打破传统界限,让空间在视觉上无限延伸,尽显通透大气之美。原木的温润与石材的冷峻在此交融,橱柜以自然的木纹诉说着质朴的故事,而餐桌的大理石台面,则以其独特的纹理,为空间增添了一抹优雅与灵动。
一体设计
不仅节省空间,更让生活的动线更加流畅。它是功能与美学的完美结合,以简洁姿态诠释现代生活的便捷与惬意,
烹饪与用餐不再是孤立的活动,而是生活场景的自然延续。家人在厨房忙碌的身影,与在餐厅等待的期待目光,交织成一幅温暖的画面。
餐岛一体隔断作为分界线,巧妙划分空间,又保持着整体的通透与连贯,以干练简洁之姿,书写功能与美学的交融。亚克力
桌腿如虚化的笔触,让空间更显轻盈与自由。大理石台面以其天然的纹理,成为时光的印记,记录着生活的点滴。
原木餐边,带着自然的质朴与温暖静静伫立。其上水吧设计,是生活仪式感的巧妙承载。咖啡机的低鸣,似在奏响生活的乐章,为每一个平凡的日子注入精致的韵律。
打破传统的布局定式,将干区从私密的卫浴空间中解放,置于走廊之畔。洁白的柜体与大理石台面,以纯净之态成为走廊一隅的视觉焦点,静静诉说简约的美学哲学。
外置干区不仅是功能的延伸,更是空间的巧妙过渡。让走廊不再单调乏味,而是成为连接各个区域的灵动纽带。生活的场景在此自然切换,从公共区域的喧嚣到私密空间的宁静,干区成为两者之间的缓冲。
独
立超薄书桌,以简洁流畅的线条,划出一方专注的天地。
书柜靠窗而立,仿佛在与阳光私语。满墙的储物空间,是知识的宝库,整齐排列的书籍与物品,蕴含着无尽的智慧与回忆。
窗户似天然画框,将外界的光影变幻框入其中。百叶窗轻柔地调节着光线的强弱,光影在书页、桌面与地板上跳跃,描摹一方静谧的阅读空间。
极
简
墙面因抽缝线条而增添层次与韵律,极简线条简约却不失精致,以无声的语言诉说着设计的巧思。打破了墙面的单调,赋予空间一种动态的平衡与秩序感。
柔和灯光下,浅棕色的床头与粉色的床品相互映衬,营造出温馨浪漫的氛围。床头的粉色台灯,如一颗温润的明珠,散发着柔和光晕,为整个空间增添了一抹静谧清浅的色彩。
墙面似一幅留白的画卷,细腻的纹理带着自然的质朴,在光影的交织中诉说着岁月的宁静。窗边的纱帘如轻柔的梦,半遮半掩间让阳光温柔地倾洒,为空间披上一层暖黄的薄纱。
深棕色木地板,以沉稳的姿态承载着一切,床是这方空间的灵魂所在,素色的床品简洁而舒适,仿佛能吸纳所有的疲惫。
床头一盏吊灯散发柔和的光芒,在寂静的夜里为梦境点亮一抹温馨。
深棕的木质床头背景沉稳温润,与浅色的墙面形成鲜明对比,营造出温馨宁静的氛围,
床头柜与衣柜一体化设计,悬浮造型打破传统的厚重感,赋予空间以通透与灵动。
色彩斑斓的抽象画,是空间中的一抹亮色,如同跳跃的音符,打破了宁静中的一丝沉闷,为卧室注入了艺术的活力,
阳光透过纱帘,洒在悬浮柜体上,光影交错间,空间更添几分诗意。一体化的设计不仅节省了空间,更让卧室呈现出和谐统一的美感。
窗是空间的灵魂之眼,桌柜依窗而筑,似从光线中生长而出。洁白柜体与桌面,纯净而简约,与窗外的自然光影交融,营造出通透明亮的氛围。
墙上悬挂的装饰画以古朴图案,为空间增添了一抹历史的厚重与文化的韵味。深棕色的木地板,沉稳而内敛,与浅色的桌柜形成对比,奠定了空间的温暖基调。
墙面与台面,以大理石的纹理铺陈出自然的诗意。
不规则镜面打破常规的束缚,为整个区域增添了一份灵动与变幻。
木质凳子带着自然的温度,与冷峻的石材形成对比,刚与柔在此达成完美的平衡。干区与梳妆相结合伫立于走廊,实现干湿分离的同时,也兼顾视觉通透与设计美感。
05.
对比图
/ Contrast
我们潜心为每个屋主量身定制私人居所,精工细作、精雕细琢,所见即所得,让屋主收获理想中的家!
↑客厅 ・效果图VS实景图
↑客厅 ・效果图VS实景图
↑卧室 ・ 效果图VS实景图
-The End-
美宅、美生
完美舒适的家,惬意自如的生活
我们的服务态度和设计宗旨
以及对待家的美好愿景从未改变过!
美宅美生咨询预约入口
荣誉奖项| Honorary Award
·
2025年第十四届国际空间设计大奖艾特奖
·
2025年第十二届米兰设计周筑巢奖
· 2024年设计「旅行家」入选AD杂志出版
·
2023-2024年度国际环艺创新设计作品大赛金奖
· 2023年度美国缪斯室内空间设计金奖
· 2020-2021年度国际环艺创新设计作品大赛(华鼎奖)金奖
· 2020年度中国室内设计杰出青年设计师作品奖
· 2019年好好住营造家奖年度最佳设计机构
· 2019广州设计周 40UNDER40中国(湖北)设计杰出青年奖
· 2019第七届ID+G金创意奖国际空间设计大赛年度TOP10最具品牌价值设计机构奖
· 2019第八届中国国际空间设计大赛 (中国建筑装饰设计奖)
· 2019红棉室内设计奖
· 2019中国青年私宅设计师大赛季军
· 2019软装设计大赛创意奖
· 2018年度得意家专业设计引领品牌
· 2018法国INNODESIGN PRIZE国际创新设计大奖优秀奖
· 2018 FX International Interior Design Awards 2018
· 2018-2019中国设计品牌榜年度最具影响力设计机构
· 2017达人室内设计网全国优秀设计公司
· 2017FAUS中国区认证设计师创意奖
· 2017第七届“筑巢奖”优秀作品
· 2017亚太空间设计大赛住宅空间类金奖
· 2016得意生活最受网友欢迎装饰/设计品牌
· 2016年度达人设计总评榜全国百强
· 2015iColor未来之星青年设计师大赛最佳色彩设计奖
· 2015PPG室内设计师大赛“创意非凡”组入围奖
· 2015年青年文化创意奖
· 2014“和记黄埔地产” 世纪·江尚达人设计挑战赛入围奖
· 2012年精英设计师团队
· 2008亚太地区设计大赛室内装饰类别设计金奖
往期内容丨Past works
、
- 设计&生活 -
MZMS DESIGN
您的量身定制设计专家
地址:湖北省武汉市
绿地铭创大厦7楼708室
客服
消息
收藏
下载
最近























































