查看完整案例

收藏

下载
Light luxury style
奢梦
——
January
20
25
Design ©
美宅美生设计
Copyright ©MZMS DESIGN
提供全面的设计体验,是我们的终身目标
01.
项目信息 / Introduction
项目地址
| 旭辉铂悦园著
项目面积 | 180㎡
设计风格 | 轻奢风格
设计类型 | 精装改造
设计机构 | 美宅·美生设计
咨询入口丨
美宅美生咨询预约入口
——
Project add
res
s:xuhuiboyueyuanzhu
Project area:180㎡
Design s
ty
le:
Light luxury style
Design type:Hardcover renovation
Design director:MZMS DESIGN
02.
屋主情况 / House owner
精致的石材、流畅的纹理……材质雕琢间被赋予简奢的韵味。以此延展,创造出奢而不糜、简而生雅的品质居住空间。
设计将审美融于生活,与家具、器物、材质的选择结合,承载空间情绪,以邂逅一场以美学为叙事注脚的精神盛宴。融合精致与简约,低调与奢华,在追求品质与热爱之时,也注重生活之中的陪伴与体验。
03.
功能布局 / Functional layout
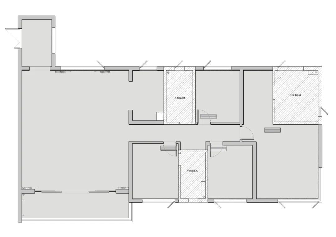
原始平面图△
平面布置图△
设计要点
:
1. 于门厅定制玄关柜及端景造型,兼顾入户仪式感与实际使用需求;
2. 客餐厅一体化布置,让视野自然流动于空间之内,打造一方敞阔居住环境;
3. 于走廊定制嵌入式储物柜,与墙面平齐,充分利用空间以提升使用舒适性。
04.
视觉设计
/ Visual design
材质运用精妙,以天然大理石与木饰面为主。大理石地砖沉稳内敛,映射出柔和光线,增添空间通透感;木饰面纹理细腻,带着自然的温度,为门厅注入温和气质。
端景设计堪称点睛之笔。一侧墙面以独特花纹的大理石铺就,似一幅天然艺术画作,在灯光映照下散发着低调的奢华;另一侧,曲线造型的装饰与木饰面相融,线条流畅优美,打破空间的单调,增添灵动之感。
客厅丨
实景
vs
效果图:客餐厅一体通透,采光流畅清简奢雅。
空间整体气质简而不凡,奢而不华。开放的布局让空间自由呼吸,精致的材质彰显品质,充足的采光焕活生机,圆形灯带增添艺术氛围,灵动清雅。
在材质选择上尽显精致考究,大理石地面纹理自然流畅,散发着与生俱来的高贵气质;沙发采用柔软的绒质面料,触感舒适,搭配金属底座,增添精致感;背景墙的大理石材质与地面相呼应,整体和谐统一。
客厅丨
实景
vs
效果图:环形吊顶区分界限,通透与秩序感兼备。
电视墙设计独具匠心,成为空间视觉焦点。以大理石铺就,纹理如天然水墨画般肆意舒展,自带奢华质感。简洁线条勾勒出大气轮廓,嵌入式电视与之完美融合,既满足功能需求,又增添了艺术氛围。
收纳柜设计巧妙,金属边框搭配玻璃材质,在灯光的映照下,熠熠生辉,可陈列珍藏摆件,为空间增添个性与品味。
在开放的空间中,电视墙的奢华与阳台收纳柜的简约实用相互映衬,将简奢风格演绎得淋漓尽致。
空间采光设计极为出色,大面积的落地窗引入充足的自然光线,让空间明亮开阔。白色纱帘轻盈飘逸,在保证隐私的同时柔化光线,营造出温馨浪漫的居家氛围。
吊顶的圆形灯带是空间的一大亮点,柔和的光线沿着圆形轨迹缓缓铺展,为客厅增添了一份灵动与优雅,同时也在视觉上起到了延伸空间的作用,金属落地灯造型独特,将功能需求与装饰结合,更显矜贵雅致。
背景墙一侧巧妙设计的弧形凹陷,以金属镶边勾勒,打破传统背景墙的呆板,增添灵动与精致,成为视觉焦点,为空间注入艺术活力。
家具的选择与摆放亦尽显巧思,造型独特的黑色单椅,线条流畅且富有雕塑感,宛如一件艺术品,与背景墙的优雅相呼应。不规则形状的金属茶几,表面光滑如镜,反射着周围的光影,增添空间的时尚氛围。
客厅丨
实景
vs
效果图:客餐厅一体化地砖通铺,延展视野强调整体感。
灰色大理石地砖自带高级质感,纹理自然细腻,如同水墨画般在地面晕染开来,为整个空间奠定了沉稳大气的基调,客餐厅
通铺让空间在视觉上得到了无限延展。
吊顶安装水波纹玻璃吊灯,如静谧的湖面泛起涟漪,光影氤氲为空间增添一丝梦幻与浪漫。无主灯设计,以隐藏式灯带与筒灯提供柔和而均匀的光线,让空间更显温馨与通透。
餐
空间布局开阔流畅,圆形吊顶设计独具匠心,水波纹玻璃装饰其间,在灯光映照下光影交错,为用餐氛围增添一份灵动梦幻。搭配弧形吊灯,线条简约优美,金属灯杆与灯罩的组合,刚柔并济,尽显现代时尚感。
餐桌选用大理石材质,纹理自然大气,如天然的艺术画卷在桌面铺展。其温润的质感与冷冽的色泽,为用餐环境增添一份高贵典雅。搭配的餐椅,蓝白相间的色彩搭配清新而亮眼,独特的扇形靠背设计,既符合人体工学,又成为空间中的视觉亮点,为餐厅注入一丝活泼与艺术气息。
餐厅一侧,吧台与收纳柜一体化设计,实用且美观。吧台表面同样采用大理石材质,与餐桌相呼应,整体感十足。收纳柜的金属边框与玻璃柜门,在灯光的烘托下,散发着精致的光芒,可展示美酒与精致器皿,增添生活情趣。
背景墙的设计简洁而不失格调,以素色为主,搭配部分木质与金属元素,营造出温馨而奢华的氛围。黑色的百叶窗,既能调节光线,又为空间增添了一份神秘与沉稳。
卧室丨
实景
vs
效果图:石材与是米面组合,嵌入水波纹,将简奢融入睡眠空间。
墙面设计独具巧思,深色木饰面铺陈沉稳基调,纹理自然细腻,一侧嵌入大理石墙面,浅绿纹理如山水画卷般晕染开来,与木饰面形成材质与色彩的碰撞,水波纹玻璃嵌入其间,通透之余增添空间层次感与艺术氛围。
灯光设计堪称精妙,天花板采用隐藏式灯带,光线柔和均匀,勾勒出空间的轮廓,营造出温馨的氛围。床头垂落的一盏黑色吊灯,简约的造型成为空间中的点睛之笔,提供局部照明的同时,也为卧室增添了一份时尚感。
卧室之中,整体色调沉稳雅致。大面积浅色墙面营造出宁静氛围,天花板隐藏式灯带散发出柔和光线,勾勒出空间的轮廓,增添温馨之感。一侧垂落的黑色吊灯,造型别致,为空间增添一丝灵动与时尚。飘窗处白色纱帘轻舞,阳光透过纱帘洒入,让室内充满自然的光影变化。
衣帽间与卧室相连,设计简洁而实用。通顶的衣柜以浅色为主,黑色线条勾勒边框,形成鲜明的视觉对比。部分柜门采用玻璃材质,内部衣物隐约可见,增添些许神秘与精致感。柜内灯光的设置,不仅方便衣物选取,更让整个衣帽间散发着优雅的气息。
05.
对比图
/ Contrast
我们潜心为每个屋主量身定制私人居所,精工细作、精雕细琢,所见即所得,让屋主收获理想中的家!
↑玄关 ・ 效果图VS实景图
↑客厅 ・效果图VS实景图
↑客厅 ・效果图VS实景图
↑客厅 ・ 效果图VS实景图
↑客餐厅 ・ 效果图VS实景图
↑餐厅 ・ 效果图VS实景图
↑卧室 ・ 效果图VS实景图
-The End-
美宅、美生
完美舒适的家,惬意自如的生活
我们的服务态度和设计宗旨
以及对待家的美好愿景从未改变过!
美宅美生咨询预约入口
荣誉奖项| Honorary Award
·
2025年第十四届国际空间设计大奖艾特奖
·
2025年第十二届米兰设计周筑巢奖
· 2024年设计「旅行家」入选AD杂志出版
·
2023-2024年度国际环艺创新设计作品大赛金奖
· 2023年度美国缪斯室内空间设计金奖
· 2020-2021年度国际环艺创新设计作品大赛(华鼎奖)金奖
· 2020年度中国室内设计杰出青年设计师作品奖
· 2019年好好住营造家奖年度最佳设计机构
· 2019广州设计周 40UNDER40中国(湖北)设计杰出青年奖
· 2019第七届ID+G金创意奖国际空间设计大赛年度TOP10最具品牌价值设计机构奖
· 2019第八届中国国际空间设计大赛 (中国建筑装饰设计奖)
· 2019红棉室内设计奖
· 2019中国青年私宅设计师大赛季军
· 2019软装设计大赛创意奖
· 2018年度得意家专业设计引领品牌
· 2018法国INNODESIGN PRIZE国际创新设计大奖优秀奖
· 2018 FX International Interior Design Awards 2018
· 2018-2019中国设计品牌榜年度最具影响力设计机构
· 2017达人室内设计网全国优秀设计公司
· 2017FAUS中国区认证设计师创意奖
· 2017第七届“筑巢奖”优秀作品
· 2017亚太空间设计大赛住宅空间类金奖
· 2016得意生活最受网友欢迎装饰/设计品牌
· 2016年度达人设计总评榜全国百强
· 2015iColor未来之星青年设计师大赛最佳色彩设计奖
· 2015PPG室内设计师大赛“创意非凡”组入围奖
· 2015年青年文化创意奖
· 2014“和记黄埔地产” 世纪·江尚达人设计挑战赛入围奖
· 2012年精英设计师团队
· 2008亚太地区设计大赛室内装饰类别设计金奖
往期内容丨Past works
、
- 设计&生活 -
MZMS DESIGN
您的量身定制设计专家
地址:湖北省武汉市
绿地铭创大厦7楼708室
客服
消息
收藏
下载
最近

















































