查看完整案例

收藏

下载
△ 一棵像白惠泽
的树
©孙海霆
△ 村子里的烤烟房
©孙海霆
△ 从房间穿过
©孙海霆
△
日晷针
©孙海霆
2016
年夏天,工作室的第一个实习生
Karen
兴奋
地
下班,准备去参加一场
名为
“
夜走明十三陵
”
的活动,从凌晨到日出,
13
个人一起徒步十三座皇陵,轮流分享墓主的前世。这是我们第一次听说
someet——
一个极具开拓精神的青年自发兴趣活动平
台,精专
十
人左右
的深度交流活动,让都市年轻人看见更多探索、连接与协作的生活可能。
2018
年,我们见到了
someet
的创始人白惠泽
(小白)
,在北京长城脚下,于我们设计的
“
擦石匠
”96号院
共度了一天一夜,还和几位不同领域的好朋友一起
——
这很
someet
。
2020
年疫情期间,小白关闭公司,从北京搬到云南省大理州剑川县沙溪古镇,想以生活本身为目的、安一个家。
△
项目视频
©
刘国威
因为工作原因,
2015
年和
2016
年,我们
(王岩石和白河)
分头在云南不同地点的工地住过几个月,对云南的气候和风土有一定的体会。
2020
年,在主人的人生路口,建筑师带着更多
“
氙
”
的潜意识,再次进入彩云之南。在沙溪古镇一个小院子里住下来的小白,一个月后,在附近的自然村里寻得一个地势较高的老院子,门牌是东南村
8
号,宅基地租期
20
年,小白委托我们设计一座自宅宅院。几乎注定的,我们决定以这样的共识作为项目的开端
:
认识宇宙先于认识房子,认识地平线先于认识安家之处。
气候、生机
沙溪是云南大理州剑川县一众群山
拥簇下的小坝子
(平地)
。黑惠江从高原的褶皱
间
,由北往南从坝子中央缓缓穿过。
2100
米海拔的温凉,丰沛富裕的阳光,清澈透明的空气,使沙溪在气候层面成为适宜长居的地理场所。虽然在整一年里温差不大,但四季景观分明,各类物种在这无扰的富饶之地,生命
皆
恣意繁荣。
对于人来说,这片坝子的微气候极其丰富,从艳阳高照、层云叠嶂、阵雨淅淅到再次转晴,常常在一转眼的功夫就完成流转轮回。你以为的阴影,不是阴天,
只是一朵云的影子。诸如此类的风云变幻,是触手可及的梦幻。
△
沙溪坝子鸟瞰
©
夏至
建筑遗产
沙溪相对南边的大理来说,是一个小山小水的小坝子。白族人能走路就能跳舞,会说话就会唱歌,农忙务农,闲时务业,四处安闲又有生气。人们安居乐业至今有一千多年的历史,目之所及,整个沙溪坝子
有
十几个自然村庄,也生长出了丰富的建筑遗产。
沙溪曾是茶马古道上的
一个
交通枢纽、地方商贸中心和食盐集散地,集市繁荣。坝子中心先建起兴教寺,市集也聚集于此,后来在寺对面新建一座古戏台加魁阁
(供奉魁星、祈福文运昌盛、保佑金榜题名的场所,始建于
1796—1820
年间)
,与商铺共同围合成为四方街广场,各种
节日活动就此展开。盛大的火把节,人们纵情高歌、人人跳舞,族人在魁阁戏台上通过演戏娱神,并非现代意义上的审美活动。所有人都处在有愿力的场所之中,
祈福风雨和谐、平安、礼赞生存与万物生机。
△
沙溪坝子的自然村与通神设施
©xian
氙建筑
△
主人从
8
号家宅外出的日常活动
©xian
氙建筑
△
古镇中心广场活动
©铃铃
每到傍晚,小白都在古镇中心广场上和朋友们踢毽子。此刻,我们大家真正进入的不再是建筑学的知识传统,而是一种连续的时空情境:
我们置身于历史之中,又在此刻的日常生活中,看到
“
我们
”
来时的路。这给予我们一种信念
——
与天地同在的
日常
生活和建筑场所,至今犹在。
“
我想有一个可以恣意生活的房子
能闭上眼睛即兴跳舞
能摆放几百种乐器和朋友们一起即兴
能藏一万本书
能和十几个好友一起做饭
能处在‘
在’
的状态里喝茶
露营半个月回来能跳进水里看着星星泡澡
”
我们理解小白的恣意,不仅仅是功能房间的排列
,
而是可以通过建筑的姿态,对个体独处、群体的欢乐,对生命律动、不同日常状态进行敏锐回应。人是
鲜活
的
生命体,对应着最灵敏的关系尚待组织。
全部拆除
成为空地之前
东南村
8
号位于古镇中心广场东南方向的
两
公里位置,原本是一座四合三天井的白族院子。房东老奶奶住正房,正房低矮的二层阁楼里供奉着祖先,天井
用于
做饭。在县城当老师、放假才回来的儿子住南房。西房和北方用于豢养牲口。年久失修,所有的木结构已严重变形。
小白最初也曾想复刻一个地地道道的白族民居。我们客观考虑,如果想满足主人生活方式的诸多需求,一是传统的木结构木楼板体系很难隔声,二是很难实现跨度自如的活动空间。于是,大家很早就确定要盖一个现代构造的住宅。
△
老宅原貌,后来全部拆除
©王岩石
△
东南村鸟瞰和建成后的
8
号
©
刘国威
四合布局
传统的四合五天井的布局有诸多的好处。把中间的大院子空出来,
将
四边的房间推到宅基地的边界处,最大程度减少了各个房间私密性的干扰,也让整体二层的建筑尽可能的退后
,
不至于非常压抑,让向外部观看坝子的山口和华丛山有足够深的缓冲前景。
五个天井的设置让房间的空气和光线最大程度的流动,是古人智慧的结晶。最重要的是,沙溪冬季的室内非常需要阳光的照射,空出的院子是对阳光最好的迎接。四合的布局
还可以
给人一种安宁稳定的空间感受。我们最终的平面布局也采用了传统的东南西北四个区的布局方式。
△
天井合院:原貌、过程、最终平面
©xian
氙建筑
身体信号
我们第一次在广场上喝着咖啡,便迷上了一群召唤天地、随时起飞的神鸟
——
魁阁戏台
。
其
屋檐灵动、夸张翘起,与“
人神以合”
的公共活动交相辉映,平日看确实不同寻常。哪怕在离开沙溪之后,它也是萦绕在我们心中、再也挥之不去的
“
金阁
”
。好想做一个可以和古戏台对话的现代房子。
整个大理州地区都是日照充足的高原坝子,在阳光下久待受不了,在阴影里便凉爽好在
得
很。做一个像鸟或
其他
生物一样的屋檐既是气候所需,也是潜在需求的显化。因此我们把一层的屋檐
(二层平台、二层走廊扶手、主卧阳台扶手)
二层的屋檐
(屋顶平台的女儿墙)
都做了三维曲面的设计。像鸟一样停在屋子上面
,
为
人提供庇护和阴影。也终于
满足
了想和寺登街魁阁带戏台对话的
心愿
。
△
寺登街广场上的魁阁戏台
©
梁嘉健
△
东南村
8
号建成后鸟瞰
©
刘国威
东区(正房客厅和主卧)
+ 西区(瑜伽茶室和客房)
面朝黑惠江的是正房,即地势最高的东区
。
楼上的主人套房及屋顶露台,正对着东南村的魁阁,楼下客厅
(即兴音乐区)
向院子延伸出舞台,所有的钢框落地门窗都可以平移或折叠打开
,
没有地轨,室内外边界更加模糊,支持畅快活动。
沙溪秋冬的夜晚偏凉,壁炉是大理地区非常实用的温暖设施。为了营造篝火的体感,我们在东区一层客厅沙发影音区、乐器区和舞台的交汇处,设计了三面观火的开放壁炉,让晚上的聚会有了野外露营的感受。同时
,
结合混凝土结构柱直通屋顶
,
插入天空
,
直接与云天和华丛山对话,成为了陪伴天地的纪念碑。
△
正房轴线
©xian
氙
建筑
△
从西区露台看向正房
©
刘国威
△
客厅舞台
©
刘国威
精细调整各区高差关系,使东区的视野能够尽量穿过西区望向远方。西区茶室
、
瑜伽室低于客厅舞台地面
1.2
米
,层高也尽量压低,使二层眺望平台的所有邻近区域,经过几步台阶即可到达,
直望
坝子群山山口。
从院子里,为了得到向外瞭望的丰富视角,把西区和北区的二层独立客房体量控制得比较短,形态上也想和远山、华丽的天光云彩之间,产生特别的张力。每个区每一层的地面标高、房间层高,各不相同、环环相扣,总是让人
在
体感上不由自主
地
移动
,
被不停切换的视野所牵引。
△
从客厅看向西区
©
刘国威
△
从瑜伽室茶室看向客厅
©
刘国威
△
瑜伽室茶室前的鱼池
©
刘国威
△
一层茶室和二层客房
©
刘国威
△
瑜伽茶室前水池
©
刘国威
△
从西区露台看向正房通高柱体
©
刘国威
△
从南区露台看向主卧
©
刘国威
△
篝火壁炉及舞台
©
刘国威
向左滑动>>>
△
壁炉及客厅、主卧工作台
©
刘国威
从客厅有隐蔽的独立楼梯上二层主卧
。
主卧外的露台视野开阔,若在此处就着酒凭歌起舞,容易迷醉;无论是闭着眼睛
或是身处
月色下,
我们
希望不是先看到
“边界”,而是感受“边界”。
△
从南区露台看向主卧
©
刘国威
△
从南区露台看向正房和书塔顶
©
刘国威
向左滑动
>>>
△
正房露台与烟囱
©
刘国威
△
正房屋檐与烟囱、落日装置
©
刘国威
在西侧女儿墙曲面的最低处、面朝落日的方向,有一组轻盈的不锈钢线性装置,显现太阳的最后一抹高光以朝魁阁。烟囱口的长明灯、
“
船板
”
上的烟棕色碎石,诸如此类的细节,一起迎接着或壮烈或隐秘的云彩、烟霞、日出和日落。
△
从正房露台看本村魁星阁
©
夏至
与自然连通
日晷塔、书塔
我们赞叹四季如春的阳光和空气,
邀请风、雨、阴影等美妙的自然要素来共同生活,我们把所有精力都投入到时间、空间、气韵、情感等各种灵敏关系的组织之中。
从建筑、室内到心
灵陈设,从构架关系、
尺度、形态、材质和不同光线的化学反应,
让人深入体验到更多层面的支持、与更大的存在共处。
自然成为日常的尺度。
△
塔、公共空间与卧室布局图
©xian
氙建筑
△
日
晷光针和影针变化
©xian
氙建筑
△
日
晷光针变化
©白河
我们想把上空的存在,包括太阳和月亮,通过建筑强烈
地
显影出来。
沙溪接近北回归线
,
夏季较高的太阳会将小屋面的影子落在弧形墙上,于是屋面的缝隙形成
“
光针
”;
冬季太阳高度角低,垂直于地面的柱体
在墙上投下更多
“
影针
”
。无论是云的阴影变换
,
还是雨的流落,对室内来说都是精彩的剧目。夜晚,它又成为月晷塔。
光针与影针的刻度,不息不止。
△
日晷针
©
夏至
△
日晷塔
©
夏至
△
日晷针与水池
©
夏至
△
从瑜伽室看日晷塔
©
夏至
△
从日晷塔看瑜伽室
©
刘国威
日晷塔与同样灵敏的日常接壤。瑜伽室茶室的天花净高被压低到
2.25
米
,使身体尽量席地、触碰、遨游。空间同时接收来自多个开口的光,大部分被深棕色的织物壁布和顶布所吸收,也从棕黑色竹地板的横锯纹理微微反射出来,身体和意识是敏锐的,从阴翳之中望向四处无限远的高光,促人专注或遐想。茶桌上方的射灯只有一瓦,很像在野外露营过夜时,我们眼看着小白独自划着桨板在湖水中央的无垠。
△
茶室
©
夏至
起初的空塔是一个可以观察天空云雨的空间,让独处或者小型聚会更有想象力,对乐器也特别友好。中途因为有上万本书的缘分,空塔恰如其分成为
6
米
多通高的书塔。
△
空塔
©xian
氙建筑
△
空塔
©
刘国威
△
冬季的书塔
©
夏至
△
从书塔看向客厅和书阁
©
刘国威
△
从客厅看书塔
©
梁嘉健
△
看向书阁和主卧
©
刘国威
△
从主卧看空塔
©
夏至
书塔顶部是俯瞰整个坝子的最高视点,小白每年都会花上一段时间独自在野外露营,鼓形开口的四周也逐步发展成从野外回来,能跳进水里看着星星泡澡、卧躺、喝茶的地方。
△
书塔上的屋顶泡池
©
夏至
△
屋顶泡澡
©
夏至
南区(客房)
+ 北区(客房和餐厅)
南区和北区
,也形成一组对视和互动关系。
人会随着自然的起伏共振,不同性格和关系的朋友都能在丰富的场景中找到自己的位置,并且强烈
地
感受到
与彼此同在
。
△
客房立面
©刘国威
向左滑动
>>>
△ 从家庭客房看北区客房 ©
梁嘉健、夏至
△
从北区客房看内院
©
梁嘉健
向左滑动
>>>
△
餐厅、厨房
©
梁嘉健
△
从客房走廊看向北区
©
夏至
△
从客房走廊向北看
©
刘国威
△
从村子道路看
8
号
©
刘国威
后院
前院紧致,后院倾向于野放。前院施工封顶之后,
小白
又意外租下花园后院和停车场,包含储藏间、酒窖、晾晒区、木工坊和营地。
△
从后院营地看向前院和房东奶奶家(右侧)
©
梁嘉健
△
小白在后院营地
©
梁嘉健
小白说,他有了一个满足一切的房子,在沙溪的生活也让他对苏轼在一千年前写下
“
是造物者之无尽藏也,而吾与子之所共适
”的状态
有强烈共鸣。我们也把这两行赋,设计迎请到了东南村
8
号的入口装置上,欢迎你
。随着天南海北的朋友们、更多人的到访,小白和我们都开始被问到:
2040
年,带不走的房子要交还给房东是不是很可惜?
小白
期待着自己在任何时候都能有放下一切的勇气,说走就走
地
去往下一程。我们是相信
建筑不仅是宅基地上的物体,建筑也是一种共通的语言
,能够传达:人们在日常之中,有觉察与自然宇宙紧紧相连、感受生命状态的无尽可能。
设计图纸 ▽
△
轴测图
©xian
氙建筑
△
总平面图
©xian
氙建筑
△
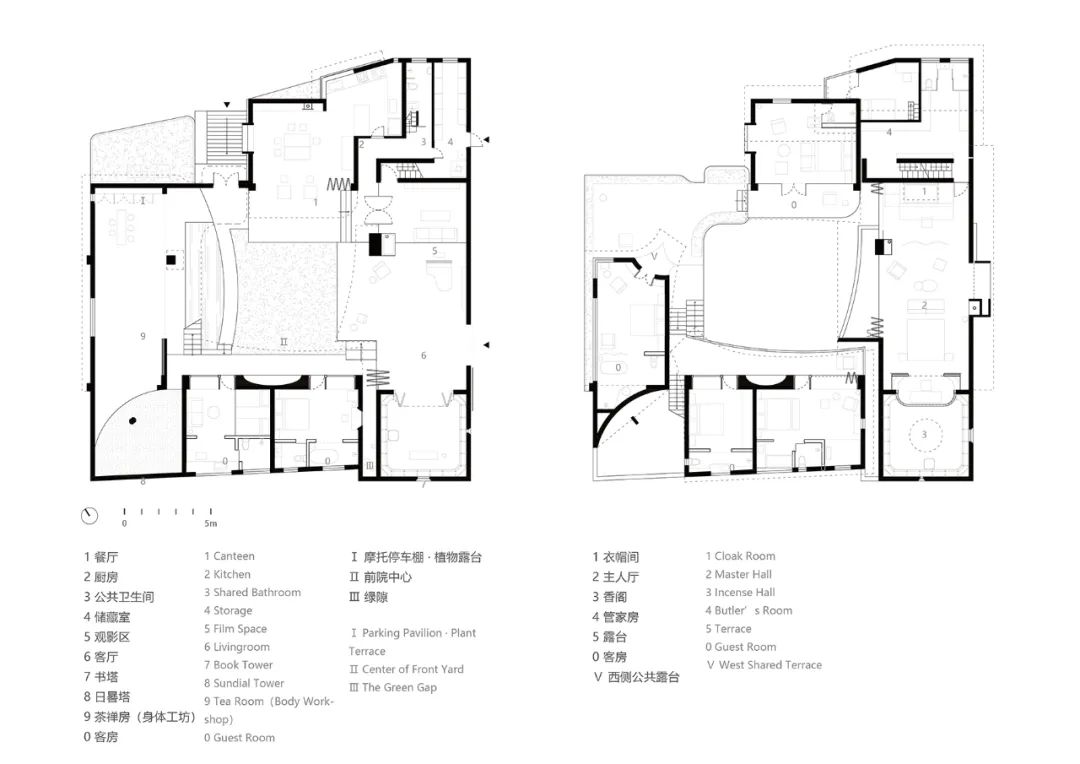
平面图
©xian
氙建筑
△
剖面图
©xian
氙建筑
完整项目信息
项目名称:东南村
8
号
项目类型:景观
/
建筑
/
室内
/
软装
项目地点:云南省剑川县沙溪古镇东南村
8
号
用地面积:
990
平方米
建筑面积:
733
02
平方米
设计时间:
2020
—
22
年
建成时间:
2025
年
2
月
整体设计方:
xian
氙建筑工作室
主创建筑师:王岩石、白河
整体设计团队:董郅源、刘宜锋、周梦筝、黎殷(实习)、吴嘉慧(实习)、陈锦楷(实习)
结构设计师:高雪梅、李平
施工负责人:欧阳东和(白族)
业主:白恵泽(小白)
预约到访
:
东南村8号、
xian氙建筑工作室
携程预订:
东南村8号(入住6套客房)
客服
消息
收藏
下载
最近










































































