查看完整案例

收藏

下载
本次作品分享
我们邀请到
BY
、
XP同学
分享他们的毕业设计
《气韵新生——基于适应性再利用理论的长春东郊厂区更新策略及改建设计》
👀
先来看下鸟瞰图和效果图吧~
视频速览
设计说明
长春市东郊煤气厂作为
“一五”计划时期重要的能源供应基地,承载着长春市工业发展的历史记忆,但随着产业转型和能源结构调整,东郊煤气厂区逐渐废弃,面临功能衰退、活力下降、环境污染等问题。
我们以长春市东郊煤气厂为研究对象,通过
功能置换、空间活化、生态修复、文化延续
四大更新策略,推动工业遗产厂区的活化再生。本设计不仅为长春市东郊煤气厂的更新改造提供系统性解决方案,也为同类型工业遗产的保护利用与区域复兴提供参考与实践依据。
▲历史沿革
前期调研
长春市东郊煤气厂位于长春市二道区,占地约
12公顷。厂区内部分建筑结构保存良好,但其整体环境脆弱,现存建筑未得到有效利用。
厂区内的工业生产设备等原有工业设施因停产而废弃,造成大量建筑空间闲置。这些工业建筑可以适应多种功能,但由于缺乏系统的规划设计,其潜在的工业价值未得到实现。
▲场地中观区位分析图
▲场地微观区位分析图
城市设计部分
工业遗址公园组团
经过详细的上位规划调研与分析,我们发现二路区政府已将东郊煤气厂改造列为示范重点工程,成功签约
“长春燃气东郊煤气
1985”
项目。同时该项目位于已确认搬迁的第二热电厂附近,未来将形成东郊煤气1985遗址公园-长春1948文化街区-长拖1958文化街区-热电厂遗址公园1988 的二道区工业遗址公园大组团。
▲工业遗址公园组团
多级别通行证
我们构建了一个
“多级别通行证”体系。通过不同的权限设置和内容组合,可以将东郊煤气厂遗址公园与二道区工业组团,甚至是长春市
著名景点和冰雪项目
结合起来,提高运营效率,满足不同游客的个性化需求。
▲多级别通行证
生态绿环(生态方面)
我们在深入分析长春市中心城区绿地系统和开敞空间规划的基础上,提出
“工业
-生态”
有机融合的共生理念,保护厂区原生树木群落,修复煤矿污染的土壤,建设海绵城市雨水管理系统,打造长春绿环上生态与工业遗迹相融合的文化体验秀场
,
将原有的工业棕地改造为东部绿化环上的生态服务中心。
▲生态绿环
工业体验之旅(人文层面)
本项目打造的
“
工业体验之旅
”
这一概念,
以长春东郊煤气厂工业遗址为载体,通过
"
工业文化体验
-
文化秀场
-
文旅度假
-工业研学
"
四
大体验层次,构建一条贯穿工业文明过去、现在与未来的叙事轴线。
▲工业体验之旅
▲项目定位与愿景
技术图纸
▲总平面图及经济技术指标
▲空间结构分析图
建筑设计部分
工业博物馆
博物馆位于园区西侧,作为景观大道的视觉终点,采用架空处理形成
12米净高的园区次入口通道,延续场地的工业记忆,巧妙解决人员流线的组织问题。
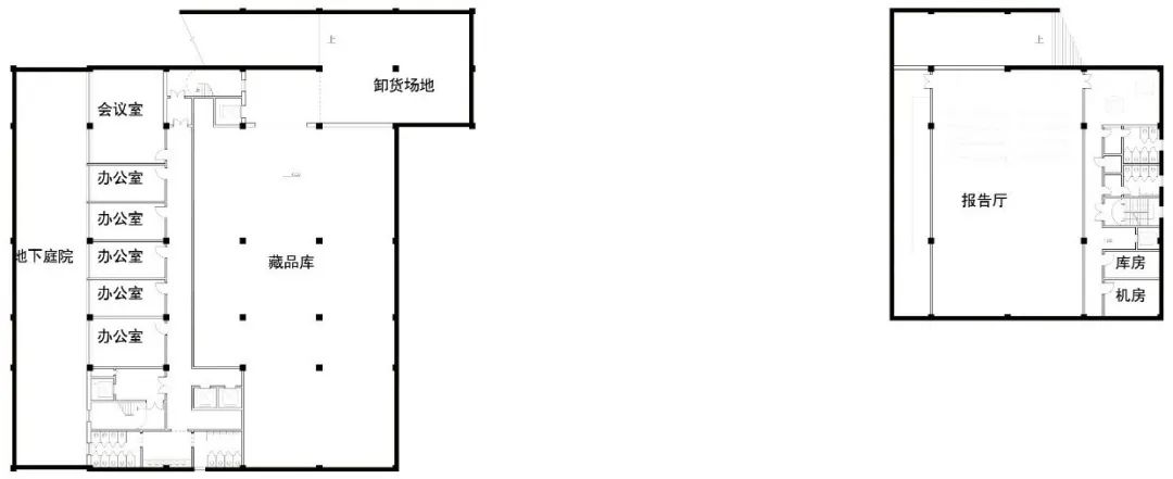
▲博物馆地下一层平面图
▲博物馆首层平面图
▲博物馆二层及二层夹层平面图
就空间布局来说,建筑采用垂直分区设计,辅助功能集中在地下一层保证地上展厅空间的完整性。建筑中间的架空部分作为过渡空间将全区的主要流线与建筑内部的参观动线连接起来,提供一个丰富有趣的室外观景平台。
▲博物馆剖面图
建筑立面设计融于工业遗址公园的材质肌理,玻璃幕墙与清水混凝土混凝土形成虚实对比。入口雕塑墙镌刻着长春工业发展年表,加强建筑的场所精神。
▲博物馆西立面图
▲博物馆东立面图
罐体艺术展厅
罐体艺术展厅位于公园的中心,我们通过新建的连廊系统有机串联
6个直径4.5米,4个直径6.5米的储煤罐,形成总面积约3000平方米的复合型艺术展陈空间。
▲罐体艺术展厅首层平面图
▲罐体艺术展厅二层、三层平面图
▲罐体艺术展厅南立面图、剖面图
工业剧场
工业剧场位于厂区北侧的核心位置,与西侧的工业博物馆形成空间轴线对景,同时作为度假酒店与园区的功能过渡节点,可容纳
1300人。
考虑到长春缺少此类专业的大型剧场,我们在此增设的目的在填补城市空缺的功能。剧场以
“
传统布局+工作坊
”
的形式构成,呼应此前提到的为周边居民服务的理念。我们反复提到要服务周边居民这样一个概念也是经过思考后认为不管是大项目还是小项目、或宏大或渺小,最终都应该更考虑服务于所在城市、所在街区甚至所在社区。
▲剧场首层平面图
▲剧场三层平面图
▲剧场南立面图
▲剧场剖面图
度假酒店
酒店位于园区的东北侧。改造后的建筑保留了
80米高的焦化炉主体框架为特色客房塔楼,增设放射式核心筒结构。
▲酒店首层平面图
▲酒店二层、标准层、客房单元平面图
结构改造方面,
新增筒体结构内胆解决建筑的承重问题,裙房部分运用最大悬臂
18米的巨型桁架体系进行部分架空,中庭采用15米跨单层网壳结构。
▲酒店剖轴测图
结语
作为本科最后也是最重要的一个设计成果,我们
没有刻意追求炫目的视觉效果,而是以
实用
、
可
持续
为核心理念
,并完整的呈现了我和组员一直秉持的核心主张:
不做表面文章,只做有效更新
。
长春东郊煤气厂的改造,不仅是一次建筑的焕新,更是一场工业文明的当代转译。我们以敬畏之心保留历史痕迹,用创新思维激活空间价值
——生锈的储罐成为艺术展廊,沉默的焦化炉化身主题酒店,斑驳的车间演绎科技剧场。在这里,每一根钢梁都在诉说往事,每一处改造都在创造未来。
BY × XP
文中作品及图片归原作者本人所有
|栏目介绍|
在图纸和五花八门的表达手法背后,是什么支撑了设计本身?在设计过程中又有哪些难点,哪些地方需要格外注意?你在做这个项目时候有哪些地方借鉴了别的建筑师 / 建筑项目,谁更值得学习?个人风格是如何养成的?…… 基于大家对于那些项目的好奇心,LAC特地推出【
优秀项目集合地
】栏目!
选自海内外知名高校的优秀学生的作品,从本科到研究生各个年级的大神在线回答我们的提
问
。
▲ 戳上方图片链接查看【优秀项目集合地】其他优秀项目分享
LAC建筑与交互 27、28fall 招生现已全面开启!
推 荐 阅 读
▼
客服
消息
收藏
下载
最近











































