查看完整案例

收藏

下载
本次优秀作品分享
我们邀请到
了来自内蒙古艺术学院
环境设计专业大四的崔柳同学
分享她的毕设作品
《山川几何
倚杏筑景
——台格斗村研学基地美育体验空间优化设计》
👀
先来看下高清效果图吧~
设计背景
本次毕业设计项目位于台格斗村研学基地,该村拥有丰富的乡土文化资源与非物质文化遗产,
在
设计中
我
通过重新梳理原场地位置关系,将乡土文化应用在美育体验空间设计中,其中空间主要功能包含了
一层的前台、弹性展览空间、公共空间、手工艺体验空间、文创产品销售空间
为主的多功能空间的美育体验空间,二层的户外休闲空间和三层的屋顶花园,总建筑面积约为
1300
平方米。
我的设计将
通过美育体验空间为
学生、游客、参与者
提供研学活动场地,同时以乡土文化为美育体验空间设计为载体,激发乡村艺术活力。
前期调研
基地一层虽设有不同功能的手工区域,但是还不具备完善的接待能力且场地空旷,室内实践实训空间没有很好的功能区域划分,复合型空间区域划分不明显,缺乏空间的变化,各功能区之间的联系还不够紧密,隐私性差,影响使用人群体验。
基地二层的观景平台,没有配备餐饮设施和休息座椅,不能为游客提供舒适的休息环境。
基地三层场地缺少功能定位,缺少植被,栏杆安全性低,没有遮挡功能同样需要进一步深化室外空间设计。
总体来看,目前基地在室内外设计上都存在很多的不足之处,虽然场地公共空间具备实践与休闲的基础需求,但是独特的乡土文化在研学空间中体现较弱,空间没有特色,场
地的可探索性与体验性也较为缺乏
。针对这些突出的问题,
我
将在接下来的设计实践当中逐一进行解决。
设计过程
通过前期调研和问题分析,台格斗村研学基地目前空间的主要问题是基地缺乏当地文化特色,体验性较弱。为了满足当地
研学需求
和
突出台格斗村乡村特色
,本次方案设计
将美育体验与乡土文化
相
融合,通过营造多种空间来解决空间的不足与当地的需求
,
从而对当地乡土文化进行了挖掘和营造。
挖掘当地乡土文化:
乡土文化中的
风土民俗、传统民居、本土植物
等都为空间视觉表达提供了依据,所以在挖掘当地乡土文化时毋庸置疑的是要明确其在空间设计中给公众留下的具体印象与深刻意义。在设计实践中,空间中特殊的造型是整个设计的重点与亮点所在
。
1、
当地风土民俗造型提取
:
我
通过深入研究台格斗村的风土民俗可知,当地会举办
杏花节、剪纸、面塑
等民俗活动,其中具有代表性的造型元素就有杏花样式的剪纸图案造型。造型元素具有独特的艺术风格和文化内涵,可以应用在美育体验空间中。
2.
当地传统民居装饰纹样提取
:
我
通过实地调研发现,台格斗传统民居多体现为砖瓦房和窑洞类型的居民村落,其中建筑装饰是台格斗村文化的集中体现,有步步锦、方格纹、万格纹、井字纹、拱门等造型,具有当地特色建筑文化。
设计
通过重复的手法演变为室内空间中可以应用的不同场景里,增强文化个性,设计风格多变。
3.
本土植物的利用
:
我
通过实地调研发现,台格斗研学基地的二三层,地势较高不宜种植高大乔木科植被,更适宜选取适宜土壤浅薄的低矮植物。设计选取本土低矮植物融入到美育体验空间中,通过区分发现可将植物分为低矮的观赏类植物和可食用的蔬菜,这两类植物,不需要大量灌溉就能良好的存活,能有效降低养护成本,使得本土植物也为美育体验空间创造出多样的个性化的体验。
以上就是我的设计思路啦。
接下来我对研学基地一二三层空间进行了空间规划和布局,
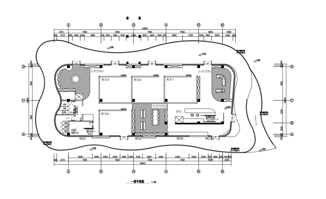
设计将一层室内空间分为五个功能空间,总体空间布局遵循灵活性原则和紧凑型原则,依据空间使用频率和人流动线合理分布位置
。
美育体验空间二层为户外休闲空间,主要设计部分包含观赏类景观和休闲空间两个布局,设计将景观与休闲空间相互穿插。在休闲的同时,通过
多感官互动、艺术创作、生态认知
等方式来让参与者感受自然来带的美。
三层设计为屋顶花园,设计为了提升空间使用率和满足灵活空间布局,设计采用移动花箱来进行布局,并区分了教学区和体验区。
出图阶段
美育体验空间设计节点
1、弹性展览空间设计:
展板的灵活与重复的应用灵感则来源于,剪纸过程中折叠、重复、变换的制作程序,应用可移动展板,不仅能灵活划分展览空间,还能随着参观者的视线和动线的移动,增强空间的层次和变化
。
2、公共活动空间
节点设计:
为了满足参观者在美育体验空间中有舒适的休闲区和活动区,设计将研学基地一层分别设置了三个公共活动空间节点,方便参观者休闲娱乐和参观学习。
3、文创产品销售空间设计:
在研学基地一层,设计为了满足当地村委要求和振兴乡村经济的需要,设计了文创产品销售空间。在文创产品销售空间的设计中,设计本着既能展示文创产品又能作为空间装饰元素的原则,将乡土文化中的传统装饰纹样应用在场地里,设计
中我
提取了方格纹样。
4、屋顶花园节点设计
:
研学基地三层为屋顶花园的设计,在设计中同样提取了传统民居装饰纹样的方格纹样造型来设计,并通过高低大小不同的可移动花箱进行排布,构成有当地特色的方格纹样造型。高低大小不同的花箱能够为植物的生长提供良好的生活空间,可移动方式还能丰富屋顶花园的景观层次,让参与者在屋顶花园中可以通过视觉来感受自然带来的美,给参与者来带更好的美育体验
。
模型阶段
在制作模型中我将模型分为两个部分,还在模型下面加了
移动滑轨
,方便观察内部空间布局。
部分项目图纸
部分场地插画风格效果图
▲弹性展览空间效果图
▲
公共空间效果图
▲
屋顶花园效果图
自我总结
本次
我的设计
以台格斗村研学基地为具体案例,在设计实践中
将乡土文化与美育体验空间
相
结合
,为保护与传承乡土文化进行了尝试,同时为周边学生提供了个性化的研学空间,丰富了参与者的美育体验,满足当地研学需求丰富了研学实践内容。
在
设计
中我
还充分考虑对当地文化资源与自然资源的挖掘,通过对台格斗村当地文化资源造型的提取运用以及对当地植物的选取利用,使美育体验空间设计更多样。但在设计实践中,对材料的应用和技术的掌握还有很多提升和改进的空间。
希望本次毕业设计实践可以吸引更多的关注和参与,为乡村空间提供有益的参考,使乡土文化与美育体验空间的融合创造出更具有文化内涵和价值的
实践案例
。
文中作品及图片归原作者本人所有
|栏目介绍|
在图纸和五花八门的表达手法背后,是什么支撑了设计本身?在设计过程中又有哪些难点,哪些地方需要格外注意?你在做这个项目时候有哪些地方借鉴了别的建筑师 / 建筑项目,谁更值得学习?个人风格是如何养成的?…… 基于大家对于那些项目的好奇心,LAC特地推出【
优秀项目集合地
】栏目!
选自海内外知名高校的优秀学生的作品,从本科到研究生各个年级的大神在线回答我们的提
问
。
▲ 戳上方图片链接查看【优秀项目集合地】其他优秀项目分享
LAC建筑与交互 27、28fall 招生现已全面开启!
推 荐 阅 读
▼
客服
消息
收藏
下载
最近






































