知末
知末
创作上传
VIP
收藏下载
登录 | 注册有礼

法式轻奢|底复|半畝塘设计

2025/04/26 14:43:13
查看完整案例
微信扫一扫
收藏
下载
Address|项目地址:邹城碧桂园云地天启
Interior Design|室内设计:半畝塘 孔凡宁 
法式轻奢|底复|半畝塘设计-2
      本案以“经典与现代的诗意平衡”为内核,将一楼底复空间重构为法式轻奢美学的当代叙事。
依托标志性法式线条的韵律之美,融合古典雕琢感与极简比例,将功能性与美学叙事融为一体,最终在流动的线条与克制的奢华中,诠释“藏于细节的贵族精神”。
1F
法式轻奢|底复|半畝塘设计-6
-1F
法式轻奢|底复|半畝塘设计-8
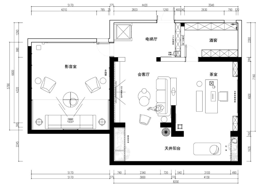
(01)一层
法式轻奢|底复|半畝塘设计-10
法式轻奢|底复|半畝塘设计-11
法式轻奢|底复|半畝塘设计-12
法式轻奢|底复|半畝塘设计-13
法式轻奢|底复|半畝塘设计-14
法式轻奢|底复|半畝塘设计-15
法式轻奢|底复|半畝塘设计-16
法式轻奢|底复|半畝塘设计-17
法式轻奢|底复|半畝塘设计-18
法式轻奢|底复|半畝塘设计-19
法式轻奢|底复|半畝塘设计-20
法式轻奢|底复|半畝塘设计-21
法式轻奢|底复|半畝塘设计-22
法式轻奢|底复|半畝塘设计-23
法式轻奢|底复|半畝塘设计-24
法式轻奢|底复|半畝塘设计-25
法式轻奢|底复|半畝塘设计-26
法式轻奢|底复|半畝塘设计-27
法式轻奢|底复|半畝塘设计-28
(02)
地下室
法式轻奢|底复|半畝塘设计-31
法式轻奢|底复|半畝塘设计-32
法式轻奢|底复|半畝塘设计-33
法式轻奢|底复|半畝塘设计-34
法式轻奢|底复|半畝塘设计-35
法式轻奢|底复|半畝塘设计-36
法式轻奢|底复|半畝塘设计-37
法式轻奢|底复|半畝塘设计-38
 …
南京喵熊网络科技有限公司 苏ICP备18050492号-4知末 © 2018—2020 . All photos and trademark graphics are copyrighted by their owners.增值电信业务经营许可证(ICP)苏B2-20201444苏公网安备 32011302321234号
客服
消息
收藏
下载
最近