查看完整案例

收藏

下载
对于居住空间的形式,我们越来越追求开放,开放不仅仅让空间显大,而是赋予更多的可塑性与功能性,功能的叠加,穿插,灵动,特别是当下,亲子互动成了最重要的诉求之一,开放多元的核心区,更加重要,当然,兼顾一定的私密性与围合感,也非常关键,保持高度开放的前提下,有拥有各自的“私密领地”。今天带来的两个案例来自
ANGSTUDIO和习本设计,从中感受开放与围合的空间魅力。
1
对现代简奢生活方式的畅想
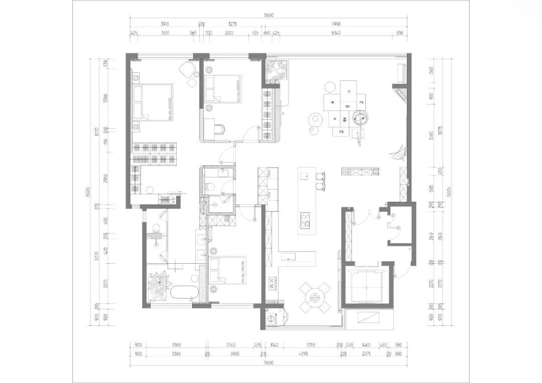
西安龙湖·景粼天序230㎡住宅
|
ANGSTUDIO·李斌
━
本案,龙湖景粼天序215㎡平层,设计师李斌将屋主的居住常态具象化,打破居住功能的传统概念,餐厨空间互调换,去视觉“通道化”很多有趣的设
计手法和心思,在空间中“不动声色”,悄然让家“惊艳”。
推窗见景,亦是生活之美,在李斌的设计中,关于“内建筑”的设计手法总是或多或少的,根据不同的弧形有所表现,在本案中,原始的四居室既不能让卧房宽敞,亦不能让共享空间流畅,因此,设计师从入户便开始了各种“走廊”消隐法,将入户区域充分利用,设计入户风雨衣帽鞋柜,去掉原始的入户正对的隔墙,空间打开,客厅推移,阳台并入,整个空间的比例变得更加大气协调,大大的横窗“一镜到底”,室内氛围和室外景色交融。
是的,关于现代简奢生活方式的畅想,在这里有了既视感,打开的阳台,因为原始的梁柱关系,不能拆改,因此,设计师通过一些几何的关系和手法去弱化承重梁柱在空间中的“站位”,通过立体的几何造型做了空间的“修改”,因为丰盈的采光,也让整个客厅的视觉更加宽敞,原本板正的阳台,通过几何不同造型的衔接,也有了更多的趣味性。
设计深入到屋主的生活习惯,时间的尽头,是一日三餐,当然要将更好的空间留给家人共同的互动,原始的厨房面积比较大,屋主并不是常常做饭,但家人的下午茶时光很重要,把餐厨空间互相调换,打开厨房阳台,窗户改为落地景观窗,餐桌放置北边,极好的视野最适合下午茶,用餐的舒心程度也直线飙升,互换后的厨房设计完整的中西厨,并向南向延展,与玄关形成了流畅的衔接动线,小设计大颠覆。
人与自然的和谐共处,谁说智能是建筑与自然,在本案中,人与自然亦是生活与自然,空间、人、景有了更多互动的大“视口”;将原始东北向的小卧室,合并到主卧空间,原始主卧的卫生间改造成为一衣帽间,打开并缩短,一部分让给孩子房的公共区域,非承重墙的客卫也打开,设计双面柜和衣帽间并行,主卧形成套房格局,建筑的手法在空间细节中再次施展,卫浴间做了不同的节奏层次,叠级台阶;设计总在空间中有意的“自然景观”进入,墙面是几何但也留有呼吸缝,经过有趣的改造,主卧套房的梳妆、储纳、尺度的内推,让居住的延展性自然而然。
两个儿童房的互动亦兼顾到视觉景观,原始两个房间的公共通道细碎不平,设计拉平,改造公卫,两个儿童房共用,大大家里也有各自的小小世界。
平面布局图
项目名称|
龙湖·景粼天序
项目地点
|
中国 西安
项目面积
|
230平米
设计机构
|
ANGSTUDIO
服务方式
|
全案设计+全案落地服务
2
在秋风里住进禅意侘寂的家
合肥105㎡二人私宅 | 习本设计
━
本案以质朴的风格打造,自然简约、质朴宁静,很好的诠释出了生活干净纯粹的样子,营造出富有自然气息的室内家居环境。
阳台纳入客厅,是现在很多设计师都会选择的方向,利用阳台的区域,设计了两边到头的台面。
台面上留有大水池,平时洗东西也可,摆弄花艺也很方便
斜顶的造型,让空调出风口有了归处,同时减少因空调导致层高带来的压抑感
客餐厅一体,定制双面沙发,硬座面兼做餐椅,软座面可躺可坐,射灯和灯带,营造温馨暖阳般的氛围
电视背景墙体,是近砖红色的岩彩,公共区域由此分区,墙后面又可独自成功能区,悬空电视柜与半墙的搭配,造型感拉满
餐桌兼做茶桌,下面留有下水,烹茶焚香,是主人家的另一种生活乐趣,水泥砖墙,增添了一丝古朴的徽派气息
厨房的小心思,灶台上方也单独留了水源,日常烹饪方便加水,厨房吊轨门造型是特别设计,既是厨房门,又可拉到头,将外卫与次卧组成套间
阳台的台面由客厅延伸至书房,又是业主办公看书的桌子,两边折叠门拉上,就是私密空间,放上沙发床,偶有人来可以临时住,日常又是休闲区域
床头背景墙呼应客厅颜色,延续整体风格,纸质吊灯更是别有一番滋味,定制的梳妆台吊柜,在实现功能的基础上,最大程度的节省空间
主卫在基础功能上,实现了业主泡澡自由的愿望,这不得不说是个惊喜,现砌浴池,也是淋浴区,用微水泥进行改色,是常规的卫生间的一种突破
外卫实现了三分离,岩板台面搭配台上盆,清爽易打理,移门拉上,与次卧自成一体
平面布局图
项目名称
|
在自由的秋风里住进禅意侘寂的理想之家
项目位置
|
中国 合肥
项目面积
|
105㎡
设计机构
|
习本设计
工作范围
|
全案设计及落地
如需对接设计机构
/
snsjlm502
近期好课
━
游学招募丨日本现代建筑园林寻踪
13693232461
客服
消息
收藏
下载
最近














































