查看完整案例

收藏

下载
“跨越时空的共鸣,在岁月的褶皱里重逢”
"Resonance across time and space, reunited in the folds of time"
Design Team:JAC匠诚空间设计
Decorate Team:JAC匠诚空间设计
Soft Outfit:厘厘家居美学
Address:花溪·小保冰浆
Floor Area:60+35+19m²
三十五载甜蜜记忆
1989年夏,有家不起眼的小店总是排着队,当第一勺芒果冰浆在玻璃柜台凝结成霜,便开启三代人的味觉传承。
从手写价目表到智能点单系统,从街边小摊到城市地标,35年来坚持"用温度制造甜蜜"。
本次店铺全面升级,不仅是空间重构,更是对"慢食文化"的当代诠释。
2025年将启动"城市冰浆地图"计划,成为城市文化记忆的"味觉档案馆"。
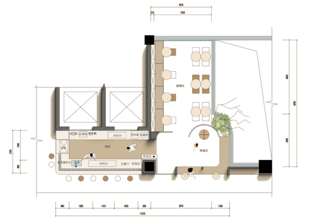
平面图
店铺选址位于商城内部,整体为开放式布局,
顾客可以自由穿梭其间,享受冰浆带来的清凉与愉悦。入口左边以点单吧台为核心,入口右边为等待区,点单区和后方的操作区组成一个U型活动空间,保证动线无死角,减少无效走动,保障员工协助效率。透明的冰浆制作区域让人一览无余,每一勺冰浆的制作过程都尽收眼底,增添了食用的安心与乐趣。
等待区走进去后边是休闲区,顾客可以在品尝冰浆的同时,享受片刻的宁静与放松。这里不仅是一个品尝美食的地方,更是一个让人心生欢喜、流连忘返的休闲空间。
店面升级后
一店
采用开放式吧台+休闲区的组合形式,吧台作为核心功能区(商品展示、收银、制作),通过吧台高度、吧椅排布引导顾客自然形成“浏览-消费-休闲”的流畅动线,兼顾空间通透性与互动性,打造“即买即享”的体验感。
玻璃门+玻璃窗打破室内外边界,室内桌椅布局与外部空间形成视觉互动,即现“开放、社交”的空间属性。透明材质的运用不仅延伸了空间层次,更让空间在虚实之间呈现出流动的诗意,仿佛将时间凝固成一杯冰浆的清凉。光影透过玻璃在地面悄然游走,随着日升月落变换姿态。
将超大饮品美陈置于画面中心,成为视觉锚点,强化品牌记忆点。晶莹剔透的冰块从顶部滴落在杯子里,在阳光下折射出斑斓的色彩,让人一眼便能感受到品牌独特的清凉魅力。
开放式公共区域设计,长椅社交属性既满足顾客等待时的互动性,又以绿植、通透隔断划分空间,实现“视觉通透+功能独立”的平衡,提升空间利用率与体验流畅度,让顾客在自然过渡中享受不同场景的切换。
二店
延续一店的设计理念,二店以“互动式冷饮工坊”为核心,打造更具沉浸感的消费场景。空间中央设置环形操作台,顾客可围绕吧台近距离观摩冰浆制作工艺,感受传统与现代技法的融合。
通过大面积窗户与通透隔断弱化空间边界,实现“餐饮区—休闲区—展示区”的自然衔接。空间动线流畅,满足多人同时活动的社交属性,同时兼顾隐私性,窗户引入充足自然光,结合通透隔断,让光线在空间中自由流动,提升通透感与明亮度。休闲区墙面陈列老照片与旧时制冰工具,呼应品牌历史传承,增强文化认同感。
清风徐来,顶部飘动的纱幔,像轻盈的云朵在空中悠然飘荡,为空间注入灵动的气息,仿佛带来远方的呢喃,与冰浆的清凉相得益彰。在这里,时间放慢了脚步,让人们忘却喧嚣,沉浸于片刻的宁静与美好。
三店
三店做了进一步创新,引入“冰浆实验室”的概念,将空间打造成充满趣味与探索感的体验场域。科学感的装置与冰浆制作设备巧妙结合,让每一杯冰浆的诞生都仿佛是一次奇妙的实验,激发顾客对制作过程的好奇与参与感。
35年如一日,刨冰机吱呀转动的声音,混合着水果的甜香,早已成为了几代贵阳人舌尖上的夏日密码。用三代人坚守的冰浆店,早已超越冷饮的范畴。它是城市记忆的活化石,是市井生活的温度计,更是匠人精神的微缩景观。当您舀起第一口带着冰碴的甜蜜,尝到的不仅是35年的手艺,更是一座城对美好的执着。
愿每位顾客在推门瞬间,都能听见35年光阴在冰晶中碎裂的清脆声响,品尝到比记忆更绵长的甜蜜。
- End -
JAC匠诚空间设计成立十周年,始终坚持“匠心诚品”的价值观,致力于为客户创造美好且富有艺术感的空间。
JAC匠诚设计团队是贵州首个创新全案设计团队,已在贵阳和织金分别设立了JAC匠诚空间设计和森林兔匠诚设计公司。全案设计托管服务内容包括了功能布置和风格定位、整体预算编制、 施工过程全程跟踪、主材搭配及落地对接、家具及软装跟进与落地。我们的设计团队按照项目来配置,每一个项目一个主案设计师做整体的把控和协调,搭配一个至两个执行设计师做硬装部分的设计完成、施工跟踪对接,配置一名软装设计师做家具和软装搭配落地。只有一个强大、完善的设计团队才有一个良好的过程和满意的结果,才会有设计想法的充分落地和美好实景作品的落地。
CELL:18984103610
客服
消息
收藏
下载
最近




















