查看完整案例

收藏

下载
精妙设计,点亮空间魅力
让每一处都熠熠生辉
家族情感的永恒传承
拥有2800²
精美园林的
大宅之韵
▲更多信息请到视频号观看
对于业主来说,这里不仅是心灵的栖息之地,更是事业成功后的宁静港湾。每当忙碌了一天之后,踏入这片宁静的环境,心情便不由得放松下来。看着儿孙们在园林中欢乐地玩耍,那纯真的笑声如同清脆的铃声般悦耳动听,让人倍感幸福。
儿童乐园与庭院景观的融合
打造多功能家庭空间
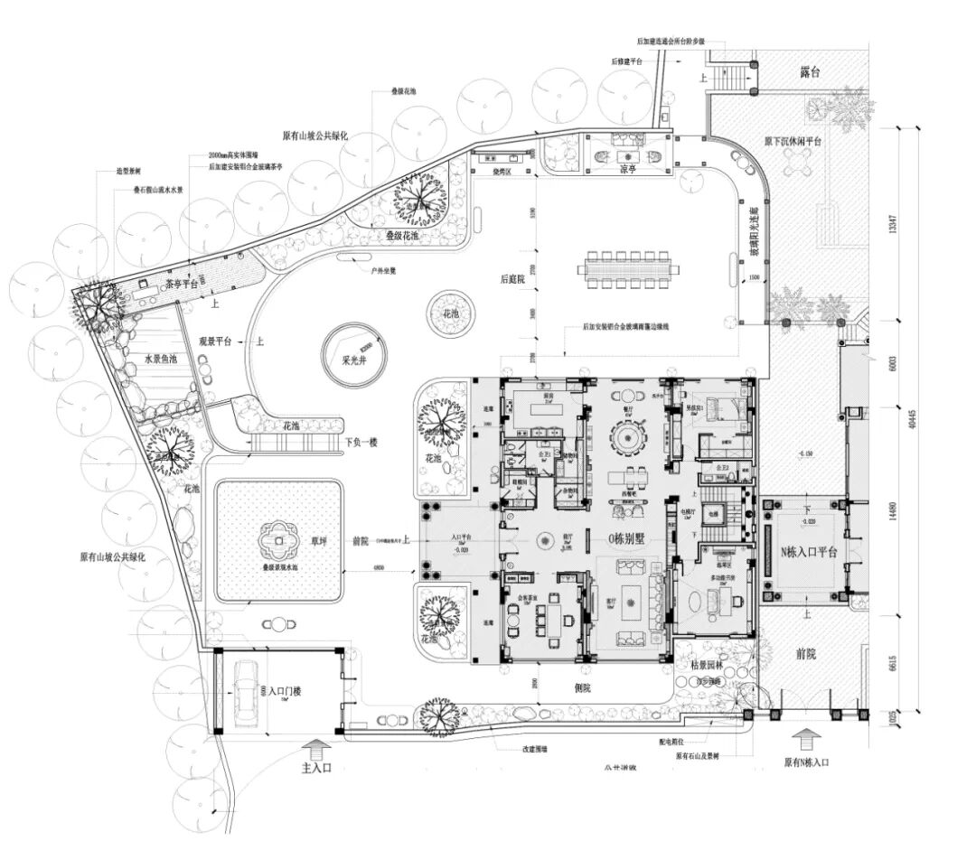
▲园林平面
▲建筑外观
在占地2800平方米的庄园中,天堃精心打造了一个集家庭聚会、户外烧烤和儿童游乐于一体的多功能庭院,旨在增强家庭成员之间的互动,提升家庭的整体幸福感。
天堃
致力于营造一个既能满足家庭成员休闲娱乐需求,又能确保儿童安全游乐的空间。
为此,庭院被巧妙地划分为几个主要区域:
喷泉广场、无障碍儿童游乐区、家庭聚会区、户外烧烤区以及景观欣赏区。
每个区域都经过精心设计,以确保每个家庭成员都能在此找到属于自己的乐趣。
01
草坪雕塑喷泉
当我们站在别墅的门楼下看向庭院,映入眼帘的是一座以小天使怀抱金鱼为主题的雕塑喷泉。小天使面带微笑,眼神柔和,怀中拥有一条活泼灵动的小鱼,整个场景洋溢着纯真与和谐的气息。
背景中的柱廊间,一个小天使手持丘比特之箭,翅膀微微张开,仿佛在诉说一段关于爱与关怀的美丽故事
。
它宛如一颗珍珠,镶嵌在前院 ,成为了一道迷人的风景线。
▲前院广场
而
喷泉四周环绕着精心照料的广袤草坪,绿意盎然,小兔子的摆调与球灯点缀,也为这方天地增添了生机与活力。
02
休闲平台
休闲平台与景观鱼池:引入了一座小型的阶梯式流水喷泉,锦鲤在其中悠游,既美化环境,又充当了地下室大型景观鱼缸的角色,增添了庭院的生机与活力。
03
家庭聚会与
户外烧烤
此区域配备了舒适的户外桌椅,适合家人和朋友们在此共进晚餐或轻松交谈。
夜幕降临时,温馨的灯光营造出宜人的氛围,让相聚时光更加美好。
精心规划的烧烤区不仅便于准备食材,还能让家庭成员一起参与烹饪过程,增加乐趣。
04
大硬铺的地面给儿童充足的活动空间
庭院地面宽敞平坦的大硬铺地面,专为孩子们设计,旨在让他们有一个安全、舒适的地方尽情奔跑和嬉戏。
孩子们的天性是活泼好动,这片宽敞的地面为他们提供了足够的空间,让他们可以自由地玩耍,不受限制。
无论是追逐游戏、骑自行车,还是简单的散步,孩子们都可以在这里找到属于自己的乐趣。
天堃设计2010年创立
十余年来,我们一直坚守着初心
用匠心雕琢精品
在时间的长河中
留下属于我们的小小印记
Add:广东省广州市番禺区兴南大道348号招商城市主场1827
TEL: 18902207135
客服
消息
收藏
下载
最近

















