查看完整案例

收藏

下载
长按上图立即预约👆
室内设计圈里懂流量的自媒体人,30w粉设计师IP操盘 ,
能教你线上引流获客的大咖-阿萌老师来了!!!
以专业视角为设计师答疑新媒体获客的任何问题!
不管是视频没播放还是平台没转化 ,
只要您在做账号通通来问,
7月28日周一晚八点视频号直播
。
是什么能让您想到回家?家里的温暖放松,舒适宜人,是需要营造出来的。充满生机的原木,开阔的活动空间,以及暖色的基调,都能让这个家有了归属感。留一处安然给自己,让自己可以在一个地方去释放。今天分享的两个案例来自
璞珥空间设计
和
拾光悠然设计
。
1
留一方庭院给自然
成都350平日式别墅丨
璞珥空间设计
━
设计师希望呈现一个能够带给屋主自然、滋养、平和及安然的居家感受,在喧嚣的城市中有一片静谧的空间。自然不刻意的设计、恰到好处的生活动线,让每个细节都传递着舒适与和谐。情感的蔓延、草木的绿意、花香的馥郁、清风拂过的轻声,都在诉说着流动的韵律,微妙之间让空间多了一份灵气。在这样的居住氛围中,与自己的内在建立连接,获得宁静与抚慰。
每一处空间都得到了充分的运用,兼具美观性与实用性,创造出多功能可叠加的生活场域。客厅空间也得到了最大化的利用,将阳台纳入客厅做了地台的设计,打造茶室一隅,它是平息浮躁的雅韵之处,营造宽阔通透的视觉感受。一壶清茶,一本闲书,家人或好友围坐其中,轻松闲聊,仿佛时间都慢了下来。别具一格的角落,不仅是一个休憩的区域,更承载着生活的温情与美好。实木的温润与亚麻织物的柔软交织,自然的材质总是给人放松的舒适感。
可开合的互动空间,能够带动空间产生联系和功能上的联动。关上门围合成独立的静谧空间,打开便与客厅合为一体。
实木的温润与亚麻织物的柔软交织,自然的材质总是给人放松的舒适感。
开放式的餐厨区形成洄游动线,既满足了烹饪与用餐,又促进家人间的互动。通透的空间视线一直延伸到庭院,感受自然的变化和四季的交替,繁茂的绿植照映空间,引入自然光景,将休闲区蕴藏的生活仪式感呈现的淋漓尽致。
收纳储物区一应俱全。赋予井然有序的生活节奏。
素色有肌理感的墙面,干净质朴,随心淡然的基调与自然氛围相呼应。
滑滑杆连接着上下楼层,给生活动线增添了无穷的乐趣。天井的设计让阳光自由洒落,每一束光在不同的角落游走,赋予空间流动的生命力。明暗交织中诉说着家的温暖与情感。
在家里释放你最舒服的状态。
“当你的内在变得宁静、和平、喜悦时,你的眼睛就有一种深度、清澈、纯洁、天真。”
庭院绿意摇曳,视线与情感流动,微微泛起暖意。没有多余的修饰,却蕴含着生活的本真与情感,放下纷扰,感受最纯粹的日常。
通透开放性空间,每各角落藏有不同秘境生活仪式感,摆脱繁忙心思,愉逸随心生活。
一个自然的背景,增强了私密性和宁静感。简简单单,干干净净,没有奢华的装饰,却散发着质朴与温馨。
温润的原木材质,简洁干净的墙面,色彩低调不张扬,空间轻盈松弛。
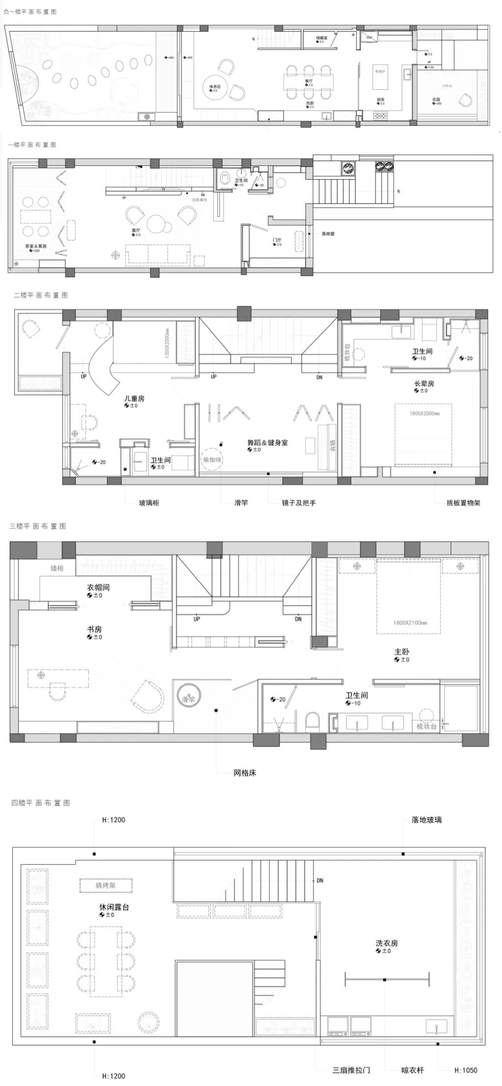
平面布置图
项目名称 |
悠悠
设计出品 |
璞珥空间设计
项目面积
|
350平米
项目地点 |
四川 成都
2
不被风格定义的亲子乐园
成都108平现代三室丨拾光悠然设计
━
业主的孩子还年幼,前期有老人过来帮忙照顾。他们对色彩有着独特的偏好,钟情于白色、咖色、紫色、绿色等饱和度不高的颜色,渴望家里充满舒适感,还能有那么一些小小的浪漫氛围。考虑到孩子较小,他们希望客厅能成为多功能开放空间,既可以供家人运动健身,又能让孩子尽情玩耍。
先说说阳台和客厅的联动设计,这一巧妙的布局让原本有限的空间瞬间有了更多可能性。在这里,你可以燃上一支香,坐下来静静地品茗观景,享受属于自己的宁静时光。沙发选择靠墙摆放,这样一来就留出了更大的活动空间。沙发背景墙采用书页造型,既为空间增添了浪漫的设计感,又不会过多占用空间面积。书页造型的背景墙,仿佛在记录屋主一幕幕的故事,让整个空间充满了艺术氛围。
鞋柜和电视柜组合在一起,形成了一个超大的储物空间,完美地满足了家庭的收纳需求。当小朋友在家时,这里又能摇身一变成为他们的游乐场,充满欢声笑语。在这样相同的陪伴场景里,见证着小朋友们慢慢长大,长辈们慢慢变老,满满的都是生活的温馨与感动。
设计师直接打破常规布局,将餐桌和西厨岛台移至阳台。在超大落地窗带来的通透视野和绝佳采光下,一家人可在每日好时光中用餐,惬意悠闲。或是静静地坐着,看着窗外的美景,享受片刻的宁静与放松。或者在一个温暖的午后,泡上一杯茶,拿上一本书,在这里度过悠闲的时光。这就是生活中的小美好呀。
洞洞板,其灵活多变的属性实在让人惊喜。它既能满足多种收纳需求,又能为家里增添趣味性。屋主和小宝贝可以亲自动手,在洞洞板上进行各种创意布置,享受亲子玩乐的时光。
厨房紧邻入户位置,这大大缩短了日常采购物资回家存放的路线。然而,原始厨房空间封闭,毫无采光可言,入户空间也极为狭长阴暗。针对这个问题,我们将厨房完全开放。如此一来,入户瞬间就能拥有超大的空间视角,给人一种极为开阔的感觉。长方小砖的点缀可谓巧妙至极,让温暖的米棕色调瞬间更具精致感和复古韵味。在厨房和玄关之间的隔墙上,安装了两个圆球壁灯。这可绝不仅仅是装饰,它大大增加了入户时的视觉观感。当屋主一进门,就会被深深吸引。
当夜色降临,主卧这个温暖的角落总是能让人感到无比安心。在主卧的设计中,以舒适好睡为主要需求。床的款式简洁大方,没有多余的装饰。同样的灰米色调,搭配胡桃木的床屏,营造出一种闲适的氛围感。床,就像是最小单位的天堂。一款简单的床具,加上蓬松的被子,仿佛已经为一夜的安眠做好了准备。屋主在忙碌了一天后,舒适地躺在床上,放松身心,享受宁静的夜晚。
生活嘛,总得有点仪式感。在仅仅几平米的浴室里,你可以放空自己,尽情拥抱那片刻的惬意。屋主对干湿分区没有特别强烈的需求,但是主卫希望能有个浴缸。在忙碌了一天后,泡个舒服的澡,享受独属于自己的治愈时刻,那该是多么美妙啊。这个浴室虽然不大,却给人一种舒适且有质感的感觉。在这里,你可以暂时忘却外界的喧嚣,沉浸在自己的小世界里。
现在家里的小宝贝年纪尚幼,所以屋主的父母会过来帮忙照料。次卧以收纳和寝居功能为主,没有过多复杂的造型设计。虽然空间不大,却布置得井井有条。有足够的收纳空间可以存放衣物和生活用品,简洁舒适的床具摆放在其中,让整个空间显得更为简洁轻松,让人能够安心入睡。
平面布置图
项目面积
|
108平米
项目地址|
中国·四川
设计机构
|
拾光悠然设计
如需对接设计机构
/
snsjlm502
近期好课
━
游学招募丨日本现代建筑园林寻踪
13693232461
客服
消息
收藏
下载
最近





























































