查看完整案例

收藏

下载
张馨设计
随心|混搭
在这一人住的别墅里,她把生活过成了自己想要的样子。
白天是一位细心看诊的忙碌医生,回家后暂时把工作琐事留在玄关梯厅,踏步上楼到自己的疗愈小天地,好好吃饭、好好放松、做喜欢的事情,卸下专业形象回到单纯的小女孩。
一楼
在美式风格中取了少量、简洁的线条,刻意减少了繁复的线板装饰,让空间更轻盈纯粹。
1
玄关
为了保留美式特有的温润质感,所以在喷漆时会刻意留下毛细孔,这样即使沾上污渍,用抹布轻轻一擦就能恢复干净。
二楼
大幅度保留了建商的基础设备,只适度加入美式线条及收框,并以灰镜、大理石来调和现代与美式的调性。
2
客厅
通过收框设计提升了整体的精致度,并在框体上加入了屋主喜爱的美式线条,让每一处细节都更有层次感。
餐厅
在原有空间的设计中专门为屋主量身设计了餐桌,并让其与中岛及整体空间完美融合,呈现统一而协调的格局。
三楼
屋主喜欢的风格非常统一, 所以加入的元素都以淡雅为主,并不需要靠繁复的装潢去填满空间。
3
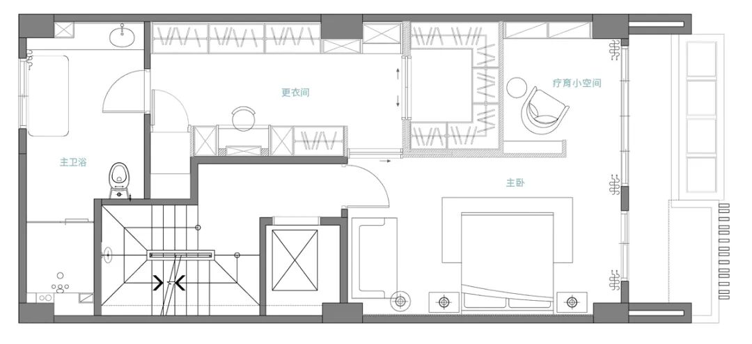
主卧
用白色作为舒适的基底,搭配同样淡雅色的贵妃椅和床头板,营造出柔和氛围。
衣帽间
大部分收纳都采用门片做成封闭式,让空间看起来更整齐、轻盈,也更贴近屋主喜欢的干净简洁风格。
四楼
预留一部分的空间,方便未来灵活运用,这样既能当长辈房,也能作为儿童房或客房使用。
4
孝亲房
只做了基础的天地壁和一个小巧的更衣间,其余空间保持简洁,不堆砌过多装饰,而是靠软装来营造整体氛围。
五楼
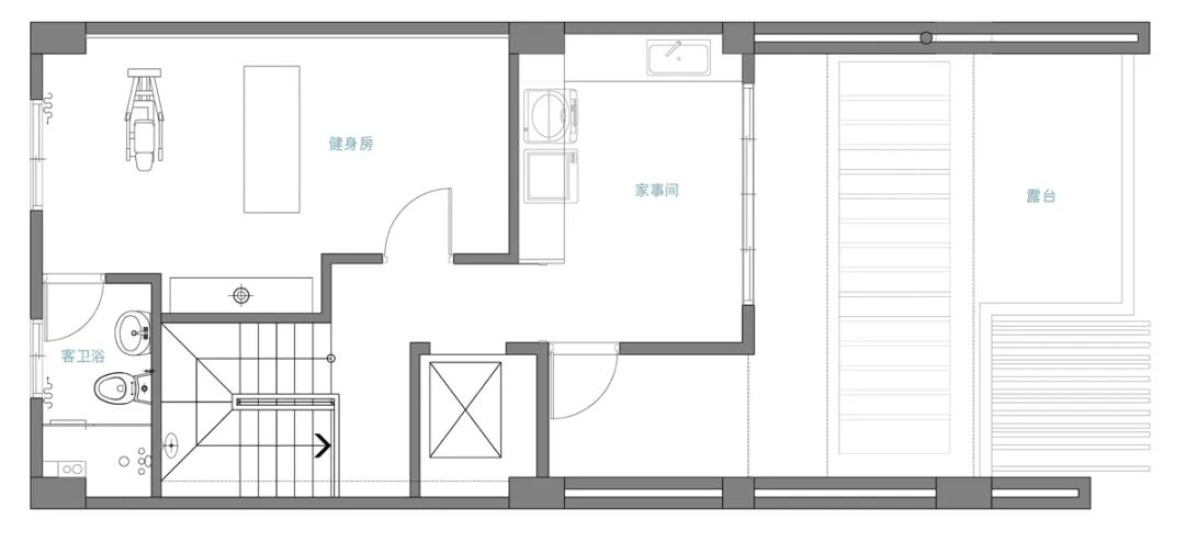
这里既能满足屋主的运动需求,也方便日常家务的处理,同时能兼顾运动与生活机能。
5
健身房
屋主平时喜欢运动,所以这里设计了一面大玻璃墙,并放置了有氧运动器材,让运动时更舒适、开阔。
家事间
除了基本功能外,还考虑到室内外的差异,于是在室内加装了晾晒设备,方便在风雨天气时使用。
这个家没有过多的设计表现,反而是这些摆件为空间增添了厚度与韵味。坐在那张等了半年才到货的进口花瓣沙发上,和来作客的父母闲话家常,先把自己照顾好了,才能在医院照顾更多的人。
设计风格|美式、现代
项目面积|370m²
设计公司|瀚观室內装饰有限公司
CYNTHIA
高级·美式·梦想
【原创设计|实景拍摄|严禁盗图】
客服
消息
收藏
下载
最近
























