查看完整案例

收藏

下载
在居住设计中,「家」不仅是物理空间,更是生活态度的投射。
你是否在开门瞬间,想卸下所有疲惫?城市中奔忙的我们,对「家」的期待早已超越居住本身 —— 它是让灵魂舒展的茧房,是读懂你的知己,更是承载热爱的精
神场域。
今天给大家带来的来自【意森空间】的两则案例以「毛坯房焕新」与「日系松弛感」为核心,展现不同的居住哲学
1
小户型的华丽转身 | 意森设计
杭州美都雅苑80㎡小宅的空间魔法
━
基本处于毛坯状态的房子,有些许家具。在空置多年后,业主决定装修,作为自己独处或与朋友聚会的地儿,
拆除非承重墙体,打开空间,让设计有更多可能,
小户型打造LDK一体化,视野更开阔,互动性更好,
利用承重柱打造回游动线收纳柜墙体,让整个家流动起来。
户型虽小,仍为玄关寻到了小小一隅,
就在入户后靠近餐厅的位置,利用原始结构的墙体,外挑了一组悬浮玄关柜,
既把建筑上的缺陷隐藏住了,也为我们鞋子包包添置了容身之处,
视觉上整洁大方,柜体背部还藏有灯带,氛围营造也是一绝。
厨房在位置上没变化,变化的是其内核,
厨房重新吊顶与窗户齐平,也与墙面横梁齐平,无主灯的光源分布更均匀,
地面采用深灰色地砖,同时靠入户门墙面用地砖上墙的方式包裹,耐脏又易清洁,
厨房内部墙面豪气得用了大砖,颜值的确耐打,
打掉厨房门做成开放式,承重柱不能动,加宽原承重柱做了端景位置,柱子后方刚好隐藏全嵌冰箱。
玄关柜旁就是我们的小小餐厅,
圆桌使整个空间变得更具温润质感,
日常一个人用餐可以靠墙摆放圆桌,多人用餐就可以拉出来一些,
顶面的餐厅灯可以根据需求调整位置,保证照明,
餐边柜具备了水吧台和收纳抽屉的功能,日常使用绰绰有余,
与电视背景共用一堵墙体,视觉效果拉满
从厨房视角可以看到LDK整体的空间感觉,
由小变大客厅具备一个开阔的视野,
顶面横梁我们采用了两种处理方式,
厨房视角我们采取圆弧形,把梁做柔化处理,
客厅视角横梁保持横平竖直,与洄游动线的柜体形成呼应,
日式极简的视觉感受。
非常直观的客厅沙发和背景墙处理,
利用原建筑结构深度采购沙发,背景墙采用了与全屋木饰面一致的护墙,
增加了背景的层次感和丰富性,灯带藏于顶面打造日式风的温馨。
阳台包进客厅后留下一个垛子无法拆除,
设计师给它好好的利用起来了~~,
基层+宝格丽岩板饰面,让普普通通的开放式置物架高级起来,
不管
是与黑色系沙发还是日式原木饰面都很好的融合
在一起,
超大的落地窗让你在室内也可以尽情享受自然的呼吸。
电视背景墙与主卧门、阳台建筑承重墙体形成整体视觉,
80方的家客厅也极舒服。
吊轨移门很好的贯通了客厅与主卧,空间之间可以自由穿梭。
主卧兼顾书房和休憩功能,
日常跟父母同住,想跟朋友聚会或者一个人呆着的时候就来这个家,
木工师傅的好手艺给最后的完成度打好坚实基础,
床尾和床侧两组收纳柜,足够收纳一个人的换季所需。
这条走廊是洄游动线形成的必要条件,
除了承重柱,两侧都是收纳柜以及藏于结构中的口袋移门,
顶面弧形造型给空间更多的层次变化,
通过口袋门穿越到每个空间都有仪式感。
走出主卧,走廊的隐形门后就是卫生间,
小小卫生间做了三分离,
台盆够大收纳够足,
下沉式淋浴房干净利落,足够宽敞,
马桶上方还有内衣洗衣机,方便分类洗涤。
走廊尽头就是次卧,墨菲床方便有人留宿的时候临时使用,
鱼骨拼的地板自然的将视觉延伸,
温馨自然的居家空间尽显。
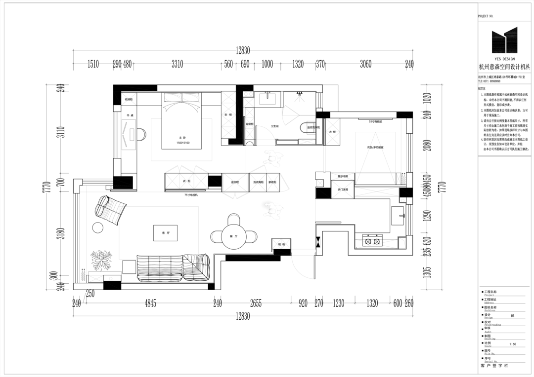
平面布局图
项目名称|
美都雅苑
项目地点
|
杭州
项目面积
|
80平米
设计机构
|
意森空间
服务方式
|
全案设计+全案落地服务
2
原木系松弛栖居 | 意森设计
杭州兴议家园130㎡精神角落
━
俗话说,吾心安处是吾家,反之亦然,吾家亦是吾心安处,被无以言说的孤寂围困之时,家是能让灵魂得到抚慰的空间。遇到一个有着丰富精神世界的屋主,设计师最希望便是以妥帖的设计,为他构筑现实生活中的精神角落。本次项目,秉承屋主对日系美学的偏好,设计师以原木为基底,利用带着屋主印记的生活物件点缀着整个空间,将家的『松弛感』于细微处徐徐铺开。
人生路上步履不停,为何总是慢一拍--是枝裕和·《步履不停》
在外总是步履匆匆,回到家后为何不可慢一步。下沉式玄关设计,是日式居所最为经典设计思路之一。利用视觉空间的变化,将生活节奏自然而然放缓,进门之后,换上居家鞋成为再自然不过的一件事。
与其因为找不到想做的事而焦躁不已,不如开始做些具体的事。--大森立嗣·《日日是好日》
如果说玄关的松弛是让归家的人儿慢下来,那客厅的松弛则是居于其中,随处都是家的『沉浸感』。
设计师将屋主的个人爱好都融合在这一方小天地中,令其充分享受一人独处时的自在,是不必看见自己为他人所见的自在,是可以坦然接受孤独情绪的自在。
如同德语里特有的词汇——Waldeinsamkeit,在森林里孤身一人的感觉,孤独和自然合二为一。
大面积的原木和抬高的地台设计,将客厅与阳台两个空间交错折叠在一起,树影的斑斓与光线的变化,让整个空间充满自然、静谧的侘寂美感。
无需电视背景墙的繁杂,一整面书墙带来日式文艺的慵懒氛围。
诚如赫尔曼·黑塞所说,世界上任何书籍都不能带给你好运,但它们能让你悄悄成为自己。那来到这的好友们,也可以从一排排的书籍里,一瞥屋主的精神世界。
书墙上方预埋了投影仪轨道,夜色开启、放下幕布,整个空间瞬间变成了私人影院。
居一方天地,看世界变化。
是一夕千念、流绪微梦;是雪泥鸿爪,恍然如梦。
黑胶唱片、浮雕装饰,落地灯盏……
软装皆是屋主喜欢的小物件。
器物之美终归于心。以喜欢的物品填满日常空间,以此掌握自己的生活轨迹,也可提醒自己不会跑偏太远。
自然的隔断、丰富的层次、光影的交错,细微末节处都是屋主所追求的生活美学,也透露着念、境、美的日式洗练哲学。
我认为这个世间的一切,都有可以诉说的故事。即使是阳光和风,也可以听到他们的故事。--河濑直美·《橙沙之味》
我们对生活的热情,很多时候都跟食物有关。对一茶一饭的专注,本身就自带治愈现实的魔力。就餐区氛围的打造更让美食带来的幸福感变得郑重其事。从设计风格和空间语言上,就餐区并未与客厅割裂开来,目之所及都延伸着屋主的美学态度。
以木为底,以大理石为面的水吧台,适合独处时的清酒小酌,也适合老友来时的畅快一聚。
而餐边柜一侧的展示柜,则陈列着屋主多年珍藏的老相机,摄影是让瞬间变成永恒的魔法,相机本身的存在便是一段段故事所在。
厨房是最寻常的厨房设计,只是在色调上保持了原木和白色的搭配。但随着屋主的入住,这里也会变得非常有可诉说的故事。就像日本经典美食影片《橙沙之味》的另一句台词,“吃到好吃的东西,就微笑吧。”
我们都在用各自的方式拒绝乏味的人生,所有的坚持都会成为奇迹。--是枝裕和·《奇迹》
游戏桌,懒人沙发,杂志铺是书房兼娱乐室的核心元素。书房门采用了隐形门的设计,和客厅整面书墙融为一体。门里门外,都是所爱。屋主最喜欢的火车模型和铁道机车杂志均收纳于此,在这打发时间时,因为有怡然自得的爱好,独居并不寂寞。
尽
管也有消沉的时候,然后我还是过得很好。--宫崎骏·《魔女宅急便》
卧室的零压感更让人不自觉地全身心放松下来。作为单身男性的房间,也是尽可能进行了储物空间的设计,希望把衣物有序归置。
暖黄色调的床头灯将主卧的温馨感拉满,温温柔柔的色调或许能抚平深夜时的一些情绪小emo。
当然,也没什么比泡澡更能解乏放松了。小面积卫生间也能通过合理的空间布局实现泡澡自由。
选择方形的亚克力浴缸,好看更好打理。
这一次不管怎么样都没关系,因为我喜欢的是那个追逐着你的自己--今敏·《千年女优》
多功能房更加秉承着“一切化繁为简”的原则,只进行了储物柜的设计,保证收纳功能性的同时不会有任何压力感。给未来足够的升级空间,等时机成熟,就将化身次卧或者儿童房。目前也是屋主另一个精神角落,用来下棋、冥思,与自我对话。
日式阳台与多功能相连的生活阳台,承担着日常生活的必需功能。
平面布局图
项目名称
|
兴议家园
项目面积
|
130m²
设计机构
|
意森空间
工作范围
|
全案设计及落地
如需对接设计机构
/
snsjlm502
延伸阅读
━
Private Home | 当中古遇上东方
私宅设计 | 意境东方,光影与空间的诗意对话
13693232461
客服
消息
收藏
下载
最近































































