查看完整案例

收藏

下载
张馨设计
时光|混搭
家是一首轻柔的诗,藏着孩子的笑声。
构筑一个家,让孩子无忧快乐长大,是身为家长最幸福的事情。这次我们有幸与屋主共同打造四个孩子的梦想城堡,融合大人品味及小孩喜好,充满童趣又不失优雅,让每个人都有属于自己的一方天地。
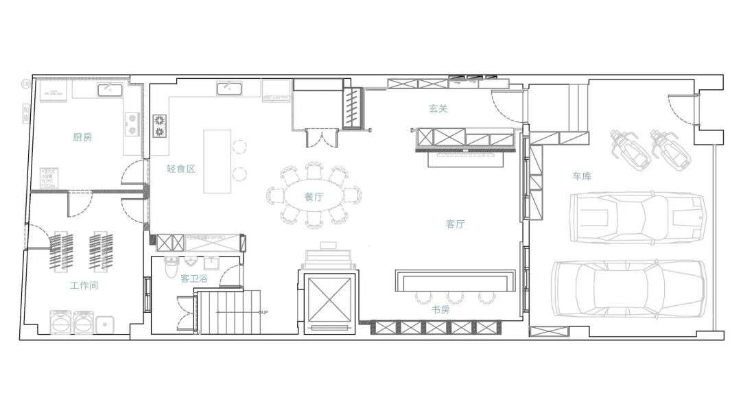
一楼
孩子们一边吃着早餐,一边你一言我一语地跟妈妈分享昨晚的梦境;爸爸趁着出门前的空挡快速回了几封邮件,孩子时不时跑过去撒个娇,笑声在这里流动着。
1
客厅
客厅的电视墙我们特别选用了特殊漆,在整体灰色为基底的空间中,透过漆面细致的肌理与纹路,为场域跳脱出独特的层次与质感。
书房
横厅的设计中,书房的量体相对突出,我们希望它能在视觉上稍作退隐,不喧宾夺主。因此书桌与柜体皆采用黑色系,使其自然融入空间背景,同时透过深色调搭配金色元素,为书房增添一丝精致与沉稳的质感。
餐厅
屋主原本的黑色石材墙面积相对较大,我们特别为它加上收框设计,不仅跳脱原有色调,也让这个区块更具层次感与精致度。下方摆放着钢琴,每当琴音响起,这面墙便成了家的舞台背景,让日常的练琴时光多了几分艺术氛围。
我们新增了一个收纳空间,不仅完美贴合原有柜体的外观,也巧妙增加了储物容量,瓶瓶罐罐、方便面、罐头等杂项都有了专属归处,让整体空间更整洁有序。
屋主日常下厨时,不再需要东翻西找,伸手就能拿到调味品,来访的亲友看到都想为自家做一个同款收纳空间。
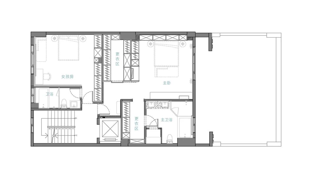
二楼
主卧里柔和的灯光洒满整个空间,夫妻二人静静地坐着聊着天。隔壁儿童游戏间传来孩子们的笑声和玩具轻轻碰撞的声音,仿佛一首温柔的童谣,陪伴着整个家。
2
主卧
床头设置了柜体,但我们刻意弱化它的量体感,让色彩顺着壁漆延展、融入背景,不突兀也不压迫。考虑到屋主偏好带点精致与亮点的元素,我们在一侧加入了深色木皮柜体,为卧室增添一抹沉稳优雅的层次感。
衣帽间
更衣间一侧采用系统柜搭配成型门板,另一侧则是木作柜体,作为屋主的展示与收纳区域。我们几乎在每一层收纳空间都配置了灯光,搭配玻璃隔层,提升陈列物品的质感与氛围感。
游戏室
我们在系统柜中加入了木作柜体,成为亮点。为了避免把手的碰撞,设计了圆形的嵌洞,虚实圆圈结合像极了可爱的起士蛋糕,为空间增添了童趣。
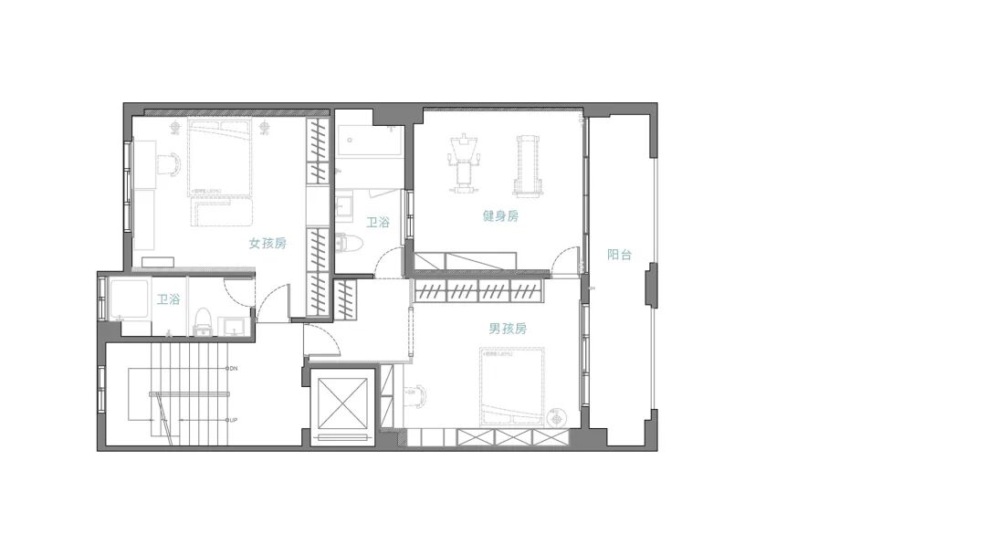
三楼
屋主踏着跑步机,一边听着音乐,一边看窗外随风摇曳的树影。偶尔孩子们会跑来,在这里翻跟头、嬉笑打闹。
3
女孩房
我们特别将收框设计成圆弧形,床头区域恰好留有一个适当的深度空间,因此也用圆弧线条呼应整体,宛如一道彩虹。背墙则铺贴了充满活力感的小鹿主题壁纸,为空间注入了生动且童趣盎然的气息。
男孩房
大部分柜体我们选用了温润的木皮色,再以灰蓝色点缀其中,为空间增添一抹柔和又沉静的层次感。
健身房
由于健身房屋顶略带斜度,我们顺势营造出小木屋的氛围,特地挑选了带有节眼、质感自然的木皮,让空间更有温度与放松感。
四楼
大女儿窝在窗边的角落,手里捧着一本最近喜欢的漫画,偶尔轻轻翻页,偶尔抬头望向窗外。
4
女孩房
大女儿的房间以灰色为主调,但不是单一的灰,而是有层次、有变化的灰。像是墙面的灰是柔和雾感的漆面,柜体则选用带有织纹的灰色材质。透过不同肌理之间的细腻对比,让空间的灰色调更显丰富与质感。
有首歌这样唱:“当你觉得外面的世界很精彩,我会在这里衷心地祝福你……当你觉得外面的世界很无奈,我还在这里耐心地等着你。”作为父母的盼望与期待,都寄托在这个充满爱的家中,陪伴彼此度过无数幸福的时光。
设计风格|美式、现代
项目面积|554m²
设计公司|瀚观室內装饰有限公司
CYNTHIA
高级·美式·梦想
【原创设计|实景拍摄|严禁盗图】
客服
消息
收藏
下载
最近







































