查看完整案例

收藏

下载
在城市的喧嚣中疲惫地周转
人口密度的压抑与快节奏的工作
如同无形的枷锁
束缚着人们的灵魂
于是
人们渴望寻找一片净土
让紧绷的神经得以松弛
让疲惫的身心得以休憩
……
寻找那份宁静与安逸
感受生活的真实与美好
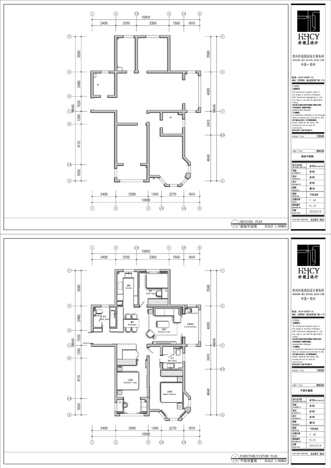
Layout Plan
平面布置图
简洁而开放的空间布局
避免过多的隔断和几余的家具
尽量保持整个空间通透和流畅
门厅
Lobby
客厅、
餐厅
Living Room、
Dining room
全屋没有过多复杂抢眼的色彩
以温柔的奶油色为主基调
搭配视觉上软而柔的海绵沙发
舒适治愈
在硬装的基调上延伸奶油色系配色
打造奶乎乎的云端家居氛围
让空间如云朵般柔软
用自然之色
填补自然而然的生活
公共空间的门都选用了隐框门
可以跟墙面融合统一
无主灯的设计
和一些氛围灯
更满足屋主想要的温馨感
也富有饱满的层次对比
厨房
Kitchen
原始厨房偏小
改变原始布局
厨房设计两联动透明玻璃滑门
无论打开/关闭整个厨房还是能和客餐厅一体
空间通透,厨房的高柜一直延伸到餐厅
增加了餐边柜的功能
主卧室、主卫
Master bedroom、Main guard
主卧室在软装色彩上以卡其色为主色调
选择同色系的床品
加上灯光营造出氛围感
让原本色彩的空间层次变得更丰富
次卧、外卫
Girls' room、
Boys' room
次卧空间不设限
让生活多一点松弛感
卧室空间的颜色相互转换
营造干净的睡眠空间
让人贪恋的季节和慵懒的卧室
言语末
家是我们的避风港
亦是极大的包容之所
它不仅是容纳琐碎日常的盒子
更多是家人之间延伸各种可能及欢乐的地方
是家人之间情感的交融之所
私宅设计令人着迷的地方
在于它对居住者的故事和情感的无限还原
我们面对业主常常避而不谈风格相关的问题
比起定义一个空间的风格
我们更愿意去描述
住在里面的是一个怎样的人
一个怎样的家庭
每位家人有着怎样的爱好、经历及关系
与其“设计”一个家
不如呈现一个家
构建一个诗意的居住空间
专注设计
我们一直在努力
加油吧,朴筑设计
··· ···
项目名称 /现代奶油风
Project
name / Modern cream style
主案设计 / 郝书新
Design director / shuxin HAO
设计机构 / 朴筑设计
Design company / PUZHU DESIGN
项目坐标 / 江苏·常州
Project coordinates / Changzhou, Jiangsu
项目类型 / 私宅
Project type / Private residence
项目面积 /140m²
Project area / 140m²
设计时间 / 2023.01
Design time /January 2023
拍摄时间 / 2023.11
Shooting time / November 2023
/朴筑(
常州)
设计顾问有限公司/
郝书新
朴筑(常州)设计顾问有限公司 主理人/设计总监
关于朴筑设计
朴筑设计是一家活跃在常州
辐射全国的专业室内设计公司
我们专注设计,做有情感的空间
力争为每一位客户量身定制极具气质的个性化室内空间
朴筑设计从生活出发来设计
关注人本身对空间情感、生活方式以及居住环境的需求
让人们从设计中感受到自由度/安全感/舒适与愉悦
让设计来引导生活,赋予空间温度和情怀,传递不同的生活方式
我们始终坚持设计创意的落地,力图让品质设计还原到生活场景
我们
也
始终坚持创造极具活力的设计氛围,用心服务
坚持用自己的服务和设计来打动客户
让客户感受不同的设计体验以及更多设计服务背后的人文精神
PUZHU 朴筑设计
客服
消息
收藏
下载
最近






























