查看完整案例

收藏

下载
人与生活的相处尺度
是相见两欢
彼此契合
空间的构建逻辑
在居者的型格里寻找线索
内心足够丰盈
便只需简单勾勒
热烈里的清欢
是恰如其分的自在哲学
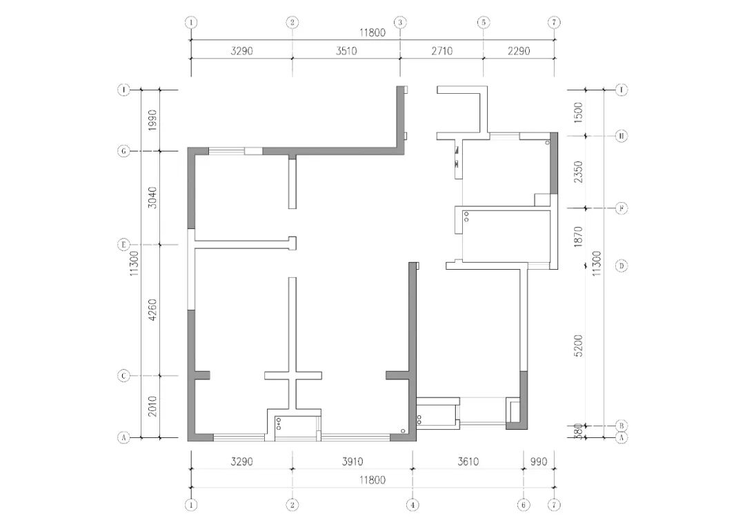
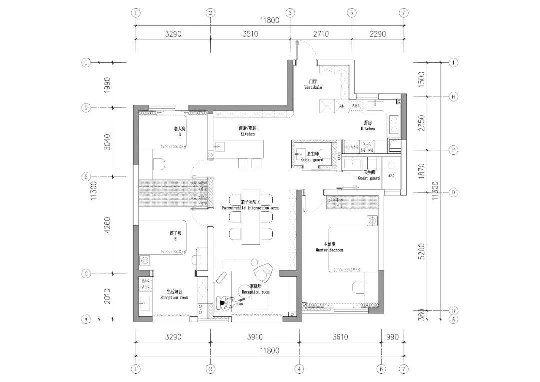
01
Layout
Plan
本案的改造
是以满足提升家庭学习氛围
以及家庭成员间的交流和沟通
那么
打破空间的限制
去客厅化设计优势
被放大体现出来
二孩空间下
极限空间里增加了一个卫生间
极大释放其功能性
满足早高峰需求
餐、客、阳台颠覆性改造
弱化客厅
的存在感
满足交流、学习、休息的多功能要求
02
Family
Hall
公共空间里
打破空间的限制
弱化功能分区
根据需求布置
西厨水吧、简餐
大长桌上的亲子学习、互动
简易沙发的亲子娱乐休闲
多方面打造公共空间
合理利用 增加互动
03
Home entry
Kitchen
一扇内嵌移门
让厨房空间
可闭合可开放
满足开放式厨房的自由“浪漫”
又解决实际使用中的油烟问题
当然小空间的开放式设计
不止在自由中透露温情
也更能满足精神上情感的交互
以及功能需求上的极大提升
项目名称 / 简白
Project
name / Simple White
主案设计 / 郝书新
Design director / shuxin HAO
设计机构 / 朴筑设计
Design company / PUZHU DESIGN
项目坐标 / 江苏·常州
Project coordinates / Changzhou, Jiangsu
项目类型 / 私宅
Project type / Private residence
项目面积 /108m²
Project area / 108m²
设计时间 / 2023.07
Design time /July 2023
/朴筑(
常州)
设计顾问有限公司出品/
郝书新
朴筑(常州)设计顾问有限公司 主理人/设计总监
关于朴筑设计
朴筑设计是一家活跃在常州
辐射全国的专业室内设计公司
我们专注设计,做有情感的空间
力争为每一位客户量身定制极具气质的个性化室内空间
朴筑设计从生活出发来设计
关注人本身对空间情感、生活方式以及居住环境的需求
让人们从设计中感受到自由度/安全感/舒适与愉悦
让设计来引导生活,赋予空间温度和情怀,传递不同的生活方式
我们始终坚持设计创意的落地,力图让品质设计还原到生活场景
我们
也
始终坚持创造极具活力的设计氛围,用心服务
坚持用自己的服务和设计来打动客户
让客户感受不同的设计体验以及更多设计服务背后的人文精神
PUZHU 朴筑设计
客服
消息
收藏
下载
最近












