查看完整案例

收藏

下载
2025-08-13
以物抵心,生活当与美同行
Use things to match your heart, and live with beauty
项目地址 / 丽水·辰舜澜庭
Project Address/Lishui Chen Shunlanting
项目面积 /1300+㎡
Project area / 1300+㎡
负责团队 / 名震设计团队
Responsible team / Mingzhen design team
本案风格是新中式×宋式美学,
别墅化作「东方雅集」现场🌿
木构藏宋风筋骨,水墨晕染新中式诗意,每处空间皆有「格物致知」的哲思 ——
客厅纳山水,卧室藏竹影,茶室承宋式清简,浴室融现代松弛。
以「宋的雅、新中式的韵」,重构别墅秩序,让传统美学不再是符号,而是「可触摸、可沉浸」的生活日常,每一步,都像走在宋画里的归家路✨
When the new Chinese style encounters Song style aesthetics, the villa turns into the "Oriental Elegant Collection" scene 🌿 Wood conceals Song style muscles and bones, ink and wash conceals the new Chinese poetry, and every space has the philosophy of "studying things to achieve knowledge"— The living room contains landscapes, the bedroom hides bamboo shadows, the tea room carries the Song style simplicity, and the bathroom blends modern and relaxed. Mingzhen design uses "Song's elegance and New Chinese style rhyme" to reconstruct the villa order, making traditional aesthetics no longer a symbol, but a "touchable and immersive" daily life. Every step is like walking in Song's paintings✨
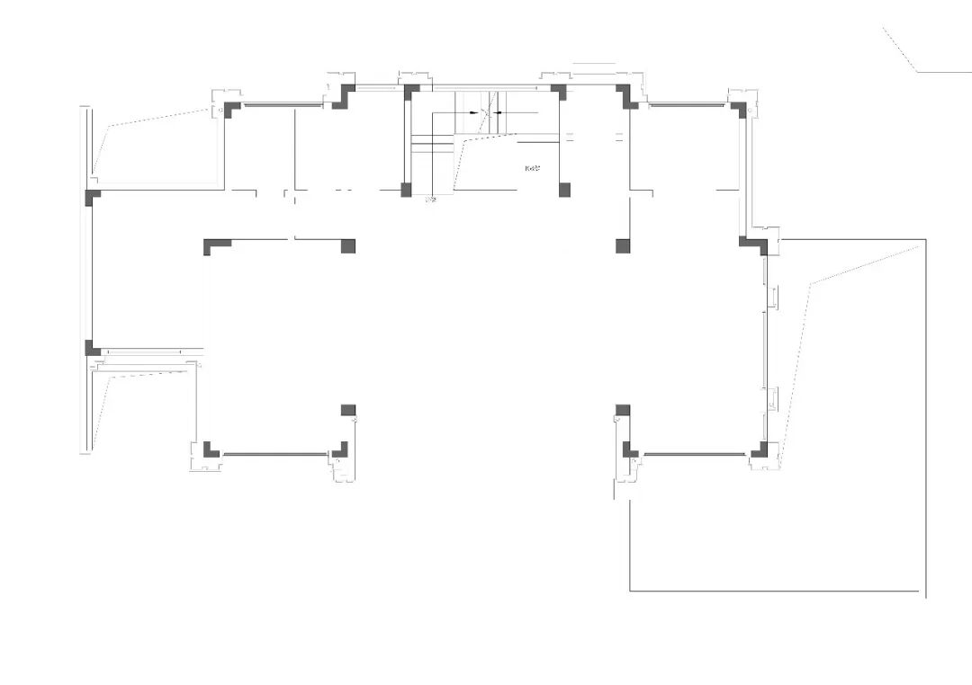
·Original plan
原始
系统图
-2楼
-1楼
一楼
二楼
三楼
四楼
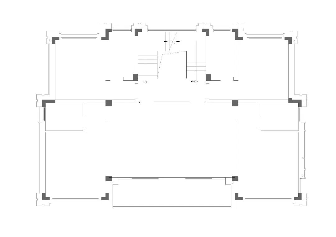
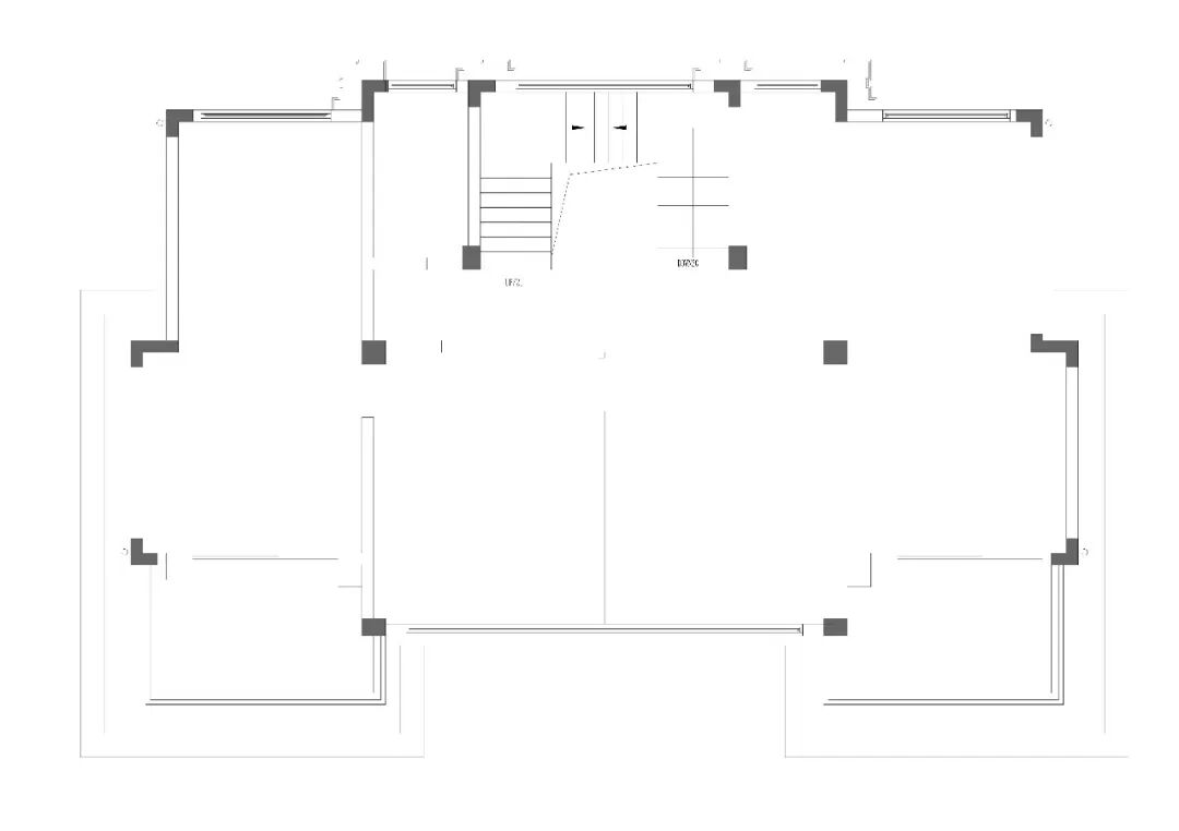
· Planar Graph
平面图
-2楼
-1楼
一楼
二楼
三楼
四楼
· Entrance
玄关
雅棕木柱如古建檐角,撑起归家仪式;墨绿岩板似山水长卷,晕染自然气韵。弧形拱门是「藏与露」的东方智慧,将庭院景致借玻璃幕墙框成画,让归家路成「步移景异」的诗意漫游
The elegant brown wooden pillars are like the eaves corners of ancient buildings, supporting the return ceremony; the dark green stone slabs are like long scrolls of landscapes, shading the natural charm. The arc-shaped arch is the oriental wisdom of "hiding and dew", and the courtyard scenery is framed into a painting with glass curtain walls, making the way home a poetic wandering of "moving scenery and changing scenery"
· living room
地下室
以新中式之魂,重塑地下空间:
挑高格局 + 山水纹石材背景墙,天然纹理如水墨长卷,借传统山水意境拓宽视野,营造 “纳千顷之汪洋” 的气韵。
Reshape the underground space with the soul of the new Chinese style: High-end pattern + landscape stone background wall, natural texture is like a long scroll of ink, using the traditional landscape artistic conception to broaden your horizons and create a "popular ocean that covers thousands of acres".
深木饰面配圈椅、罗汉床等雅致家具,榫卯工艺藏东方智慧,沉稳色调晕染高级氛围,复刻中式厅堂的礼序。
层叠吊灯如宫灯垂瀑,光影透过纱质灯罩,交融间让传统符号与现代材质共绽魅力
Deep wood veneer with round chairs, Arhat beds and other elegant furniture, mortise and tenon craftsmanship hides oriental wisdom, calm tones and high-end atmosphere, replicating the etiquette order of Chinese-style halls. The stacked chandeliers are like palace lanterns hanging down the waterfall. The light and shadow pass through the yarn lampshade, blending the traditional symbols and modern materials to create charm.
· Tea room
茶室
新中式茶室,演绎「隐奢」美学,木构格栅如琴瑟和鸣,山水挂画晕染墨韵,阳光透过窗棂,与茶台、圈椅共织静雅。以现代手法重构东方形制,让茶室成为 “可观、可品、可居” 的精神场域,在喧嚣都市,辟一方「慢下来」的诗意天地🍵
The new Chinese-style tea room interprets the aesthetic of "hidden luxury". The wooden grille is like a harmonious sound of the piano and zither, and the landscape paintings are smudged ink. The sun shines through the window lattice, which is woven with the tea table and the ring chair. Reconstructing the oriental structure with modern techniques, making the tea room a spiritual field that is "obsessed, chewable and habitable", and in the hustle and bustle city, it creates a poetic world that "slows down" 🍍
· Water
水吧
水吧设计,深木作骨,大理石为肌,山水纹吧台似天然水墨长卷🎨 暖光漫染,藏酒格有序陈列,传统雅韵与现代精致交融,于一方天地,营造静谧高级的品酒赏味空间
New Chinese-style water bar, deep wood is made of bones, marble is the skin, and the landscape bar is like a natural ink and long scroll 🎨 The warm light is dyed, and the hidden wine grid is displayed in an orderly manner. The traditional elegant charm and modern exquisite blend, creating a quiet and high-end wine tasting space in a world.
· Audio and video room
影音室
影音室,以深棕为主调,木艺家具勾勒古韵,弧面造型柔化空间边界。巨幕藏纳光影万象,灯带晕染雅致氛围,传统形制与现代影音科技相融,打造 “视听 + 品赏” 双享的私属场域,在沉浸式观影里,重拾东方美学的松弛与沉浸✨
The audio and video studio is mainly composed of dark brown, wood furniture outlines the ancient charm, and the curved shape softens the boundaries of the space. The giant screen hides all the light and shadow, and the light strips are stained with elegant atmosphere. The traditional shape and modern audio-visual technology are integrated to create a private field of "audio-visual + appreciation". In immersive viewing, regain the relaxation and immersion of oriental aesthetics✨
· Zhongtang
中堂
深色实木家具勾勒典雅轮廓,雕花细节藏着东方底蕴,搭配简约线条与柔和灯光,古韵新颜相得益彰✨
格栅、窗棂借景造境,将室外山水悄然引入,让空间流动着自然禅意🍃 不刻意堆砌符号,却处处透着中式美学的温润与留白,把家变成可栖居的东方意境,在喧嚣中辟一方宁静归处,这才是新中式设计的动人魅力~
Dark solid wood furniture outlines the elegant outline, carved details hide the oriental background, and are matched with simple lines and soft lighting, and the ancient charm and new look complement each other✨ Grilles and window lattices create a landscape, quietly introducing outdoor landscapes, allowing the space to flow with natural Zen🍃 Do not deliberately pile up symbols, but they are filled with the warmth and white space of Chinese aesthetics, turning the home into an oriental artistic conception that can be lived in, and opening a quiet place in the hustle and bustle. This is the charming charm of the new Chinese design~
· Zhongtang
餐厅
在这套新中式餐厅设计里,能看到东方美学的现代演绎。木饰面的温润、大理石的奢雅,借线条与材质对话;圆形餐桌串联起空间聚合力,垂坠灯饰如艺术孤品,将光影揉成诗意。
借景窗把自然框作动态画,传统形制(圈椅、格栅)与现代尺度碰撞,消弭时空边界。每一处对称与留白,都藏着 “less is more” 的设计哲思 —— 让用餐成为沉浸式美学体验,在烟火日常里,构建独属于东方的高级感场域 。
In this new Chinese restaurant design, you can see a modern interpretation of oriental aesthetics. The warmth of wood veneer and the luxury of marble are used to communicate with the material; the circular dining table connects the space to aggregate, and the draped lighting is like an artwork, which turns light and shadow into poetry. Use the scenic window to draw the natural frame dynamically, and the traditional shape (circle chairs, grilles) collide with modern scales to eliminate the boundaries of time and space. Every symmetry and blank space hides the design philosophy of "less is more" - making dining an immersive aesthetic experience, and in the daily life of fireworks, a high-end sense field that belongs to the East is built.
· Elderly roomt
长辈房
深木勾勒空间筋骨,山水墙画晕染诗意,吊灯似宫灯垂落,融古典与现代。床品素净,配饰简雅,每处细节都在诉说「删繁就简」的东方美学。在这里,喧嚣被关在窗外,身心陷入中式松弛
Deep wood outlines the muscles and bones of space, landscape wall paintings are painted with poetry, and chandeliers are like palace lanterns, blending classical and modern. The bedding is simple and the accessories are simple and elegant. Every detail tells the oriental aesthetic of "simple it by deleting the complexity". Here, the noise is locked out the window, and the body and mind are trapped in Chinese style.
·Master bedroom
主卧
主卧以新中式为魂,浅棕墙饰如绢,水墨竹影添雅。木作温润,线条简素,床品融现代舒适与传统意韵。嵌入灯带晕染柔光,巨幅窗纳自然,让睡眠区成「可观、可眠」的东方秘境。用减法美学,将喧嚣隔绝,把中式松弛,酿成每晚的静谧沉醉🌿
The master bedroom is based on the new Chinese style, with light brown walls decorated like silk, and ink and bamboo shadows adding elegance. The wood is warm, the lines are simple, and the bed is decorated with modern comfort and traditional charm. The embedded light strip is stained with soft light, and the huge windows are natural, making the sleeping area a "observable and sleepable" oriental secret realm. Use subtraction aesthetics to isolate the noise and slack Chinese style, and make the nightly quiet intoxication🌿
·Daughter's room
女儿房
以素色为底,竹影墙饰晕染诗意,木作温润,光影柔和。床品简约中藏雅韵,配饰精巧点东方。在这里,喧嚣褪去,身心归宁静,每一寸空间都流淌着「删繁就简」的中式哲思,是休憩,更是与东方美学的温柔对谈✨
With plain colors as the base, the bamboo shadow wall is decorated with poetic charm, wood is made of warm and light and shadow. The bedding is simple and elegant, and the accessories are exquisite and oriental. Here, the noise fades away, the body and mind return to peace, and every inch of space flows with Chinese philosophy of "simplifying the complexity". It is a rest, and a gentle conversation with oriental aesthetics✨
·Children's room
儿童房
当新中式基因融入现代极简,卧室成了「侘寂美学」的容器✨
浅棕墙饰如素帛,隐去繁杂;几何顶灯洒下柔晖,消解边界。床头纹理暗涌东方意,巨幅窗揽进自然,让睡眠区与光影、绿意共呼吸。
When the new Chinese gene is integrated into modern minimalism, the bedroom becomes a container for "wasabi aesthetics". ✨ Light brown wall decoration is like plain silk, concealing complexity; geometric ceiling lights sprinkle soft lights to eliminate boundaries. The texture of the head of the bed is under the oriental meaning, and the huge window embraces the nature, allowing the sleeping area to breathe together with the light and shadow and green.
@版权声明
本文为名震设计版权所有,欢迎转发朋友圈
0571-88178289
名震设计
18969004599
1549580361
杭州市城北万象城润城置地中心3206室
扫码关注
扫码添加
A
bout Us
关于我们
- 我们提供设计、施工、主材、软装、定制等一站式服务 -
400+服务客户
绿城·馥香园 | 滨江集团·壹号院 |
理想四维地产·
理想臻品 |
中建申杭
·学成府 |
杭州金宇
·云水山居 | 杭州禹翔·望林府 | 绿野春天 |
华润置地
·杭宸未来中心 | 世贸丽晶城 | 滨江·臻奥院 | 西溪·远洋公馆 | 方兴置业·黄龙金茂悦 | 东海闲湖城·琥珀湾 | 东海闲湖城·栖霞湾 | 东海闲湖城·玉屏湾
s
ervice Process
服务流程
往期案例
客服
消息
收藏
下载
最近
















































































