查看完整案例

收藏

下载
随着教育理念的推进,幼儿空间早已不再局限于单一的教室,而是成为一个灵活、多元、可被探索的环境。幼童对于环境的敏感度极高,他们用眼睛去捕捉色彩,用手掌去触摸,用心去感受氛围。因此,
我们以
拥有丰富色彩的
「森林」为核心语汇,将拱形、圆形等象征树冠的元素抽象化融入设计,搭配原木、绿植与柔和的色调,营造出一
个流畅
、温馨、清新的童年世界。
这是一片专属于孩子们的童梦森林。推开入口的那一刻,眼前绿意盎然的空间,仿佛进入一个奇幻世界。这里有高大的树在守护,也有小动物陪伴嬉戏,每个角落都藏着惊喜。孩子们在此奔跑、探索、创造,笑声回荡在森林间,纯真而自由。这片森林不仅是游戏的场域,更是生命成长的乐园,让孩子们在快乐与好奇心的滋养下,一点一滴地体验属于童年的美好。
入口公共区:森林的第一印象
入口是一道由绿植搭起的拱门,宛如森林的门扉,高低错落的植栽交织出一幅生机盎然的绿色画卷,绿叶间点缀着紫色与黄色的花朵,如星辰般闪烁,让整个门廊散发着自然的清新气息。
柔和的曲线如同双手张开的拥抱,传递出安全与亲切的讯号。当孩子们走近时,耳边似乎能听见风穿过枝叶的低语,嗅到泥土与花草交织的气息,仿佛整座森林正在轻声迎接他们的到来。
在这样的氛围中,入口不仅是一道通往室内的门,更像是一个奇幻旅程的起点。孩子们在跨入的一瞬间,便踏上了一场属于自己的冒险之旅,期待着与未知的故事、朋友与惊喜相遇。
大厅设计:森林的延续
大厅的设计延续了入口的自然氛围,让孩子们从踏入的第一步起,便浸润在一片生机盎然的绿意之中。为了消除建筑结构的突兀,我们将原本冷硬的柱子转化为「造型树」,树干般的线条自然延伸向上,与天花板的设计交织成一片森林意象。孩子们在这里不会感受到压迫,反而会觉得自己正走进一片有树、有光、有生命的空间。
阳光透过大面窗户洒落下来,光影在木质地板上流动,与植物的绿意交融,让整个大厅宛如有呼吸般起伏。这里不再只是单纯的进出口,而是一个能让孩子停下脚步、安心驻留、细心观察的空间起点。它是家与学习的过渡,也是梦想与冒险的序章。
绿植墙蔓延在视线所及之处,搭配玻璃生态缸中细小游动的生命,与温润的木材质感交织,构筑出一条充满生命力的视觉动线。孩子的目光,会自然地随着绿意和光影流转,从脚下延伸到天花,从墙边蔓延到角落,发现无数细节中的惊喜。
家长等候空间:陪伴的温柔时光
在大厅与游戏区之间,设置了一处为家长与孩子的等候区。这里不仅是过渡的角落,更是亲子互动的
空间
。设计灵感源于
“
大树
”
的形态,座位区像是森林里的树荫,为等待的人提供庇护。
错落的圆柱灯模拟林间的光影变化,让整个空间富有灵动感。家长坐在柔软的座位上,陪孩子翻阅绘本,或是静静看着他们奔跑。孩子在这片舒适的氛围里,感受到家人陪伴的安心
,
让
等待不再只是等候,而是一次亲密的相聚。
游戏区:探索与欢笑的世界
在家长等候区旁,是最受孩子期待的游戏区。以滑梯为核心,创造出高低错落的动态空间,让孩子在上下之间体验力量与冒险的乐趣。安全软垫覆盖了地面,确保奔跑与跌倒不会成为伤害,而是成为学习的一部分。墙面设置的互动游戏设备则提供更多选择,孩子们可以自由切换不同的游戏方式。这个空间不仅仅是玩耍,它更是交流、挑战与成长的舞台。
欢
笑声在这此起彼落,编织
出
最动人的森林乐章。
体能活动室:成长的律动
半开放的体能活动室看似简单,却蕴藏着多元的功能。这里为孩子提供爬、抓、吊、跳的机会,帮助他们锻炼平衡感、触觉与协调性。孩子们在这里自由挥洒活力,从跌倒到再度站起,从不敢尝试到勇敢挑战,每一次都是成长的印记。老师们的温柔陪伴,让这份冒险更有安全感
,让
孩子们学会自信与勇敢。
游戏室一侧设置了几扇圆形窗户,宛如一颗颗透明的泡泡,镶嵌在墙面之上。孩子们透过这些窗户好奇地向外张望,仿佛置身在一个漂浮的世界里。光线透过圆窗洒进来,在地面上投下柔和的圆形光影,让空间更具梦幻感。这些泡泡般的窗户,不仅激发孩子的探索欲望,也成为他们与外界互动的新奇媒介。
廊道空间:
成长
的
纪录
走廊不只是通行的过道,而是一条承载童年故事的走线。原木与白色的基调,让氛围由动转静,孩子的脚步在这里慢慢放缓。
每个班级门口都设有换鞋区与展示栏,小小的鞋子
与
手作的作品,记录了孩子日常的点滴。对孩子而言,这些展示是自我表达的舞台;对老师与家长而言,是
陪伴
的见证。生活因此被空间诗意化,让平凡的一天,也闪烁着成长的光芒。
二楼读书角:阶梯上的童趣
在二楼转角的空间里,我们设置了阶梯状的读书角。流线型的设计让空间更具韵律感,高低起伏的阶梯仿佛森林里的丘陵,邀请孩子随意坐下,翻开一本书,沉浸于文字的世界。
这里既是阅读的场所,也是互动的舞台。孩子
可以
并肩而坐,共享一本书
,也可以
各自安静,进入属于自己的幻想。阅读因此不再局限于课堂,而是融入空间的日常,成为生活的一部分。
多功能空间:更多可能的启发
多功能教室
,
结合了音乐与美术,孩子能在镜墙前专注音体训练,也能在大桌面上尽情绘画与创作。墙面展示区,让每一次的努力都有舞台呈现。
积木室透过积木墙设计,让孩子在游戏中训练手眼协调,同时与同伴合作与交流。这些空间不只是功能的延伸,而是启发孩子心灵与想象力的源泉。
生活单元:陪伴成长的细腻设计
托小班(
1-2
岁)
:刚学会走路
的孩子
,需要大量探索却也需要极高的安全感。因此,我们让空间以流畅的弧线贯穿,避免锐角的存在。透明的配奶台与洗手间设计,让老师能随时守护孩子。原木与草绿的搭配,营造出安静却充满生命力的氛围,让孩子安心地迈出第一步。
低矮且圆润的马桶与洗手台,依照孩子的身高比例设计,让他们能轻松使用,同时培养自主生活的能力。厕所的隔间不做完全封闭,而是保留适度的开放与透明性,让老师能随时照看,柔和的灯光与温润的木质元素,墙面点缀着草绿色与自然纹理,让厕所不再是冰冷的功能性场域,而是延续整体空间氛围的一部分,温暖、自然,并充满安全感。
托大班(
2-3
岁)
:
在孩子
感官高速发展的阶段,教室设置了灵活的储藏柜,因应不同课程活动的需求。柔和的粉绿色搭配木质感,清新而活泼,让空间不仅具功能性,更散发着温馨与亲切。这是一个让孩子既能专注学习,又能尽情游玩的天地。
安全防护,柔软的守护
门的开合是潜藏的危险之一,以往常见的做法,是在门边加装包边或护条,避免孩子的小手被夹伤。然而,这次的设计并非仅是加装,而是直接在结构上进行改造。我们将可能造成夹缝的部分挖空,并以整体柔软材质取代,彻底消除夹伤的风险。圆润的边角设计让门的线条更加温和,不再有尖锐或僵硬的感觉,视觉上也更贴近童趣与亲和力。
森林的序曲,室外的探索天地
室外
圆润的弧线与温暖的色彩,带来第一眼的亲切与惊喜。孩子们在进入教室前,或是在尽情游戏之后,都能洗去手上的尘土。抬起头,映入眼帘的是一圈圈如泡泡般的镜面,它不仅倒映着小小的脸庞,也折射出天真笑声里的光影。原本日常的洗手动作,因这份奇妙的设计,变成了一场与自己、与世界对话的游戏。
顺着光影走入园内,孩子们蹲在种植箱旁,将一粒粒种子送入泥土,浇下水的同时,也浇灌着对自然的好奇与爱。四季的更迭,就在这片小小天地里,被孩子们用手心与眼睛真切地记录。
走到东南角,视线忽然开阔起来。高低起伏的草坡,像是森林的地毯,铺展出探索的邀请。孩子们穿梭在「
鼹鼠
洞」中,踏上独木桥,再奋力爬上小丘的顶端。每一次跨越,都是冒险的开始;每一声笑喊,都是童年最真挚的回响。这里没有边界,只有无尽的想象。
户外空间中的大楼梯,巧妙地与游乐设施结合,成为孩子们最喜爱的探索场域。这座楼梯从一楼延伸到二楼,沿途融入了各式各样的游戏元素,不同样式的溜滑梯蜿蜒而下,带来速度与惊喜,攀爬设施错落其间,让孩子们在上下之间锻炼勇气与协调。
在有限的空间,透过巧思的结合规划,让楼梯兼具游乐性与功能性,孩子们在同一个结构中,同时完成移动、游戏与探索。
光影中的乐园与静谧港湾
二楼的平台,是另一个奇幻场域。沙与水交织成童年的乐章,孩子们在其中捏塑城堡、挖掘河道,专注的神情像小小建筑师,用双手打造着属于自己的天地。
沙坑旁是一处半露天的互动游戏场,这里有木质的阶梯平台,孩子们可以随意席地而坐、奔跑、交谈,把它变成一座小剧场,也可以是一个秘密聚会的角落。
而在远一点的角落,教师们也有一片静谧的露台。当夕阳渐渐落下,这里是放松与交流的港湾。
童梦森林不只是孩子们的乐园,也是一个能让师生彼此共鸣、共同呼吸的所在。
童年的梦想起点
童梦森林,并不仅仅是一个幼儿教育空间,
它以自然为灵魂,营造出一片温柔天地,成为童年回忆的起点。
孩子在这里学习、游戏、探索,而家长与老师,也在此一同见证他们的成长。
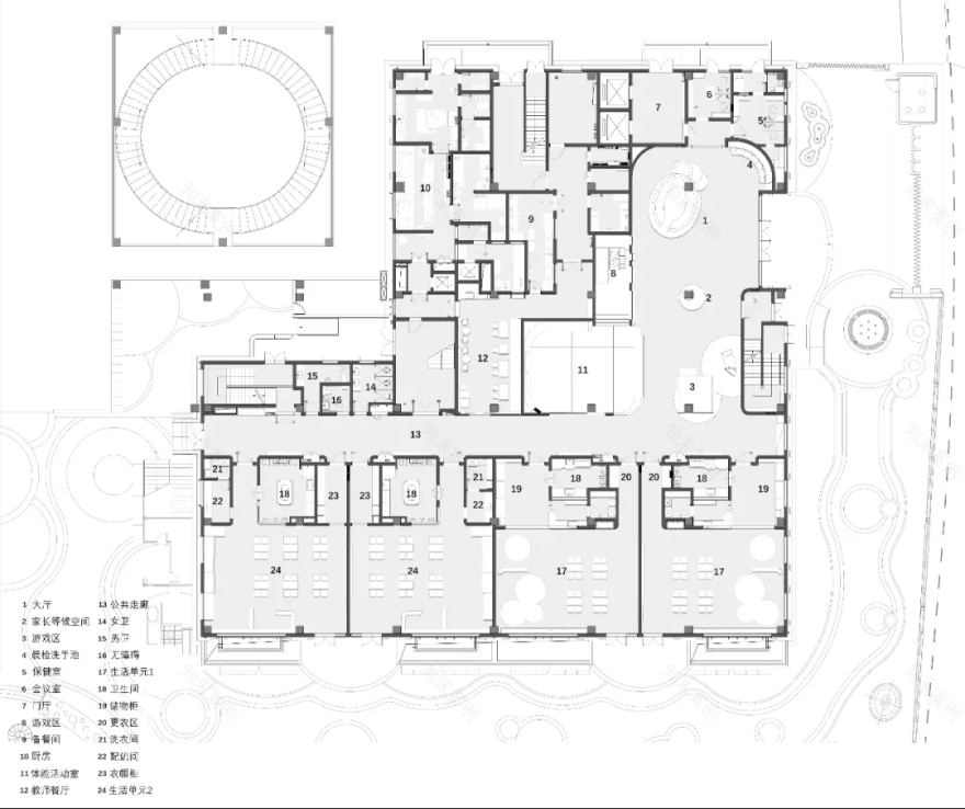
△一
楼
平面图
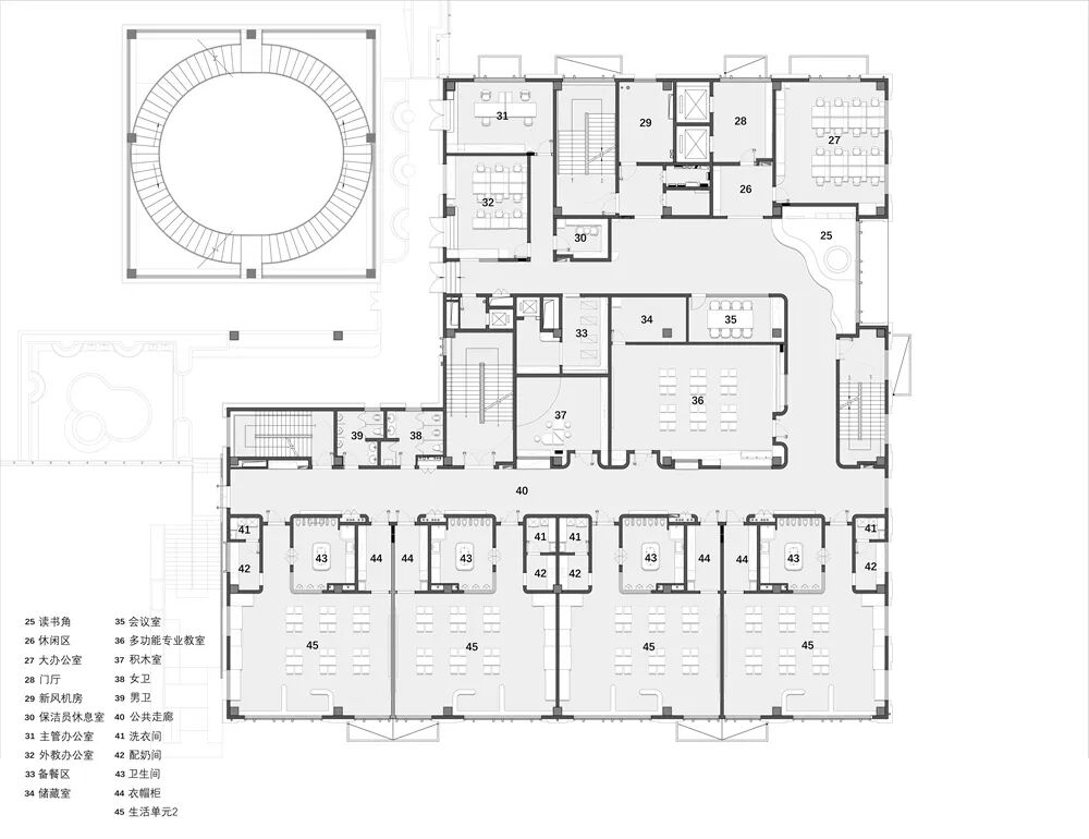
△二
楼
平面图
项目名称:青浦世外幼稚园托育中心
项目地
点:上海市青浦区
设计面积:
3200㎡
设计日期:
2022
年
1
月至
9
月
工程日期:
2022
年
10
月至
2023
年
8
月
客服
消息
收藏
下载
最近





































