查看完整案例

收藏

下载
更多免费图纸
北京密云二层现代别墅
ID 002115
项目概况
项目位置丨北京密云
图纸编号
丨
002115
建筑尺寸丨面宽16m,进深9.3m
建筑面积丨296.00㎡
占地面积丨150.00㎡
官方指导价 | 土建41万
建筑风格丨现代
结构形式丨砖混结构
01.
丨平面布局图丨
户型概况:
2层
/ 5室 2厅 4
卫 1玄关 1桑拿房 1书房 1电竞房 1生活娱乐区 1阳台 1露台 1天台
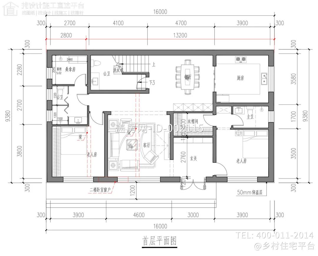
△一层平面图
一
层以休闲功能为主,共设置两间长辈卧室,方便家中长辈日常居住生活需求。玄关的设计可以安放鞋柜储物,方便家人出行。
△二层平面图
二层以居住功能为主,共设置三间卧室。生活区、书房、电竞房的设计满足家人日常的生活娱乐需求。
02
丨建筑效果图丨
△南侧效果
图
建筑为现代风格,整体造型简约大气,配色较为淡雅,搭配深色线条、大量的玻璃材质等现代元素构件,
衬托出建筑入口的凹凸变化。
△西南侧效果图
△东南侧效果图
顶层的西南侧露台上增设室外楼梯功能,使得居住者可上至屋顶平台,体验不一样的乐趣。
△鸟瞰效果
图
设计师在外庭院的西侧规划出休闲平台,搭配东侧的绿植空间,增添了整体的灵动性。
△鸟瞰效果图
03.
丨项目点评丨
适宜地域
南方、北方
适用指数
高
适用家庭
有长辈和孩子,喜欢欧式别墅
别墅户型
6室
、2厅、8卫
图纸内容
建筑、结构、给排水、电气、暖通
乡住旗下盖房网打造
农村自建房行业
公益性平台
为了资源共享,
诚邀全国
自建房施工队、设计师、建材商
扫码进入
农村自建房资源交换群
自建房行业资源交换
推荐图纸如果尺寸不符合
获取AI免费设计
获取更多免费建房施工图纸
图库
客服
消息
收藏
下载
最近












