查看完整案例

收藏

下载
更多免费图纸
河南周口二层欧式别墅
ID 002108
项目概况
项目位置丨河南周口
图纸编号
丨
002108
建筑尺寸丨面宽16.6m,进深9.4m
建筑面积丨257.00㎡
占地面积丨139.00㎡
官方指导价 | 土建36万
建筑风格丨欧式
结构形式丨砖混结构
01.
丨平面布局图丨
户型概况:
2层 / 5室 2厅 2
卫 1厨房 1堂屋 1棋牌室 1多功能房 1露台
△一层平面图
一
层以接待功能为主,设计师将南侧的门厅和客厅进行一体化设计;东侧和南侧各设置一间卧室,满足家人居住待客需求。
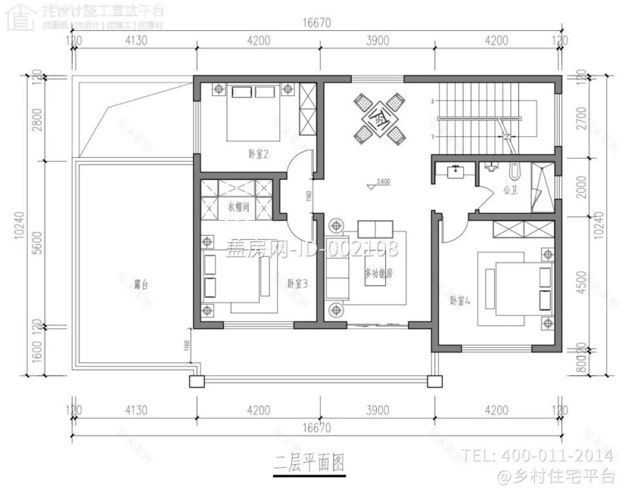
△二层平面图
二层以居住休闲为主,整层设置3间卧室,并设置一间棋牌室与多功能室,满足家人日常的休闲需求。露台的设置为家人提供完美的休闲娱乐场所。
02
丨建筑效果图丨
△南侧效果
图
建筑整体为欧式风格,立面选择浅色作为主色,配合深色窗户形成清新又大气的效果。在建筑底部选择深色搭配墙体,并增加建筑稳重感。
△西南侧效果图
△东南侧效果图
设计师在立面造型上采用简单的线条和窗套线勾勒欧式的经典韵味;建筑选用的材质为经典的大理石与真石漆搭配,西班牙瓦和挑檐的凸出质感,整体风格庄重而又自然。
△东南侧效果
图
露台位于建筑的南侧一角,在满足最佳光照条件的前提下,与院落的绿植景观良好结合,休闲时坐在露台上喝喝茶,便可尽览秀美的自然风光。
△南侧效果图
03.
丨项目点评丨
适宜地域
南方、北方
适用指数
高
适用家庭
有长辈和孩子,喜欢欧式别墅
别墅户型
5室
、2厅、2卫
图纸内容
建筑、结构、给排水、电气、暖通
乡住旗下盖房网打造
农村自建房行业
公益性平台
为了资源共享,
诚邀全国
自建房施工队、设计师、建材商
扫码进入
农村自建房资源交换群
自建房行业资源交换
推荐图纸如果尺寸不符合
获取AI免费设计
获取更多免费建房施工图纸
图库
客服
消息
收藏
下载
最近












