查看完整案例

收藏

下载
更多免费图纸
四川南充三层欧式别墅
ID 000487
项目概况
项目位置丨四川南充
图纸编号
丨
000487
建筑尺寸丨面宽13.2m,进深14m
建筑面积丨457.00㎡
占地面积丨175.00㎡
官方指导价 | 土建82万
建筑风格丨欧式
结构形式丨砖混结构
01.
丨平面布局图丨
△总平面图
户型概况:
3层 / 6室 2厅 6
卫 1厨 1储藏 1书房 1备用间 1阳台 2露台
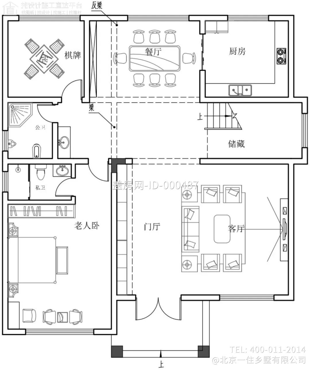
△一层平面图
一
层以接待功能为主,设计师将南侧的门厅和客厅进行一体化设计;东北侧的厨房结合餐厅布局,西南侧卧室套房充分采光,合理的布局让业主享受到更优质的生活。
△二层平面图
二层以居住休闲为主,整层设置2间卧室,并增设书房功能,可供业主及其家人办公学习使用;经楼梯间上来的过厅与挑空客厅相邻,提升室内整个空间的开阔性。
△三层平面图
三层以起居休闲功能为主,南侧设置大面积的露台空间,在丰富多功能性的同时,保证业主及其家人的观景需求。
02
丨建筑效果图丨
△南侧效果
图
建筑整体为欧式风格,立面通过门头、露台和屋顶三部分由浅至深的颜色设计,搭配简约的线条及欧式元素构件,形成错落有致的感觉。
△西南侧效果图
△东南侧效果图
南侧露台搭配欧式深色围栏进行强调装饰,同时大面积的落地窗配合立面凹凸变化,与庭院的绿植景观相呼应。
△鸟瞰效果
图
庭院设计美观实用,整体环境与建筑风格相契合。宽阔的庭院提供了充足的室外活动空间,中部的景观喷泉,搭配停车位、绿植和休闲区域,提升整体的居住体验。
△鸟瞰效果图
03.
丨项目点评丨
适宜地域
南方、北方
适用指数
高
适用家庭
有长辈和孩子,喜欢欧式别墅
别墅户型
6室
、2厅、6卫
图纸内容
建筑、结构、给排水、电气、暖通
乡住旗下盖房网打造
农村自建房行业
公益性平台
为了资源共享,
诚邀全国
自建房施工队、设计师、建材商
扫码进入
农村自建房资源交换群
自建房行业资源交换
推荐图纸如果尺寸不符合
获取AI免费设计
获取更多免费建房施工图纸
图库
客服
消息
收藏
下载
最近















