查看完整案例

收藏

下载
更多免费图纸
山东临沂二层新中式别墅
ID 002107
项目概况
项目位置丨山东临沂
图纸编号
丨
002107
建筑尺寸丨面宽19.1m,进深10.6m
建筑面积丨440.00㎡
占地面积丨252.00㎡
官方指导价 | 土建62万
建筑风格丨新中式
结构形式丨砖混结构
01.
丨平面布局图丨
户型概况:
2层 /
5室 2厅 5卫 1玄关 1厨 1储物间 1茶室 1娱乐室 1书房 1起居室 1露台 1天台
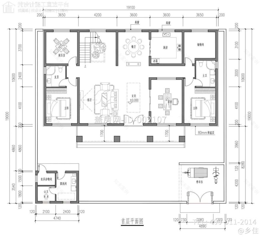
△一层平面图
一层以休闲功能为主,在东西两侧各设置一间卧室。茶室与棋牌室的设计,满足家人日常的待客休闲需求。
△二层平面图
二层以居住功能为主,共有三间卧室。东北侧设置一间卧室套房与露台空间相连,在保证充足阳光的同时也可以在露台空间观景品茗。
02
丨建筑效果图丨
△南侧效果
图
建筑整体为新中式风格。南北两侧
的建筑和屋顶平台形成了三个不同高度的体块关系。墙面和窗户虚实结合,使建筑整体具有丰富的层次性。
△西南侧效果图
△东南侧效果图
深色窗框和木质栏杆突出了建筑细节,增添了建筑的精致感。
△鸟瞰效果
图
屋顶平台设置了阳光房与休闲座椅,丰富了屋顶平台的功能和空间。阳光房与楼梯间相呼应,同时与实体建筑虚实结合,增添了空间丰富度和趣味性。
△东北侧效果
图
03.
丨项目点评丨
适宜地域
南方、北方
适用指数
高
适用家庭
有长辈和孩子,喜欢新中式别墅
别墅户型
5室
、2厅、5卫
图纸内容
建筑、结构、给排水、电气、暖通
乡住旗下盖房网打造
农村自建房行业
公益性平台
为了资源共享,
诚邀全国
自建房施工队、设计师、建材商
扫码进入
农村自建房资源交换群
自建房行业资源交换
推荐图纸如果尺寸不符合
获取AI免费设计
获取更多免费建房施工图纸
图库
客服
消息
收藏
下载
最近













