查看完整案例

收藏

下载
Shenyang Santaizi Wanxiang Hui
沈阳三台子万象汇
项目简介
蓬勃生命力的精炼表达
鲜活的时尚力
欢聚的烟火气
在这里
找寻万象之趣
万象更新, 自成焦点
......
项目名称:沈阳三台子商业
委托单位:沈阳润嘉房地产开发有限公司
幕墙团队单位:北京凯顺腾建筑设计有限公司(武汉团队)
项目概况
北国风光,玉树琼花,雪影冰姿,美丽的北国自然风光无限美好。
沈阳三台子万象汇位于这充满北国风情的沈阳市皇姑区三台子核心地段,建筑面积约18.86万平方米,包含地下2层,地上5层(局部6层),建筑高度约39.55米,是华润置地布局沈阳“一城四汇”(沈阳万象城、铁西万象汇、长白万象汇、皇姑万象汇、三台子万象汇)商业布局的重要组成部分。
建筑与空间
三台子万象汇由我司负责幕墙设计,项目于2023年12月9日盛大开业。她用建筑语言展现了北方特有的“冰雾”“冰棱”“冰纹”等特有的幕墙效果,赋予建筑年轻、活力、时尚的品性。行走于建筑外侧,犹如身临冰雪美景之中,使人心旷神怡,妙不可言。
设计理念
项目外立面设计现代感十足,又充满万象汇简约而不简单的品味:站在黄河北大街一侧立面的中间位置,正前方可以看到L4-L5挑空的玻璃面通透空间,两侧外立面以棕调+灰白色色系为主,与项目外围灰白的冬季氛围相得益彰。
项目室外夜景效果
项目室内夜景效果
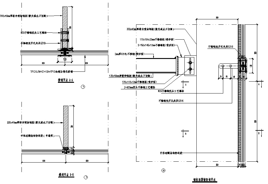
典型节点做法展
1
建筑中的冰雾效果,主要由西北面和西南面阳极氧化蜂窝板呈现。氧化板采用开缝拆接形式,最大程度还原板材自身的金属光泽和平整性。为了呈现若隐若现的冰雾效果,外立面选用缎面阳极氧化板与亚镜面阳极氧化板交错布置形式。其中缎面阳极氧化板呈现薄雾效果,亚镜面阳极氧化板呈现冰絮效果,在阳光照耀下,仿佛大自然的钻石隐约闪烁着光芒,朦胧的冰雾效果一览无余。
典型节点做法展示:
2
服务理念
凯顺腾始终本着“客户至上、员工第一、质量第一”的企业宗旨,每一个项目,从工程的设计、选材等直至工程完工售后服务,无一不贯穿着我们的经营理念和服务宗旨,力求做到精益求精,为客户提供性价比最优的技术解决方案及优质咨询服务。
丨
CCST凯顺腾
丨
客服
消息
收藏
下载
最近












