查看完整案例

收藏

下载
更多免费图纸
湖南娄底二层欧式别墅
ID 000986
项目概况
项目位置丨湖南娄底
图纸编号丨000986
建筑尺寸丨面宽13.6m,进深12m
建筑面积丨304.00㎡
占地面积丨156.00㎡
官方指导价 | 土建57万
建筑风格丨欧式
结构形式丨砖混结构
01.
丨平面布局图丨
△总平面示意图
户型概况:
2层 /
5室 2厅 3卫 1厨 1储物 1书房 1茶室 2阳台
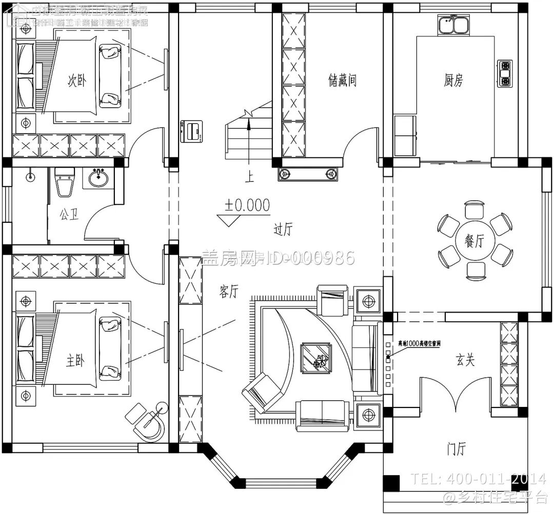
△一层平面图
一层
东侧空间主要用于活动和休闲,设置客厅、储物间及餐厨房。
西侧主要为日常起居使用,南侧的卧室为老人房,方便老人的日常生活,以提升室内的采光效果。
△二层平面图
二
层以日常休闲为主,左侧共设置两间卧室,其中西南侧设置的客房里拥有独立卫生间,并向南延伸出一个阳台空间。东侧设置书房和茶室,搭配阳台使用。
02
丨建筑效果图丨
△南侧效果
图
建筑为美式别墅,整体配色较为淡雅,与屋顶的蓝色形成对比。外墙采用浅色真石漆搭配田园乡村风格的外墙砖,多种材质的碰撞,打破了沉闷之感。
△西南侧效果图
△东南侧效果图
设计师在建筑的颜色和细节上也做了处理,立面的线角与屋顶形成呼应,建筑转角细部的材料处理与庭院大门的装饰细节相辅相成,精雕细琢的建筑给人扑面而来的大气感。
△鸟瞰效果
图
△鸟瞰效果
图
设计师注重结合使用玻璃、石材与涂料这些不同的建筑立面材料,建筑立面的虚实变化增加了整体的层次感。
△鸟瞰效果
图
除主体建筑外,南侧有大面积庭院,通过设计将建筑点缀在周边景色中。应业主的要求及喜好,设计师在庭院内设置桌椅,方便住户在闲暇时间休闲和娱乐。
03.
丨项目点评丨
适宜地域
南方、北方
适用指数
高
适用家庭
有长辈和孩子,喜欢欧式自建房
别墅户型
5室
、2厅、3卫
图纸内容
建筑、结构、给排水、电气、暖通
推荐图纸如果尺寸不符合
获取AI免费设计
获取更多免费建房施工图纸
乡住旗下盖房网打造
农村自建房行业
公益性平台
为了资源共享,
诚邀全国
自建房施工队、设计师、建材商
扫码进入
农村自建房资源交换群
自建房行业资源交换
图库
客服
消息
收藏
下载
最近













