查看完整案例

收藏

下载
更多免费图纸
浙江宁波二层欧式别墅
ID 000817
项目概况
项目位置丨浙江宁波
图纸编号丨000817
建筑尺寸丨面宽16.4m,进深14.1m
建筑面积丨423.00㎡
占地面积丨226.00㎡
官方指导价 | 土建78万
建筑风格丨欧式
结构形式丨框架结构
01.
丨平面布局图丨
△总平面示意图
户型概况:
2层 / 4室 2厅 4
卫 1厨 1洗衣 3衣帽间 1书房 1茶厅 1阳台 3露台
△一层平面图
一层以待客休闲功能为主,南、北两侧各设置1个入口,方便业主家出入前后院;西侧的客厅和茶厅以一体化布局,提升了室内的开阔感;东侧的长辈房内部增设衣帽间和独卫设计,满足长辈日常使用习惯。
△二层平面图
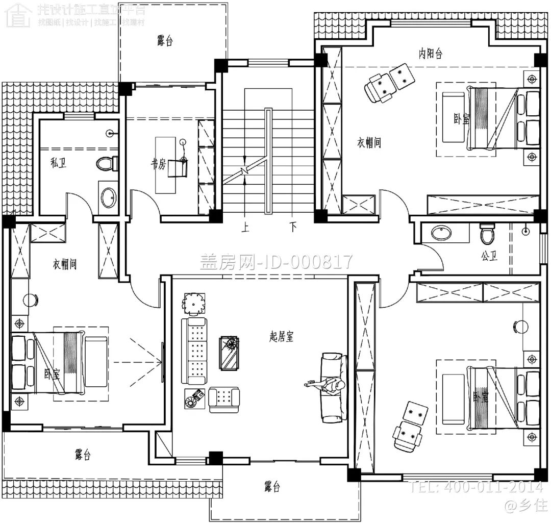
二层以办公休闲为主,共布置3间卧室,其中西南侧搭配衣帽间、独卫和露台空间。南侧预留了较大面积的露台功能,增强整层的多功能性。
02
丨建筑效果图丨
△南侧效果
图
建筑为欧式风格,立面采用了大量的浅色真石漆,配合简单的线条和经典立柱装饰,展现出建筑优雅、大气的一面。
△西南侧效果图
△东南侧效果图
△北侧效果
图
屋顶选用的深色与周围建筑相呼应,根据功能划分出多个屋顶区域,搭配顶层的天窗设计,极大提升了室内的采光效果。
△鸟瞰效果
图
西、北立面临近道路,设计师用低矮灌木丛装饰,以减少扬尘的影响。客厅位置选用并排拱形窗,搭配露台处经典欧式护栏,增强了整体的层次感。
03.
丨项目点评丨
适宜地域
南方、北方
适用指数
高
适用家庭
有长辈和孩子,喜欢欧式自建房
别墅户型
4室
、2厅、4卫
图纸内容
建筑、结构、给排水、电气、暖通
推荐图纸如果尺寸不符合
获取AI免费设计
获取更多免费建房施工图纸
乡住旗下盖房网打造
农村自建房行业
公益性平台
为了资源共享,
诚邀全国
自建房施工队、设计师、建材商
扫码进入
农村自建房资源交换群
自建房行业资源交换
图库
客服
消息
收藏
下载
最近












