查看完整案例

收藏

下载
更多免费图纸
江苏泰州二层欧式别墅
ID 000816
项目概况
项目位置丨江苏泰州
图纸编号丨000816
建筑尺寸丨面宽11.4m,进深13.5m
建筑面积丨267.00㎡
占地面积丨150.00㎡
官方指导价 | 土建48万
建筑风格丨欧式
结构形式丨框架结构
01.
丨平面布局图丨
△总平面示意图
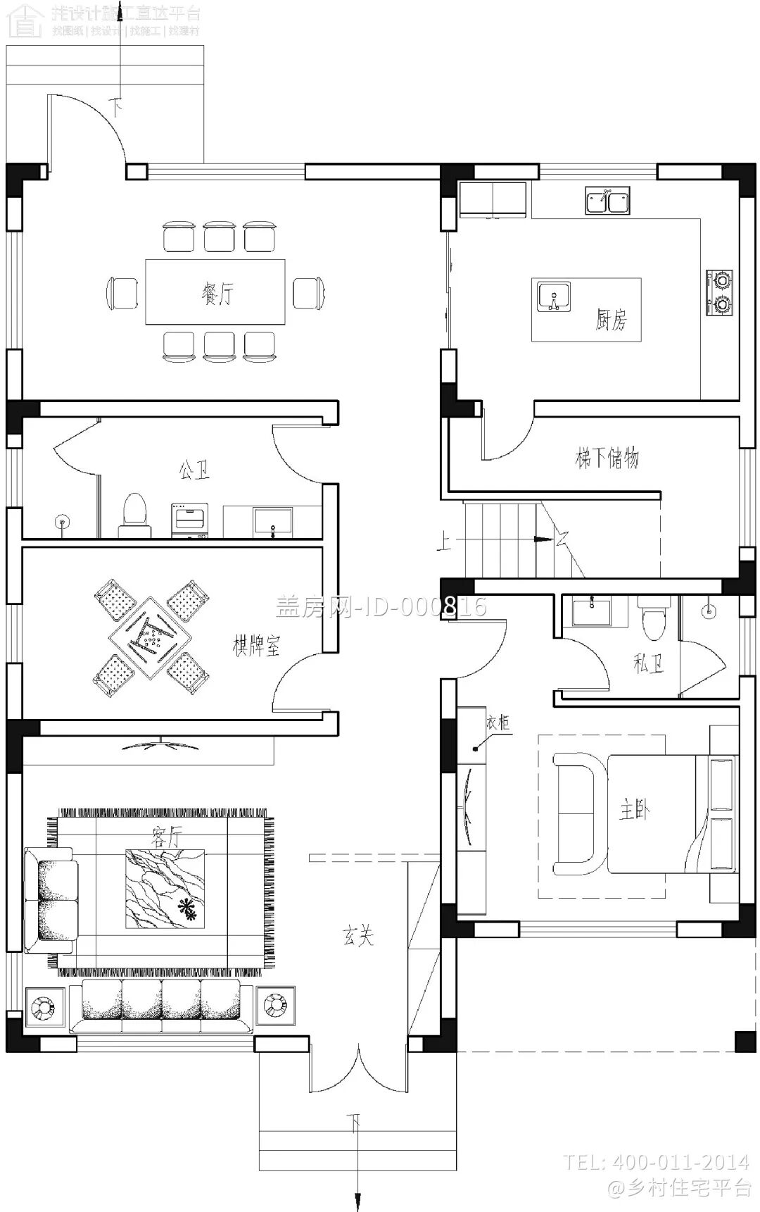
户型概况:
2层 / 4室 1厅 4
卫 1厨 2储藏 1书房 1棋牌室 1露台
△一层平面图
一层以起居娱乐为主,东南侧的长辈套房与玄关较近便于出行;西侧由北到南依次布置餐厅、公卫、棋牌室和客厅,其中餐厅内部增设的次入口,便于业主家用餐后到达后院休憩、散步。
△二层平面图
二层以办公居住为主,共布置3间卧室;东北侧预留了较大面积的书房空间搭配南侧的露台使用,提升了整层的多功能性。
02
丨建筑效果图丨
△南侧效果
图
建筑为欧式风格,立面采用了大量的浅色真石漆和文化石,通过亮色进行装饰,深浅的搭配和空间上的延伸、退让,给建筑整体带来层次感。
△西南侧效果图
△东南侧效果图
△鸟瞰
效果图
设计师考虑到业主家的使用习惯,预留了较大面积的后院空间,因此在北侧预留了带挑出遮雨平台的次入口,便于业主家日常出行。
△鸟瞰效果
图
南侧庭院用地面的材质划分场地,设置了多处绿色植被区域和休闲区,业主及其家人坐在花园中品品茶,便可尽情享受生活的惬意与浪漫。
03.
丨项目点评丨
适宜地域
南方、北方
适用指数
高
适用家庭
有长辈和孩子,喜欢欧式自建房
别墅户型
4室
、1厅、4卫
图纸内容
建筑、结构、给排水、电气、暖通
推荐图纸如果尺寸不符合
获取AI免费设计
获取更多免费建房施工图纸
乡住旗下盖房网打造
农村自建房行业
公益性平台
为了资源共享,
诚邀全国
自建房施工队、设计师、建材商
扫码进入
农村自建房资源交换群
自建房行业资源交换
图库
客服
消息
收藏
下载
最近












