查看完整案例

收藏

下载
捌号空间装饰 | 户型分析
本期:
国樾宾江128平
户型解析
国樾滨江128平
Apartment Introduction Translation
✔
详细户型解析
✔
超全方案设计
✔
走心案例分享
✔
捌号空间来袭
✔
设计师教您装新家!
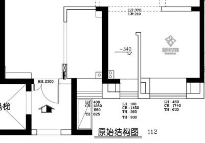
原始户型
Original layout
测量的128原始户型,
外框面积为112平,黑色填充墙体为承重结构。电梯井出来之后是独立的门厅区域。
1
电梯背后是隔音装置,后期装修可拆除,但是相对隔音效果会差一些。厚度接近30公分,长度1.2米。不拆占室内使用空间。
2
阳台中间的立柱是二次结构,作用是:南面次卧室与客厅中间的梁跨度接近6米,防止梁弯曲。不拆对客厅结构作用有正向作用,拆除显客厅视野开阔,选设计方案的时候各取所需。
3
主卧室,北面卧室、厨房及两个卫生间窗户均是飘窗,可以全部拆除,扩大室内空间,
强弱电箱均在厨房的侧墙上面,如果做开放式厨房,拆除墙体之后,弱电箱位置可能会重新选择位置。
带来的三个方案一定要看到最后哦!供您参考!
方案一
Design Proposal 1
01
偏保守的设计方案,满足普通家庭的需求。
玄关设计
part1
如果确定鞋柜外置,记得水电阶段提前预留监控的网线和电源线。
餐厨设计
part2
厨房原布局是封闭式,洗菜区因为飘窗及下水管的特殊布局,人站立的空间只有60公分,稍稍偏窄。但是好在切菜炒菜的区域,及小电器区,冰箱位空间足够用。
参考效果
次卧设计
part3
两个次卧室布局差不多,只不过方向相反。
南面卧室参考图,可以把书桌取代床头柜,和衣柜做一体设计,北面卧室一样适用。
主卧设计
part4
两个卧室飘窗可以拆除,但是在靠近床头位置均有承重结构,不能完全拆除。
但是可以做类似的储物空间,
飘窗拆除后,最好用的是什么都不做,留个开放空间,好开关窗,前提是不需要飘窗这个空间做梳妆台或者书桌。
有办公需求可以利用拆除的飘窗空间做书桌。
方案二
Design Proposal 2
02
方案二依旧是做了三个卧室的设计:不同的是厨房做了开放式,完全打开了入户的视野空间,冰箱外移至餐边柜区域。三个卧室空间的储物体量比方案一增加了一倍。大阳台一分为二,南面卧室就拥有一个独立的学习空间,适合学龄区家庭。
餐厨设计
part1
厨房非承重墙全部拆除,入户左侧柜子全部加深做到60公分,可以做次净衣区的同时,也可以把冰箱及蒸烤箱等部分厨房功能移至这个区域。
中间餐厅区可以做这样的岛台:提前预留电源线,家庭聚餐,涮火锅吃烤肉,手机临时充电。
客厅设计
part2
阳台一半做书桌,是独立的学习区,利用原卧室的承重柱,做吧台,家长可以在旁边陪伴。
次卧设计
part3
北面卧室衣柜和主卧室的门后做背靠背的满墙柜。
主卧设计
part4
另外衣柜在床尾:衣柜总长4.5米,可满足四季衣物挂放存放的需求。床与衣柜中间走路的距离有63公分,不影响正常行走。
餐厨设计
part5
卫生间空间没什么改动的,只是干区的位置,除了安装常规的浴室柜之外,还有别的选项.
浴室柜的之外的不同功能需求:
1、安装自动上下水的扫地机器人;
2、梳妆台或护肤品收纳;
3、洗澡的时候脏衣服及干净衣服的临时放置;
4、大量纸巾及泡脚桶等杂物的囤放区;
5、洗衣机烘干机。
方案三
Design Proposal 3
03
这是一个有开放式书房的两房方案。
阅读区设计
part1
休闲阅读区,借用了阳台空间,形成了地台内嵌沙发。
厨房是类似的U字型,餐桌及岛台一体。第一个方案里,洗菜区域只有60公分,比较窄,可以尝试把台盆放对面的区域。
客厅设计
part2
书房做全开放式:在满足基本的会客娱乐功能之外,也需要满足居住者对;书房,琴室,茶室等精神需求空间的要求
卫生间设计
part2
客卫干区,设计了一个双面柜。分别是餐厅的餐边柜,放顺手用的水杯,零食等小物品,对干区浴室柜,放囤货:纸巾类,也可以做盆,桶类物品集中存放区。
主卧设计
part3
主卧室是前两个方案的集合版,收纳量达到巅峰值。床尾是满墙的柜子。但是L型衣帽间的空间,可以随机应。屏风,做简单的隔断,因为卫生间的门正对着床。 也可以做梳妆台或独立的办公区,如果觉得储物空间不够,也可以是一个小衣帽间。
-over-
捌
号
空
间
全
案
设
计
中
心
武昌总店:
汉街总部国际D座7楼701-702
全国统一服务热线:400-806-3002
LaoYang8hao
咨询热线:
15927261161
客服
消息
收藏
下载
最近


















































