查看完整案例

收藏

下载
更多免费图纸
项目概况
项目位置丨湖北宜昌
图纸编号丨000804
建筑尺寸丨面宽14.4m,进深10.9m
建筑面积丨458.00㎡
占地面积丨200.00㎡
官方指导价 | 土建95万
建筑风格丨新中式
结构形式丨框架结构
01.
丨平面布局图丨
△总平面示意图
户型概况:
3层 / 10室 10卫 1厨 1堂屋 1土灶 1烤火房/餐厅 1储藏 1衣帽 1茶室 1书房 1书房/衣帽室 1棋牌室 3阳台 1露台
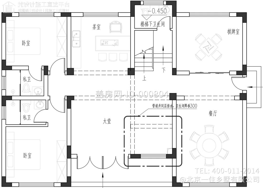
△一层平面图
一层以待客休闲功能为主,共布置2间卧室套房,入户处预留了较大面积的堂屋空间;东侧设置的棋牌室,满足业主家的日常娱乐需求。
△一层平面图(辅房)
辅房的开放式厨房搭配可做餐厅的烤火房使用,独立布设的方式避免影响业主家的居住环境。
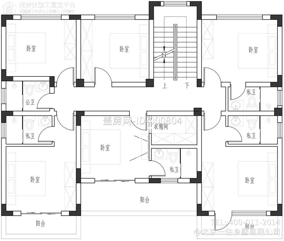
△二层平面图
二层以休闲起居功能为主,整层共布置6间卧室,其中南侧中部的卧室套房,搭配衣帽间、独卫和阳台使用,极大提升了室内的采光效果。
△三层平面图
三层以居住办公功能为主,共布置2间卧室,其中西北侧的卧室套房搭配多功能书房、衣帽间和独卫使用;,东北侧增设了独立的书房功能;东南侧的露台空间,满足业主家的日常休闲、晾晒需求。
02
丨建筑效果图丨
△南侧效果
图
建筑整体为新中式风格,立面采用大量的白色真石漆,搭配中式围栏、装饰等构件,突出其简约雅致之感。建筑师通过亭台楼阁的设计,将业主带入到新中国式的生活氛围。
△西南侧效果
图
△东南侧效果图
△鸟瞰
效果图
建筑主立面较小的窗户通过线条构件与大面积开窗连为一体,使得建筑整体性和各部分的统一性更好。少量窗户增设窗檐设计,不仅能很好地保护墙面,也让窗户轮廓更加分明。
△西北侧
效果图
△东北侧
效果图
建筑师从传承与创新之间,重新解构归家的空间礼序,致礼于业主及其家人,以静谧诗意的氛围营造“归隐”的生活艺术。
03.
丨项目点评丨
适宜地域
南方、北方
适用指数
高
适用家庭
有长辈和孩子,喜欢新中式别墅
别墅户型
10室
、3厅、10卫
图纸内容
建筑、结构、给排水、电气、暖通
湖北宜昌三层新中式别墅
ID 000804
推荐图纸如果尺寸不符合
获取AI免费设计
获取更多免费建房施工图纸
图库
客服
消息
收藏
下载
最近















