查看完整案例

收藏

下载
更多免费图纸
项目概况
项目位置丨北京顺义
图纸编号丨000682
建筑尺寸丨面宽13.4m,进深8.9m
建筑面积丨240.00㎡
占地面积丨119.00㎡
官方指导价 | 土建40万
建筑风格丨新中式
结构形式丨砖混结构
01.
丨平面布局图丨
△总平面示意图
户型概况:
2层 / 4室 2厅 2卫 2厨 1茶室/多功能室 1储物间 1休闲区
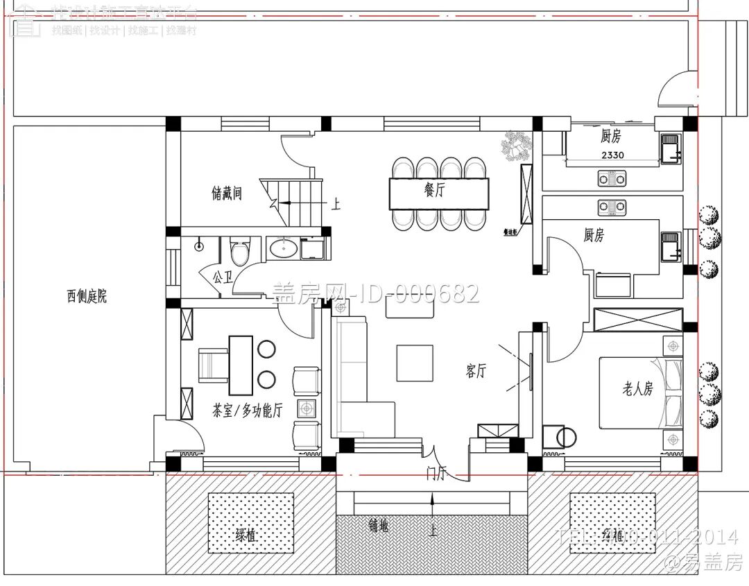
△一层平面图
一层
布局南北通透,三开间的布局充分保证室内空间的居住体验开阔感;西北侧的空间划分为两个厨房空间,可分别供主房和后院的老宅实用。
△二层平面图
二层墙体布局与一层严格对应,中部起居室北侧的休闲厅为业主家人日常的活动提供了更加充足的空间,南侧大量落地飘窗的设置让二层空间拥有更加良好的采光和通风条件。
02
丨建筑效果图丨
△南侧
效果图
建筑为新中式风格,
墙面采用米黄色真石漆结合线条分割,床套部分使用深色构件装饰,营造出雅致庄重的建筑气质。
△西南侧效果
图
△东南侧效果图
△鸟瞰
效果图
建筑西侧的停车区域通过墙体围挡,使得庭院空间的整体性得到进一步提升。南侧的入户大门空间去繁从简,营造简约淡雅的生活氛围。
△东北侧
效果图
△西北侧
效果图
临街面之外的三侧立面简化装饰设计,节省造价的同时,也让建筑的重点更得以突出。转角处的装饰处理也让整体的视觉效果不再单调枯燥。
03.
丨项目点评丨
适宜地域
南方、北方
适用指数
高
适用家庭
有长辈和孩子,喜欢新中式自建房
别墅户型
4室
、2厅、2卫
图纸内容
建筑、结构、给排水、电气、暖通
北京顺义二层新中式别墅
ID 000682
推荐图纸如果尺寸不符合
获取AI免费设计
获取更多免费建房施工图纸
图库
客服
消息
收藏
下载
最近













