查看完整案例

收藏

下载
让生活更美好
MHOO DESIGN
珊瑚世纪300㎡
现代禅意
-
圆顶光影流转
茶台静候茶香
古琴与绿植静默对话
在禅意与现代的交融里
每一处空间都是诗意的栖居
幽然逸境
古雅之隅
本案设计将现代简约与东方韵致相结合,极富禅意与古韵。以素白为底,绿意点缀,柔和灯光勾勒轮廓,营造静谧氛围,尽显岁月质感,整体布局精巧,自然意趣顿生,将传统元素与简约风格交融,打造出宁静致远、让人心神安宁的一隅。
地下室的入门处做了特殊设计,把整个悠长的过道切割出两个空间,一部分是景观区域,一部分是吧台的延伸,侧面做洞洞板收纳日常物品,同时顶面做黑镜的处理,让整个空间富有延伸感。
圆形吊顶搭配隐藏灯带,光线柔和温馨且富有设计感。浅咖色沙发与黑色单人椅形成三角包围状,圆形大理石茶几点缀其间,背景墙与展示柜结合,内衬灯带,整体色调柔和,细节处尽显艺术感。
采光井处做挑空处理,便于采光与通风,下面顺势做开放式茶室,深色大理石与木质茶桌质感十足,搭配圆凳古朴自然,侧边引入绿植景观与枯木摆台装饰,营造出宁静雅致的氛围。
挑空上层环绕式设计两间禅室,中空做玻璃幕墙,可以延伸空间,增添采光,并与中空茶室进行视觉互动。闲时品一杯清茶,奏一首琴曲,或沉思,或冥想,是放空身心、修身养性的绝佳去处。
木地板铺设的地台与瓷砖地面形成落差,划分出一处独属于自己的品茗空间。整墙开放展示架收纳各式各样的名贵茶叶与瓷器,深木色茶几搭配圆形矮凳,青玉瓷瓶斜插一抹绿色,摇曳生姿。
悬浮楼梯在满足使用功能的同时满足了美观的需求,整面禇红色的跳色背景墙极具有视觉冲击感,和楼梯的灯光配合出特别的美,且在楼梯下放一组收纳柜和置物台,合理规划空间。
步入一楼,餐厅设计将现代简约与东方格调恰当融合,大理石圆形餐桌搭配白色餐椅,质感上乘。别致的烟花形吊灯散发柔和光线,营造温馨氛围,而绿植与装饰画的加入,为空间注入生机与艺术活力。
浅灰色餐边柜简洁大方,中间隔层一半做置物架,摆放咖啡杯和酒杯,兼具收纳与展示功能,一旁的岛台也提供了方便的置物与收纳空间。
卧室保持一贯的素雅温润,软包靠背搭配丝绸床品,无主灯设计,由灯带、背景墙筒灯、吊灯与床头小台灯提供光源,满足睡前灯光需要,双层窗帘可自由调节透光度,提供柔和适睡的氛围。
外部庭院以石板铺就,黑色砾石点缀其间,绿植错落有致,四季景观各异,增添生机与活力。休闲区设有遮阳伞和座椅,提供舒适的休憩空间,是享受阳光与自然的佳处。
- 走进案例
In The Case
业主需求
需要一个客厅,一个茶室,一个禅室,还需要有很大的衣帽间。
很喜欢禅意的风格,希望地下室的采光和通风更好些。
户型分析
楼上精装,地下室毛胚。
地下室进门有个很长的过道,低矮且悠长,做柜子深度不够。
地下室格局相对来说采光和通风都不足。
户型改造
采光井做挑空,让光线从一楼整个穿透下来。
选择了微水泥这类可以在地下室耐水的材料,将地下室空间利用极致,把整个动线区域放在大开间以及有阳光的位置。
过道做了两个空间的区分,把整个很长的过道做了一个切割,一部分是景观区域,一部分是吧台的延伸。
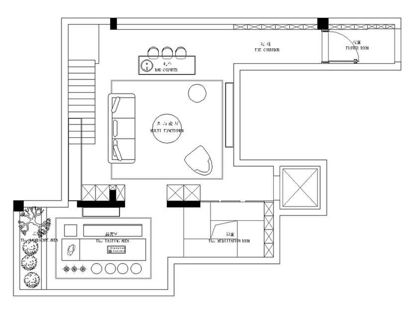
原户型图
平面图
案例信息
Case Information
项目楼盘:珊瑚世纪
项目户型:精装下叠
项目面积:300㎡
项目风格:现代禅意
设计团队:全盛别墅设计 邵程莉
施工团队:大宅工程中心 马国来
施工单位:麦丰装饰集团
装修总投:土建拆改2w、花园景观15w、基础工程30w、木作定制33w、机电设备6w、灯具2w、系统窗1.5w、楼梯5w、家具10w、软装20w
主要用材:微水泥,岩板,镜面不锈钢,木饰面
作品拍摄:林峰
文字编辑:周周
No.
/ 小景呈现 /
从无到有
给你精彩!
有装修需求的小伙伴们
☟
点我在线预约
往期优秀案例
别墅大宅
MHOO|清华园225㎡意式极简:轻简于形,奢繁于心
MHOO|悦麒美寓300㎡意式轻奢:漫步苍穹,沉稳之美
MHOO|乐虹湾300㎡轻法式:邂逅三维,细品浪漫
MHOO|藏珑大境200㎡现代原木:Y·house向光而居
住宅公寓
MHOO|万家名城140㎡现代风:见素抱朴,返璞归真
MHOO|宝嘉誉峰139㎡现代简约:感受通透的“呼吸感”
MHOO|美哉美城110m²复古混搭:煦色满室,韶光悠长
MHOO|明德明理府130㎡复古原木:把生活藏进旧时光
MHOO|阳光郡110m²现代风:黑白梦境,纯粹之美
旧改/精装
MHOO|132㎡精装房:融合灰色系与极简主义
MHOO|君品名邸170㎡法式轻复古:循光进入一场优雅绮梦
MHOO| 黑*白现代风 150㎡精装改造房
商业空间
MHOO|166㎡中古店 既是怀旧,亦是新潮
MHOO|治愈美学·网红推拿院 270㎡侘寂风
MY HOME DESIGN
珍惜所托,用心服务
▼
客服
消息
收藏
下载
最近



































