查看完整案例

收藏

下载
让生活更美好
MHOO DESIGN
禧瑞江南200㎡
现代风
-
在光影里闪着故事的微光
这里每一处线条与角落
都在轻声吟诵
关于栖居的现代诗章
美学与生活
的温柔相拥
本案以现代风格为基调,空间布局开阔通透,色彩搭配简洁明快。通过简约线条、精致软装与自然绿植的巧妙融合,营造出时尚雅致且舒适温馨的居住氛围。
入户玄关处的楼梯线条流畅,玻璃护栏增强了空间通透感,台阶下的灯光温馨朦胧。
旁侧绿植为空间注入自然生机,搭配简洁的柜体与沉稳的深色大门,整体色调柔和雅致,营造出舒适且富有格调的入户氛围。
客厅整体空间布局开阔,光线充足,搭配深色家具与木质元素,营造出简约大气又不失温暖的氛围。
白色圆形茶几简约大方,与周围的家具相得益彰,尽显现代家居的精致与美感。
电视墙设计简洁大方,黑色柜体与大屏幕电视相呼应,整体布局开阔通透。
黑色皮质沙发旁的红色单人椅亮眼吸睛,墙上的抽象画增添艺术气息,上方的黑色长形灯具设计简约又具现代感。
餐厨区域的白色岛台简洁大方,上方的灯具设计简约又不失设计感,方便日常操作与用餐。
黑色与白色的椅子相互搭配,在色彩上形成对比,增添了空间的层次感。
一旁的储物柜兼具收纳与展示功能,玻璃柜门内的物品若隐若现,将现代家居的精致与实用巧妙融合。
厨房上方的浅色橱柜与下方的深色橱柜形成对比,富有层次感。窗户搭配百叶帘,既能调节光线,又保障了隐私。
卧室空间布局开阔通透,木质地板带来温润质感。
电视墙设计简约大方,下方的壁炉设计独特,木质的外观为空间增添了一丝温暖的气息。搭配造型独特的绿色座椅和圆形梳妆镜,增添了空间的设计感。
一旁的玻璃门衣柜兼具收纳与展示功能,让空间更显整洁有序。
落地窗引入充足自然光,窗外的建筑景观与室内的简约设计形成呼应。灯光运用巧妙,柔和的光线烘托出静谧的氛围。
床头背景墙设计简洁,暗藏的灯带柔和温馨,搭配灰色皮质床头,质感十足。
次卧整体以柔和的浅色调为主,营造出温馨舒适的氛围。
粉色与白色相间的柜体设计,兼具美观与实用,内嵌的灯带为展示物品提供了良好的照明,几株绿植点缀其中,为空间注入自然生机。
卫浴区域,洗手台设计简约大方,大理石纹理的台面搭配木质柜体,质感十足。镜前灯与暗藏灯带的运用,让空间光线柔和温馨。
淋浴区采用玻璃隔断,干湿分离,黑色的淋浴设施与浅色的墙面、地面形成对比,增添空间的层次感。
此外,上下叠放的洗衣机和烘干机,充分利用了垂直空间,旁边的白色柜体提供了充足的收纳空间。
- 走进案例
In The Case
业主需求
业主需求:不追求繁复的造型装饰,希望通过空间布局、家具搭配体现质感;希望从入户到客厅、厨房,以及从楼梯到二层卧室的行走路径顺畅,无狭窄拥堵的死角。
户型分析
南北通透、一楼方正大户型空间利用率高,可改造性大;
南面窗户面采光大,通风良好;
原始户型楼梯位置上楼的楼梯正对入户门,进门空间视觉上不大;
一楼卧室的占比较大,影响了公共空间的面积;
原先餐厅的位置太靠入户。
户型改造
牺牲一楼一个房间和客厅打通,扩大客厅的整体空间;
将餐厅位置改变做到岛台和餐桌一体化;
改变楼梯位置,将原始楼梯上下楼进行对换,让进门的空间视觉上得到大幅提升,利用楼梯下平台的位置造景,增加进门的美观;
二楼把衣帽间和卧室做到一体,利用电视机的位置进行隔断,衣帽间柜子做一字型排开,使柜子的储藏量最大化。
1F原户型图
2F原户型图
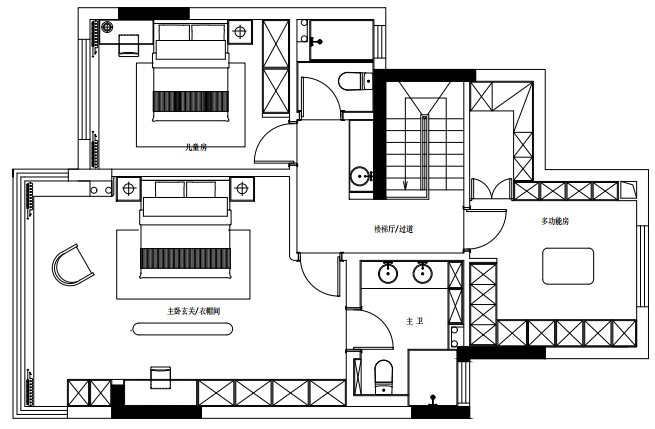
1F平面图
2F平面图
案例信息
Case Information
项目楼盘:禧瑞江南
项目户型:上叠
项目面积:200㎡
项目风格:现代风
设计团队:麦丰国际设计 翁靓
施工团队:工程项目中心 李继然
施工单位:麦丰装饰集团
装修总投:套餐45W、全屋定制15W、空调10W、地暖3W、家电8W、厨电5W、整体软装14W
主要用材:岩板、木饰面、地砖、地板、钢板、微水泥
作品拍摄:林峰
文字编辑:晓晓
No.
/ 小景呈现 /
从无到有
给你精彩!
有装修需求的小伙伴们
☟
点我在线预约
往期优秀案例
别墅大宅
MHOO|清华园225㎡意式极简:轻简于形,奢繁于心
MHOO|悦麒美寓300㎡意式轻奢:漫步苍穹,沉稳之美
MHOO|乐虹湾300㎡轻法式:邂逅三维,细品浪漫
MHOO|藏珑大境200㎡现代原木:Y·house向光而居
住宅公寓
MHOO|万家名城140㎡现代风:见素抱朴,返璞归真
MHOO|宝嘉誉峰139㎡现代简约:感受通透的“呼吸感”
MHOO|美哉美城110m²复古混搭:煦色满室,韶光悠长
MHOO|明德明理府130㎡复古原木:把生活藏进旧时光
MHOO|阳光郡110m²现代风:黑白梦境,纯粹之美
旧改/精装
MHOO|132㎡精装房:融合灰色系与极简主义
MHOO|君品名邸170㎡法式轻复古:循光进入一场优雅绮梦
MHOO| 黑*白现代风 150㎡精装改造房
商业空间
MHOO|166㎡中古店 既是怀旧,亦是新潮
MHOO|治愈美学·网红推拿院 270㎡侘寂风
MY HOME DESIGN
珍惜所托,用心服务
▼
客服
消息
收藏
下载
最近



















































