查看完整案例

收藏

下载
让生活更美好
MHOO DESIGN
上林湖翡翠谷240㎡
现代极简风
-
以克制的设计语言
消解空间与生活的边界
用纯粹的材质与光影对话
让每一处留白都生长出自由
这是居所,更是内心的自在场域
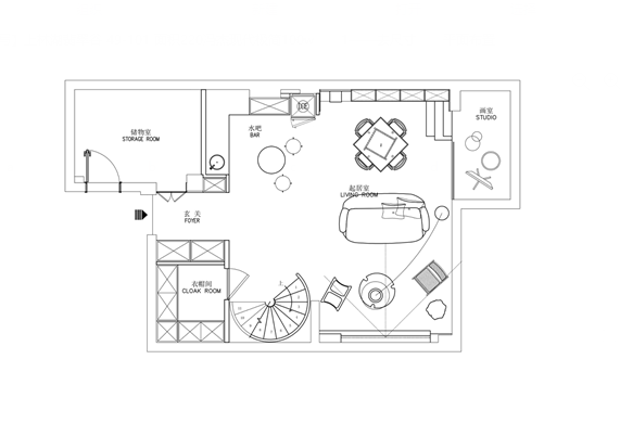
入户
极简里藏着秩序感
入户区域以浅灰色微水泥地面铺陈,通高的黑色柜体,采用无把手设计,简洁的线条延伸至天花板。柜子下方特意留出空间,方便放置扫地机器人,减少日常清洁的繁琐,镜子下方的台面,可以随手放置钥匙、包包等小物件,实用又美观。
客厅吊顶天花的设计参考了绸缎的造型,围绕着客厅中间的结构梁做了一体的圆弧形处理,一直延伸到沙发背景,让天花和背景完全结合起来,达到统一的视觉效果。落地窗取消冗余窗框,将室外花园景观引入室内,阳光漫射时,地面与墙面的光影流动成为空间最生动的装饰。
餐厅与客厅无界相连,整面通高黑色柜体是空间的 “骨架”,无把手设计让视觉彻底 “减负”,嵌入式电器与收纳功能暗藏其中,岩板背景墙与餐桌台面形成材质呼应。
餐桌选了绿色岩板,长宽为1800*900mm ,绿色岩板与白色纹路碰撞,以天然纹理打破纯色沉闷,上方悬浮式吊顶搭配线性吊灯,光线精准落在用餐区,既满足照明需求,又让空间更显轻盈。
旋转楼梯线条流畅且富有动感,黑色的梯身搭配灰色的踏步,色彩对比鲜明,既展现出沉稳大气的质感,又带着现代的时尚,融入了灯光设计,沿着梯身边缘布置的灯带,在夜间亮起时,不仅可以照明,还能勾勒出楼梯的轮廓。
主卧的顶面以悬浮吊顶勾勒轮廓,浅灰墙面弧形灯槽漫射柔和光线,为空间增添呼吸感。黑色皮质床具线条利落,与岩板台面床头柜形成材质对话。通高柜体与隐形门一体化设计,极简从不是牺牲,而是藏进 “看不见” 的设计里。
挑高空间与错层设计,打破了地下室常见的压抑,二层通透的玻璃护栏,让空间纵向延伸感变强,顶部采用了几何切割般的造型设计,结合暗藏灯带与点状照明,光线柔和地漫射开来,弱化了地下室的封闭感。
卫生间采用干湿分离设计,白色洁具与黑色金属框架碰撞,材质的纯粹,让卫生间摆脱了繁杂与冗余。主卫地面采用深色哑光色地砖,台盆柜内部分层收纳洗漱用品,墙排式马桶上方预留毛巾架,收纳需求都在 “无形” 中落地。
- 走进案例
In The Case
业主需求
业主需求:喜欢黑白冷峻的色调,现代极简的风格。因平常会有很多朋友聚会,花园客厅等地方需要满足会客需求,地下室配备客房,挑空的会客厅兼顾观影娱乐需求。
户型分析
1.下叠户型,户型方正,南北通透;
2.自带花园,地下室挑空4米;
3.一层入户无玄关,楼梯狭窄且位置不佳;
4.会客区域不足,户型传统,空间割裂。
户型改造
1.一层入户做了玄关,餐厅、客厅贯通,面积更加开阔;
2.重置楼梯位置,采用钢板制成的旋转楼梯;
3.后期加建负一层,配备客房,满足会客需求;
4.采用「洄游动线」设计公共区域,提升空间利用率。
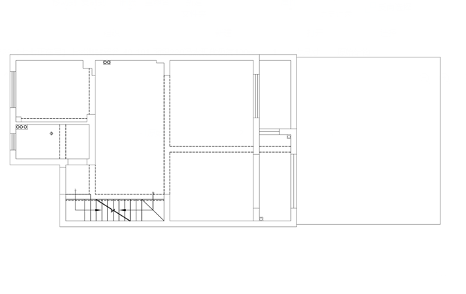
2F原户型图
2F平面图
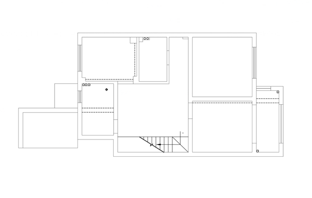
1F原户型图
1F平面图
-1F原户型图
-1F平面图
-2F原户型图
-2F平面图
案例信息
Case Information
项目楼盘:上林湖翡翠谷
项目户型:下叠
项目面积:240㎡
项目风格:现代极简
设计团队:全盛别墅设计 冯杰
施工团队:大宅工程中心 章永辉
施工单位:麦丰装饰集团
装修总投:基础工程48w、土建工程5w、花园景观4w、木作定制10w、机电设备8w、系统窗4w、家具及软装配饰5w、楼梯9w
主要用材:瓷砖、地板、艺术涂料、钢板等
作品拍摄:林峰
文字编辑:七七
No.
/ 小景呈现 /
从无到有
给你精彩!
有装修需求的小伙伴们
☟
点我在线预约
往期优秀案例
别墅大宅
MHOO|清华园225㎡意式极简:轻简于形,奢繁于心
MHOO|悦麒美寓300㎡意式轻奢:漫步苍穹,沉稳之美
MHOO|乐虹湾300㎡轻法式:邂逅三维,细品浪漫
MHOO|藏珑大境200㎡现代原木:Y·house向光而居
住宅公寓
MHOO|万家名城140㎡现代风:见素抱朴,返璞归真
MHOO|宝嘉誉峰139㎡现代简约:感受通透的“呼吸感”
MHOO|美哉美城110m²复古混搭:煦色满室,韶光悠长
MHOO|明德明理府130㎡复古原木:把生活藏进旧时光
MHOO|阳光郡110m²现代风:黑白梦境,纯粹之美
旧改/精装
MHOO|132㎡精装房:融合灰色系与极简主义
MHOO|君品名邸170㎡法式轻复古:循光进入一场优雅绮梦
MHOO| 黑*白现代风 150㎡精装改造房
商业空间
MHOO|166㎡中古店 既是怀旧,亦是新潮
MHOO|治愈美学·网红推拿院 270㎡侘寂风
客服
消息
收藏
下载
最近






































