查看完整案例

收藏

下载
更多免费图纸
项目概况
项目位置丨湖北宜昌
图纸编号丨000532
建筑尺寸丨面宽16.2m,进深11.3m
建筑面积丨485.00㎡
占地面积丨164.00㎡
官方指导价 | 土建86万
建筑风格丨欧式
结构形式丨框架结构
01.
丨平面布局图丨
△总平面示意图
户型概况:
2层+地下1层 / 5室 1厅 5卫 1厨 4衣帽 1设备 1换衣 1书房 1健身 1瑜伽 1桑拿 1烤火房 1KTV 1露台 2酒窖 1车库
△负一层平面图
整层主要为活动休闲空间,南北动静分离划分开来,中部的纳米汗蒸室,
西侧的健身房和北侧的瑜伽室相呼应,使得彼此多功能空间的面积灵活化。
△一层平面图
一层以居住待客为主,共布置2间卧室,其中南侧老人套房搭配衣帽和私卫区域;北侧的厨房内部设置次入口,提升室内的居住环境。
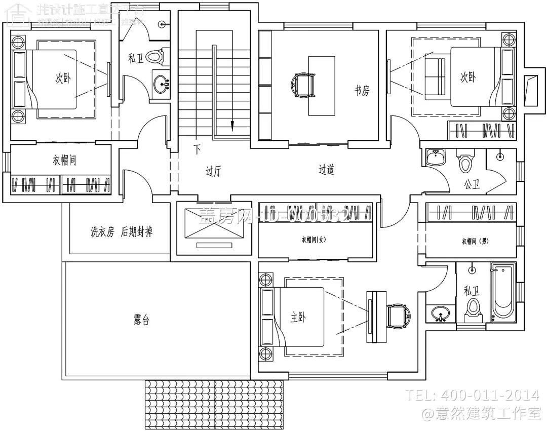
△二层平面图
二层为自家居住,主卧套房置于东北侧,南侧预留大面积的露台空间,改善局部微环境,优化生活起居体验。
02
丨建筑效果图丨
△南侧
效果图
建筑整体采用欧式风格设计,立面浅色石材铺面,浅色真石漆形成上下颜色的呼应关系,
露台的宝瓶柱栏杆划分上下层
,强调空间层次感和质感。
△西南侧效果
图
建筑主体为欧式风格,外墙采用暖色真石漆,搭配深色的屋顶和纹理既增强了建筑整体的稳重感,也使得层次感更加突出,展现出一丝灵动的现代生活气息。
△鸟瞰效果图
二
层的休闲空间和超大露台,保证了业主及其家人平时的生活需求。建筑各立面都根据室内需求开窗,搭配少量装饰点缀,来呼应建筑整体简约大气的风格。
△西北侧
效果图
△院门
效果图
建筑北面设计充分考虑场地周边环境,结合多种条件处理设计北立面,照顾到景观和北面采光。
△露台
效果图
庭院外立面采用了多种材质的搭配,给建筑内部带来良好的视野,用绿化带划分区域,分区合理,使得活动空间充裕。
03.
丨项目点评丨
适宜地域
南方、北方
适用指数
高
适用家庭
有长辈和孩子,喜欢欧式自建房
别墅户型
5室
、1厅、5卫
图纸内容
建筑、结构、给排水、电气、暖通
湖北宜昌二层欧式别墅
ID 000532
推荐图纸如果尺寸不符合
获取AI免费设计
获取更多免费建房施工图纸
图库
客服
消息
收藏
下载
最近














