查看完整案例

收藏

下载
让生活更美好
MHOO DESIGN
绿城诚园380㎡
中式轻奢
-
阳光漫过客厅纱帘
像踩着古词里的韵脚
“咚” 一声
把光影与时光
都敲成了流动的诗行
东方美学
自在温柔
在快节奏的时代,中式轻奢成了不一样的风景线,这座 380㎡新中式大宅,将传统与当下、古韵与新生,悄然融合 。
踏入宅邸,门厅如一幅缓缓展开的古画。映入眼帘的是拱形的门廊,门口立着白色又温润的石材立柱,墙上 “福” 字挂饰,带着人间的烟火气息,推开门,中式韵味与现代简约扑鼻而来。
客厅是大宅的中心舞台,地面砖采用了大理石,嵌入式的电视机柜合理利用了客厅空间,吊灯如星芒洒落,金属线条勾勒出天花板的层次,四周的轨道灯让光线均匀洒落,空间显得更轻盈。
米白色沙发搭配深色木质扶手,柔软里携带着东方的硬朗。大理石茶几纹理自然,青瓷瓶插着几枝素净花枝,大面积的窗幔轻垂,透光的纱帘可以隐约看到户外天然的景致,阳光透过,给整个空间蒙上一层薄纱,把新中式的 “雅” 与 “静”,展现得恰到好处。
楼梯间的玻璃护栏通透如镜,映着光影与石材楼梯的温润。垂坠的灯饰像雨滴一样从空中飘落,把一楼的烟火与二楼的静谧,轻轻串联,上楼的转场也成了一种享受。
二楼卧室的床头背景展现着中式风骨,墙面素净像宣纸的留白,木质地板带着自然的呼吸,浅灰窗帘半掩,漏进温柔的光。走上二楼,体会到了中式的 “隐” 与 “逸”。
在这套空间里,柜体是器具展示的专属舞台。深色柜体作为沉稳底色,勾勒出空间的轮廓,玻璃与开放式红棕搁板组合,在灯光的营造下,实现收纳和美学的统一。
没有刻意堆砌的古物,却把东方美学揉进了每一寸设计。它是生活的栖息之所,更像东方诗意的生长之地,家本就该这般,既有当下的自在,又有古韵的温柔。
- 走进案例
In The Case
业主需求
业主非常爱干净,家里是书香门第,平时喜欢弹钢琴,希望有钢琴室,也喜欢喝茶,整体风格偏古韵一点,让整个空间动静分离,采光好。
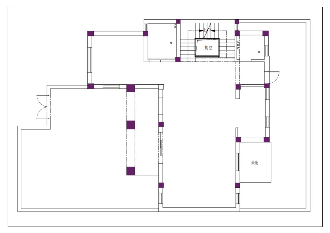
户型分析
合院的户型,动静分区合理
空间动线流畅,南北通透
厨房空间较小
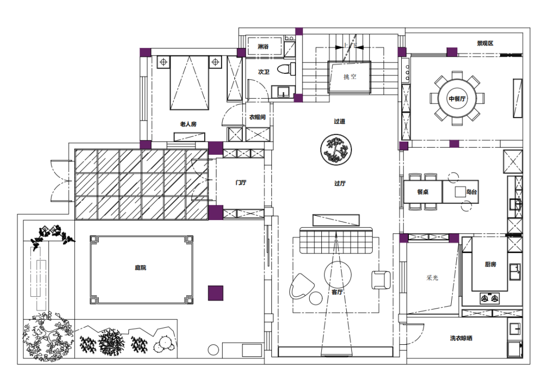
户型改造
空间位置调整后,做出了中西厨、中西餐厅的结合
设有专门办公区域,适用于居家办公
内嵌式电视墙,提升美观和空间利用性
透明玻璃楼梯与周围空间形成视觉延伸,扩展空间感
原户型图
平面图
案例信息
Case Information
项目楼盘:绿城诚园
项目户型:联排
项目面积:380㎡
项目风格:中式轻奢
设计团队:麦丰国际设计 唐再平
施工团队:工程项目中心 洪松华
施工单位:麦丰装饰集团
装修总投:土建拆改15w、基础工程40w、硬装主材产品30w、木作定制15w、机电设备20w、灯具5w、系统窗8w、家具12w、软装配饰5w、其他5w
主要用材:地砖、实木地板、大理石、艺术漆、乳胶漆、木质家具及布艺、金属不锈钢、水晶灯
文字编辑:七七
No.
/ 小景呈现 /
往期优秀案例
别墅大宅
MHOO|清华园225㎡意式极简:轻简于形,奢繁于心
MHOO|悦麒美寓300㎡意式轻奢:漫步苍穹,沉稳之美
MHOO|乐虹湾300㎡轻法式:邂逅三维,细品浪漫
MHOO|藏珑大境200㎡现代原木:Y·house向光而居
住宅公寓
MHOO|万家名城140㎡现代风:见素抱朴,返璞归真
MHOO|宝嘉誉峰139㎡现代简约:感受通透的“呼吸感”
MHOO|美哉美城110m²复古混搭:煦色满室,韶光悠长
MHOO|明德明理府130㎡复古原木:把生活藏进旧时光
MHOO|阳光郡110m²现代风:黑白梦境,纯粹之美
旧改/精装
MHOO|132㎡精装房:融合灰色系与极简主义
MHOO|君品名邸170㎡法式轻复古:循光进入一场优雅绮梦
MHOO| 黑*白现代风 150㎡精装改造房
商业空间
MHOO|166㎡中古店 既是怀旧,亦是新潮
MHOO|治愈美学·网红推拿院 270㎡侘寂风
客服
消息
收藏
下载
最近






































