查看完整案例

收藏

下载
更多免费图纸
项目概况
项目位置丨山东枣庄
图纸编号丨000715
建筑尺寸丨面宽15.8m,进深10.1m
建筑面积丨302.00㎡
占地面积丨153.00㎡
官方指导价 | 土建56万
建筑风格丨新中式
结构形式丨砖混结构
01.
丨平面布局图丨
△总平面示意图
户型概况:
2层 / 5室 1厅 2卫 1厨 1储藏 1洗衣 1设备 1茶区 1书房 1活动室 2阳台
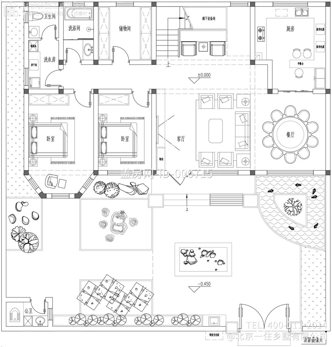
△一层平面图
一层以待客休闲功能为主,整层共布置2间卧室,中部的客厅和餐厅进行一体化设计,既提升了室内的开阔感,又满足居住者日常休闲需求。
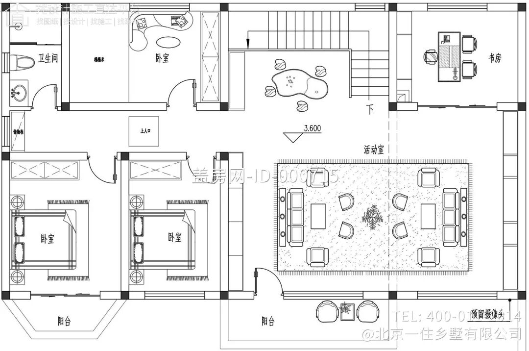
△二层平面图
二层以居住活动为主,共设置3间卧室,其中西南侧的卧室套房搭配阳台使用;南侧活动厅向外延伸出的阳台区域,为居住者提供了室外观景、晾晒休闲的场所。
02
丨建筑效果图丨
△南侧
效果图
建筑整体为新中式风格,立面采用两段式设计,设计师通过双层深浅对比,让建筑在视觉上更加清新。二层的室外阳台区域让立面有了颜色和质感上的变化,赋予整体简约和层次感。
△西南侧效果
图
△东南侧
效果图
设计师将阳台设计到南侧,丰富了建筑整体的观景区域;北侧与邻家宅院较近,因此未设置大量开窗。
△鸟瞰
效果图
△庭院
效果图
△庭院
效果图
庭院预留的休闲区域较多,选用木质建材铺地,简约大方又极具复古感。景观区域通过不规则的景观石划分,无论是绿坪还是风水竹,均彰显中式园林的淡雅气息。
03.
丨项目点评丨
适宜地域
南方、北方
适用指数
高
适用家庭
有长辈和孩子,喜欢新中式自建房
别墅户型
5室
、1厅、2卫
图纸内容
建筑、结构、给排水、电气、暖通
山东枣庄二层新中式别墅
ID 000715
推荐图纸如果尺寸不符合
获取AI免费设计
获取更多免费建房施工图纸
图库
客服
消息
收藏
下载
最近













