查看完整案例

收藏

下载
36项出错即砸
大家好呀!
今天要分享位于雷捷时代二期
的装修
这是一套
87
平米的两
居室住宅
选择原木风
作为装修风格
简洁而不失高级感
真的超爱!
一起看看吧~
原木风
雷捷时代二期87㎡两居室住宅
推开这扇门,就像跌进温柔的木色怀抱里。浅棕的地板如涟漪般铺展,温润的家具似在轻声诉说,每一处都透着自然的呼吸感,把外面的喧嚣都隔绝开,只剩家的治愈与松弛,等你慢慢沉溺~
客厅原木色与纯净白交织,勾勒出客厅温馨又通透的基调。鱼骨拼木地板,以精致纹理铺展自然韵律,每一步都似踏在时光的诗意里。
简洁利落的吊顶,暗藏线性灯光,点亮时,柔和光晕如轻纱漫洒,让空间更显层次与静谧。定制柜体与墙面完美契合,玻璃与实木材质碰撞,收纳与展示功能兼具,让生活秩序与美学品味同频。
采用简洁的白色乳胶漆,干净纯粹,为空间奠定柔和基调,搭配木质元素的背景墙,增添自然温暖质感,两种材质与色调的碰撞,让墙面既有简约大气,又具细腻层次。
悬挂式
花瓣造型
吊灯,
柔和的灯光均匀漫射,在营造温馨氛围的同时,又能巧妙拉伸空间纵深感,让客厅更显开阔。门框选用与整体风格协调的木质材质,与室内木质元素呼应,门体简约的造型,搭配通透的窗户,保障采光的同时,也让空间过渡自然流畅。
收纳区以定制柜体为核心,柜体采用简洁的白色调,搭配木质元素的细节点缀,与整体空间风格和谐统一。
嵌入式设计的柜体,充分利用每一寸空间,从吊柜到地柜,分层科学合理。吊柜部分,玻璃柜门与封闭柜门结合,既能展示精致物件,又能隐藏杂乱物品;地柜提供充足的密闭储物空间,满足大件物品收纳需求。
旁边的冰箱也与柜体完美融合,整体视觉整洁利落,让收纳不再是简单的物品归置,更是一种有序的美学呈现,为家居生活带来便捷与舒适。
主卧,以营造静谧舒适的休憩空间为核心。墙面选用柔和的浅色调,似清晨的微光,给人宁静之感,为空间奠定温馨基调。简洁的吊顶设计,光线透过缝隙温柔洒落,如月光般轻柔,既保证了照明,又不破坏空间的整体美感,让卧室氛围更显雅致。地面延续人字拼木地板,木质纹理自然流畅,脚感温润。
次卧墙面如素净画布,营造出清爽通透的氛围。吊顶线条简洁,搭配造型别致的吸顶灯,灯光柔和,为空间增添温馨感。
嵌入式衣柜与墙面完美融合,既节省空间,又让视觉整洁统一,收纳与美观兼具,打造出简约而不失质感的居住体验。
厨房,以实用与美观兼具为核心。墙面选用浅色系瓷砖,干净清爽,易清洁打理。定制的橱柜,浅色调与木色搭配和谐,吊柜与地柜充分利用空间,提供充足收纳,让厨房用品各归其位。顶部简洁的吊顶设计,搭配合适的照明,光线充足,使烹饪操作更便捷,打造出一个舒适且高效的烹饪空间。
卫浴间,主打实用与温馨感。墙面和地面选用浅米色瓷砖,色调柔和,让空间显得干净明亮。
吊顶采用简洁的集成吊顶,平整利落,搭配合适的照明,光线充足,方便日常使用。淋浴区、洗漱区等功能分区清晰,淋浴设施、洗手台等安装规整,既满足使用需求,又让整个卫浴间看起来整洁有序,营造出舒适的洗漱、沐浴环境。
原始测量图
拆除墙体图
新建墙体图
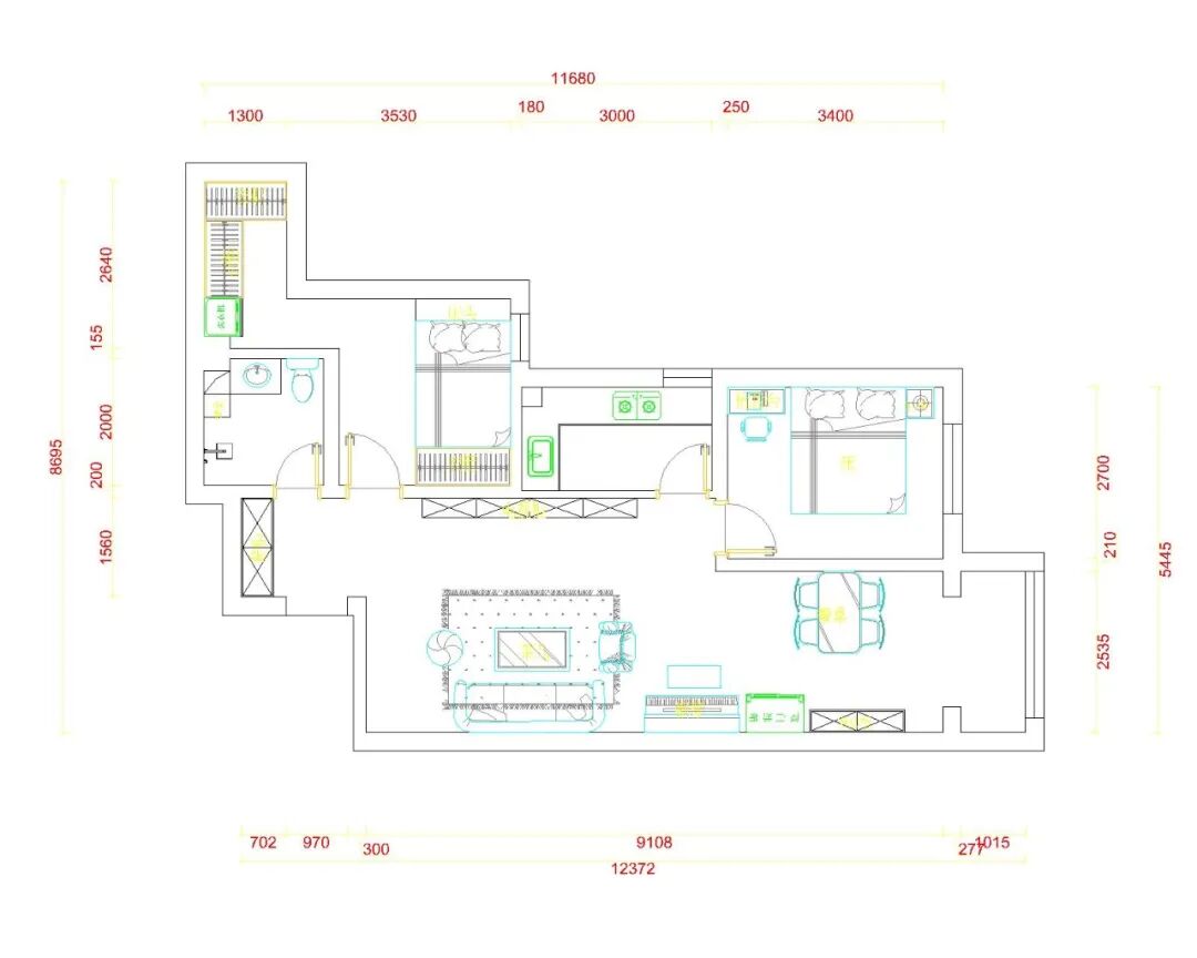
平面布置图
客服
消息
收藏
下载
最近



















