查看完整案例

收藏

下载
让生活更美好
MHOO DESIGN
新湖菲林500㎡
极简风
-
是推开门就能收获的一抹惊艳
是踏过槛就能感受的一种克制
体会纯净空间下的力量
回到最本质的生活空间
留白
触摸生活的本真
留白的空间更像是剥离繁杂装饰,回归生活里最初的模样,那些透过轻纱到映在砖上的晨昏线,才是空间里最触动人心的装饰画,如梁文道笔下的——我执,“握得越紧越是徒然”,留下空白,才是纯粹。
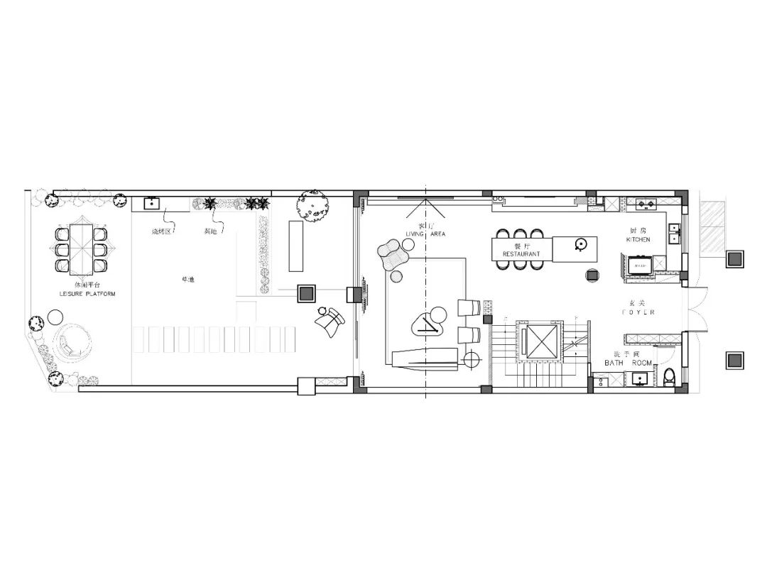
入户像是掉进一汪水里,一切都是静止的样子,大面积的留白赋予空间无限的延伸,只有些许光影的明暗,将空间划分出来,用一道柜体将洗手间藏在后面。
步入主厅,无主灯的大平顶仅有些许灯光点缀,墨绿色的沙发打破了空境,赋予空间一丝活力,茶几、单椅的深色搭配,很是抢镜,形成一角落一景致的美感。
餐厅是承载四季五味的地方,挑空的设计让一层与二层的互动关系更为紧密,透明玻璃做二楼的隔断让空间穿插自然采光,不断释放松弛感,解决二层向下的压迫感。
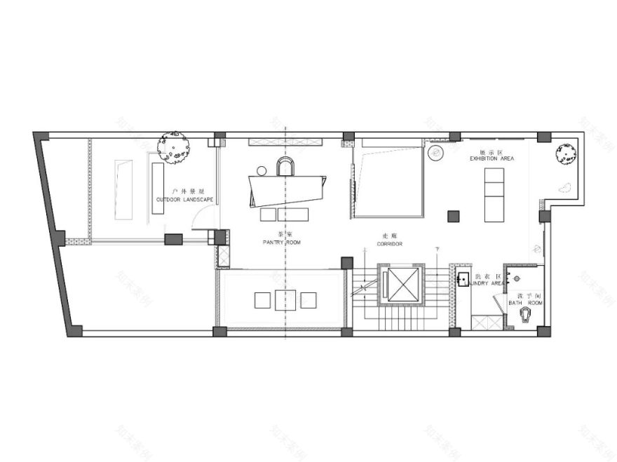
茶室、休闲区设在负一层,以竹为材质的茶桌椅,自带长青不衰的品格,对面安置矮榻可供娱乐,古朴至简的茶室风格,配合着下沉式花台,别有一番滋味。
在整幢别墅里,所有的起居空间都做了独立套房的样式,主卧利用斜面的屋顶加装一组灯带,用错位视觉差来增加屋顶的柔光氛围,床头向内做壁龛式背景墙,内嵌+暗色的撞色搭配,让视觉聚焦在床体,感受放空自在的美好。
主卧配备书房,浅桃木的桌椅给空间融入一丝古朴,靠墙做简易水吧台,品茗阅书,沉浸人生百态,靠过道处做可视化窗洞,透光的同时,也可看到不一样的窗景。
二楼包含孩子房和客卧,独立套间的设计让两房互不干扰,孩子房内设有书桌,悬空下吊的屏风将空间划分为书房和卧室,家居选用深色胡桃木材质,简约有致。
客卧将墙面做成玻璃隔断,透视化的轻盈感透窗可观,自然光线通过玻璃折射入室,让空间有种会呼吸的感觉。
本案中,为了追求留白的舒适感,连贯穿全屋上下的楼梯都纳入设计中,扶手用玻璃打造透感,保留白色的轻盈、空灵感,墙内用一道黑色木饰面做扶手,丰富楼梯的层次感。
- 走进案例
In The Case
业主需求
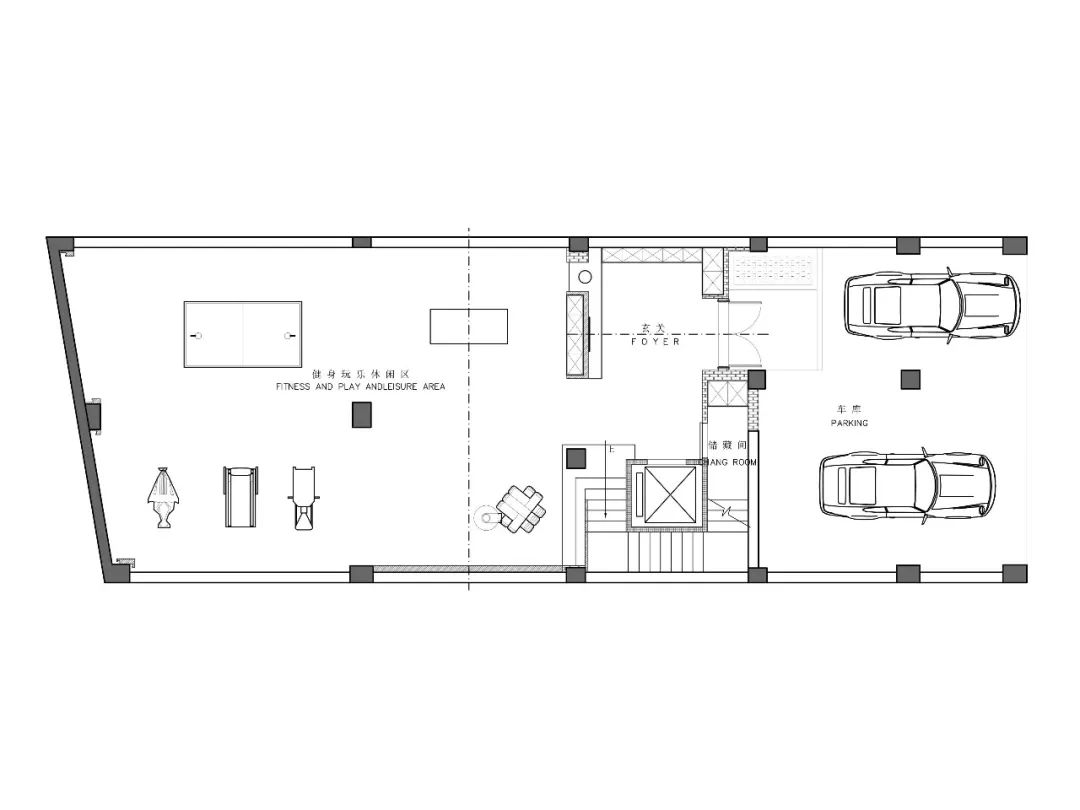
三口之家,三层做独立主卧区,二层孩子房与客房,房间与房间之间确保隐私性,接待区放置在一楼,额外需设置健身区和品茶区。
户型分析
户型南北方正,采光效果佳;
户型属于独立别墅,有足够发挥空间;
地下墙体划分太多隔断,不利于采光;
地下车库入户太过狭窄。
户型改造
负二层玄关做挑空设计,释放进门空间;
重新规划地下车库,可容纳两辆车停放;
一层餐厅做向上挑空,做空间互动;
三楼做步入式衣帽间,集中区域进行衣物收纳;
所有休息区皆做套房设计,保护隐私性;
整体空间做贯穿性互动区,将空间动态化。
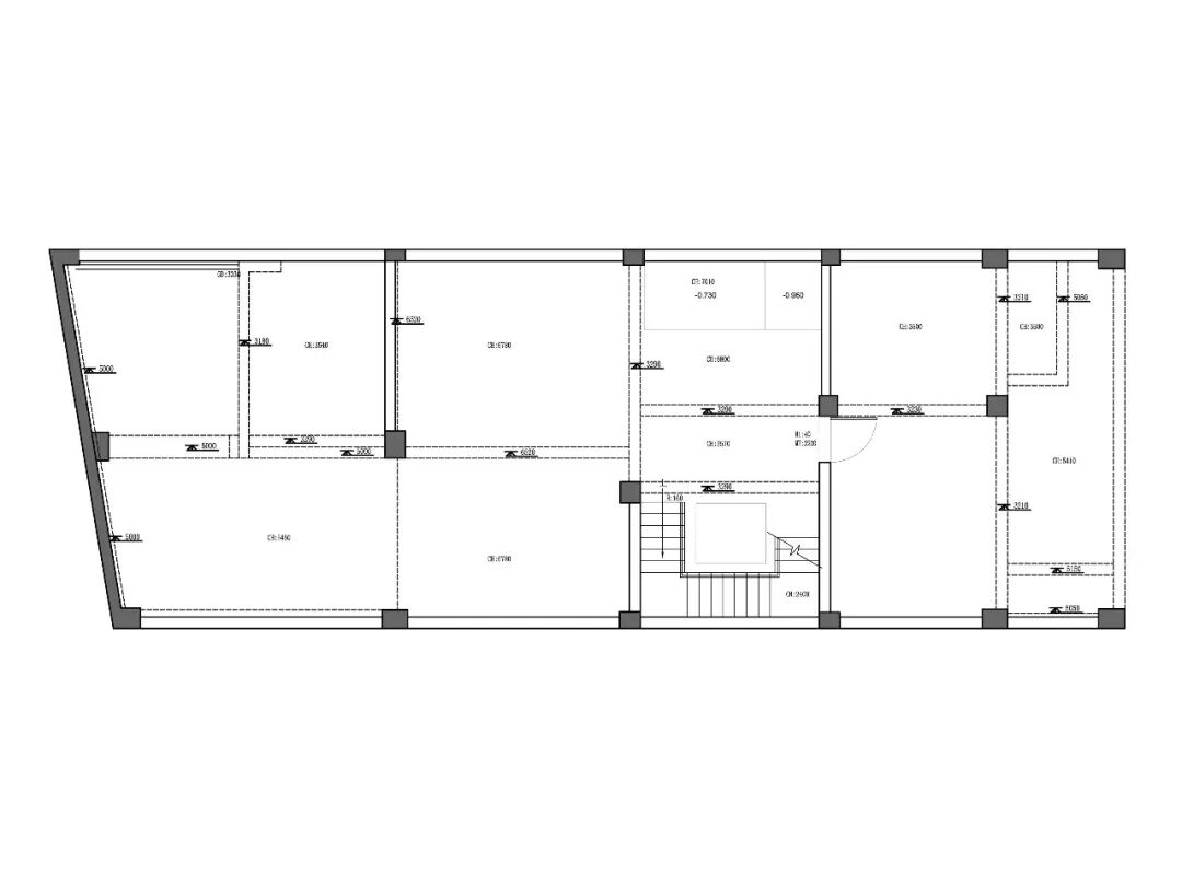
3层原户型
3层平面图
2层原户型
2层平面图
1层原户型
1层平面图
-1层原户型
-1层平面图
-2层原户型
-2层平面图
案例信息
Case Information
项目楼盘:新湖菲林
项目户型:别墅
项目面积:500㎡
项目风格:现代极简
设计团队:全盛别墅装饰 毛建松
施工团队:大宅工程中心 胡记深
施工单位:麦丰装饰集团
装修总投:土建工程15W、花园景观20W、防水防潮施工12W、基础工程120W、木作定制30W、机电设备30W、灯具6W、系统窗15W、家具15W、软装配饰5W
主要用材:地砖、乳胶漆、木作、岩板
作品拍摄:林峰
文字编辑:郑多余
从无到有
给你精彩!
有装修需求的小伙伴们
☟
点我在线预约
往期优秀案例
别墅大宅
MHOO|清华园225㎡意式极简:轻简于形,奢繁于心
MHOO|悦麒美寓300㎡意式轻奢:漫步苍穹,沉稳之美
MHOO|乐虹湾300㎡轻法式:邂逅三维,细品浪漫
MHOO|藏珑大境200㎡现代原木:Y·house向光而居
住宅公寓
MHOO|万家名城140㎡现代风:见素抱朴,返璞归真
MHOO|宝嘉誉峰139㎡现代简约:感受通透的“呼吸感”
MHOO|美哉美城110m²复古混搭:煦色满室,韶光悠长
MHOO|明德明理府130㎡复古原木:把生活藏进旧时光
MHOO|阳光郡110m²现代风:黑白梦境,纯粹之美
旧改/精装
MHOO|132㎡精装房:融合灰色系与极简主义
MHOO|君品名邸170㎡法式轻复古:循光进入一场优雅绮梦
MHOO| 黑*白现代风 150㎡精装改造房
商业空间
MHOO|166㎡中古店 既是怀旧,亦是新潮
MHOO|治愈美学·网红推拿院 270㎡侘寂风
MY HOME DESIGN
珍惜所托,用心服务
▼
客服
消息
收藏
下载
最近

















































